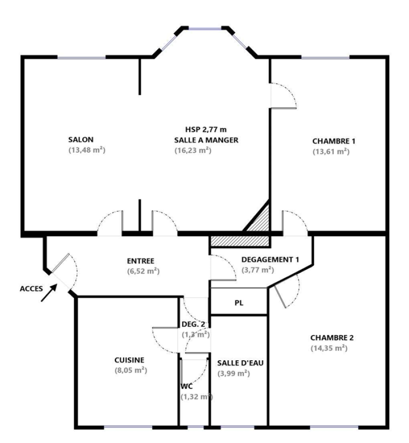
Sens (89100) Bel appartement T4 à SENS
129 000 €
Réf : 40
