Les infos Essentielles
*** EXCLUSIVITE - QUARTIER du PAS du LAC à Montigny-le-Bretonneux - IMMEUBLE de 2003 SECURISE et RAVALE de standing - Appartement de 57 m² en BON ETAT offrant une terrasse exceptionnelle de 23 m2, véritable PIECE de VIE SUPPLEMENTAIRE à ciel ouvert - SENSATION d' ETRE DEDANS et DEHORS - DPE D - EXPOSITION EST / SUD - LUMIERE, CALME et proche de la Gare SQY (RER C, Lignes N et U) et de toutes commodités - FAIBLES CHARGES - PARC ERASME, ESTACA - CAVE et PARKING en SOUS-SOL - ASCENSEUR ***
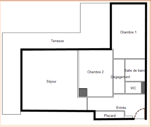
Anne-Marie Dumas Immobilier vous propose cet appartement bien organisé de 60 m2 pondérés (57m2 carrez) au 1er étage, lumineux grace à sa large baie vitrée et sa TERRASSE EXTERIEURE de 23m2. Il est composé d'une entrée avec un grand placard conduisant à une pièce de vie très lumineuse de 22m2 quelque soit le temps et dotée d'une baie vitrée donnant une sensation d'espace, une cuisine ouverte équipée et aménagée. Le coin nuit vous offre deux chambres (12m² et 9m²), salle de bains, WC séparés. CAVE et PARKING en sous-sol.
- Séjour lumineux de 22m2 ouvert de plain-pied sur la terrasse (effet dedans-dehors garanti). Vous aurez la sensation d'espace et une prolongation de l'appartement sur l'extérieur dont vous profiterez les soirs d'été...
- Cuisine séparée (possibilité d’ouverture pour un espace de vie de près de 30 m²).
- Espace nuit au calme : Deux chambres de 9 m² et 12 m² dont une avec placard intégré.
- Le + Confort : Une salle de bain spacieuse, des rangements, une cave et une place de parking en sous-sol sécurisée.
***ATOUTS: faibles charges (eau froide et chauffage inclus) - CALME - ACCES DIRECT de toutes les pièces sur la terrasse, BORNE DE RECHARGE POSSIBLE - CHANGEMENT BAIE VITREE et PEINTURES (2020-2024) et RADIATEURS - CHAUDIERE de la RESIDENCE CHANGEE - Idéalement situé, proche de toutes commodités, écoles, commerces, gare SNCF de Montigny le Bretonneux / St Quentin a 7min à pieds ..
*** VOUS AIMEZ PROFITER d'un EXTERIEUR avec la SENSATION d'ETRE DEDANS et DEHORS, avoir une SENSATION de LIBERTE et un BON CADRE de VIE .... ce bien est fait pour vous - BELLE OPPORTUNITE - IDEAL 1ère acquisition ou PIED A TERRE - A VISITER RAPIDEMENT ! ***
Annonce proposée par un agent commercial
Les informations sur les risques auxquels ce bien est exposé sont disponibles sur le site Géorisques
Localisation Du bien
-
Commerces et santé
-
Loisirs
-
Ecoles
-
Transports
-
Pratique
Les infos Energetiques
Ce site est protégé par reCAPTCHA, les Politiques de Confidentialité et les Conditions d'Utilisation de Google s'appliquent.
Détails des diagnostics énergétiques
Montant estimé des dépenses annuelles d'énergie pour un usage standard est compris entre 940 € et 1 340 € . Prix moyens des énergies indexés sur les années 2021, 2022 et 2023 (abonnements compris).
