Les infos Essentielles
Posez vos valises dans cette superbe villa contemporaine, située sur les hauteurs de Millau, offrant une vue exceptionnelle sur le Pouncho d’Agast et les causses environnants.
Achevée en 2025, cette propriété rare sur le secteur allie prestations haut de gamme et matériaux de qualité.
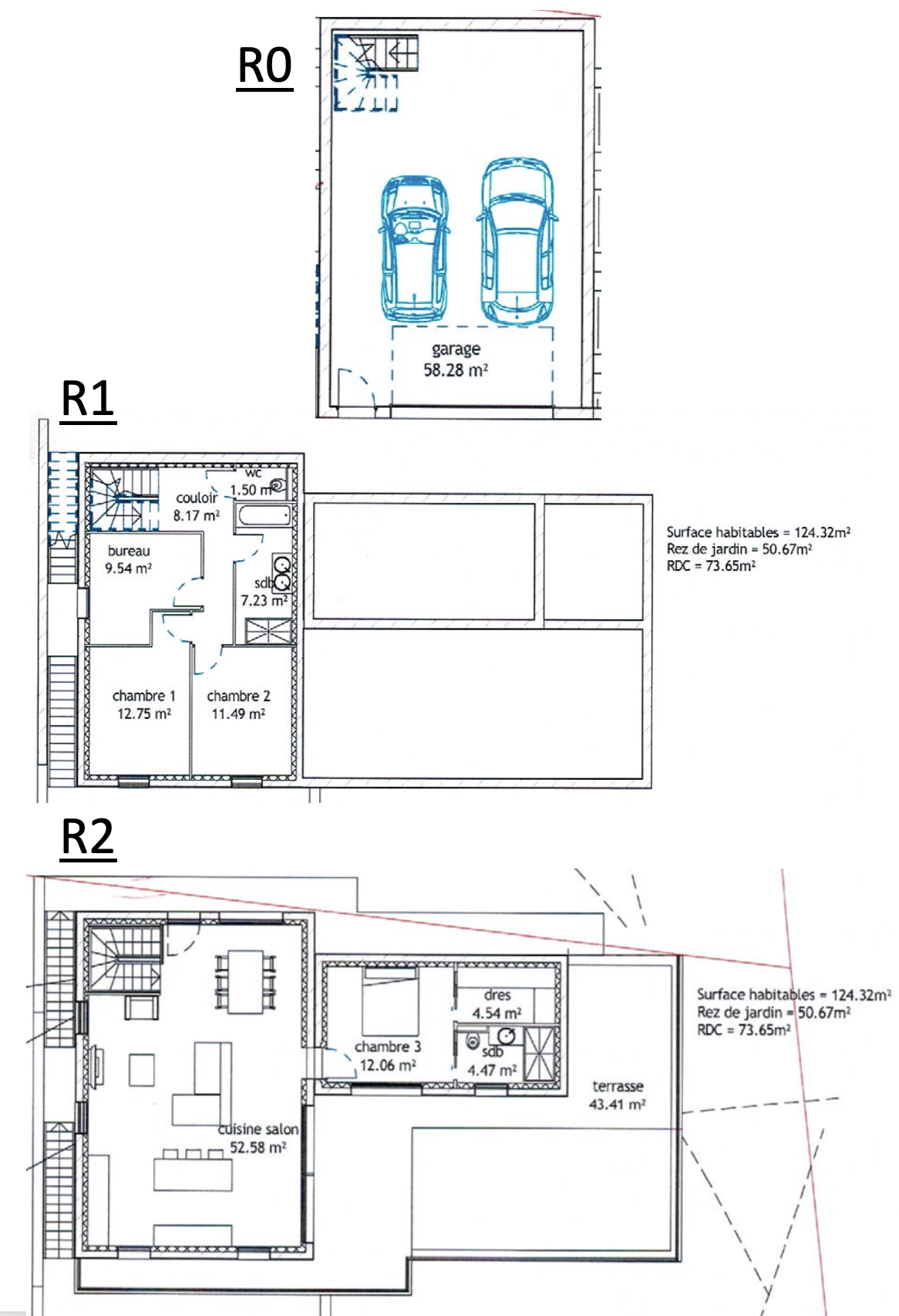
En rez-de-chaussée :
-
Garage spacieux de 58,28 m².
-
Coin nuit composé de deux chambres (11,49 m² et 12,75 m²) et d’un bureau (9,50 m²).
-
Salle de bain avec douche et baignoire (7,23 m²).
-
WC séparé.
Â
Au dernier niveau :
-
Pièce à vivre de 52,58 m² baignée de lumière, avec vue panoramique sur les causses et accès direct à la piscine à débordement (7,50 m x 3,75 m).
-
Suite parentale de 21 m² avec dressing et salle d’eau privative.
Â
Confort et prestations :
-
Chauffage par pompe à chaleur air/air gainable en plafond.
-
Matériaux haut de gamme et finitions soignées.
-
Vue dominante et environnement privilégié.
Â
Un bien d’exception sur Millau, idéal pour les amateurs de design, de confort et de panorama unique !!!
Â
Annonce proposée par un agent commercial
Localisation Du bien
-
Commerces et santé
-
Loisirs
-
Ecoles
-
Transports
-
Pratique
Les infos Energetiques
Ce site est protégé par reCAPTCHA, les Politiques de Confidentialité et les Conditions d'Utilisation de Google s'appliquent.
Détails des diagnostics énergétiques
Montant estimé des dépenses annuelles d'énergie pour un usage standard est compris entre 910 € et 1 290 € . Prix moyens des énergies indexés sur les années 2021, 2022 et 2023 (abonnements compris).
VILLA NEUVE DE 2024 TYPE 5 DE 143 M²
