Les infos Essentielles
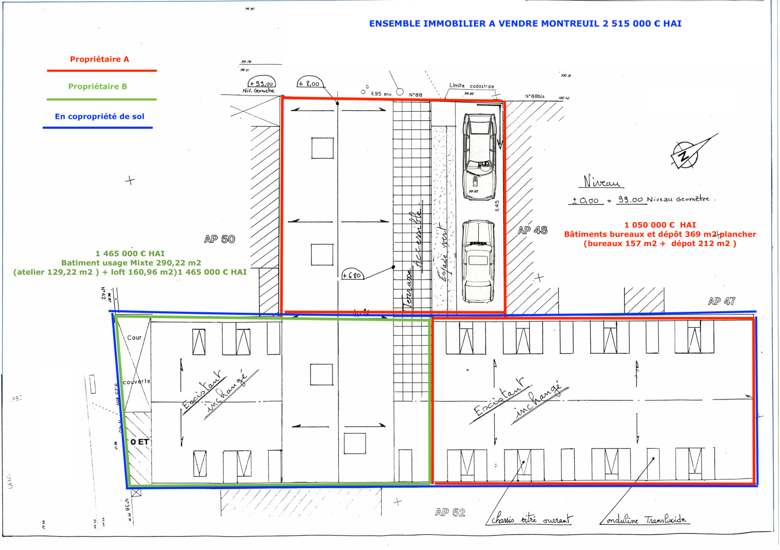
A 650 mètres du Métro Croix de Chavaux, dans un quartier verdoyant très recherché de Montreuil, trois grands bâtiments (habitation, bureaux, atelier et dépôt) en bon état sur 453 m2 de terrain (2 parcelles mitoyennes), présentant un réel potentiel de transformation, réaménagement, extension, promotion . Cet ensemble immobilier rare dans ce secteur, recherché de Montreuil, pourra être exploité, soit par un groupe d'acheteurs souhaitant créer une copropriété ou un projet d"'habitat partagé", soit par un promoteur immobilier. L'état actuel présente une surface plancher (utile) de 659 m2 , dont 161 m2 d'habitation, 157 m2 de bureaux, 95 m3 d'atelier (art artisanat), 34 m2 de stationnement, et 212 m2 de hangar dépôt. Ces 3 batîments indépendants peuvent faire l'objet d'un changement de destination (zone urbaine UH91E10 du PLUi Est Ensemble). Une troisième parcelle contigûe supplémentaire serait également à vendre en sus, pour qui (condition) proposera à son actuel propriétaire un nouvel appartement/maison avec extérieur dans le futur projet de réaménagement /promotion (vente en VEFA).
Annonce proposée par un agent commercial
Localisation Du bien
-
Commerces et santé
-
Loisirs
-
Ecoles
-
Transports
-
Pratique
Les infos Energetiques
Ce site est protégé par reCAPTCHA, les Politiques de Confidentialité et les Conditions d'Utilisation de Google s'appliquent.
