 
                                    Les infos Essentielles
SOUS COMPROMIS
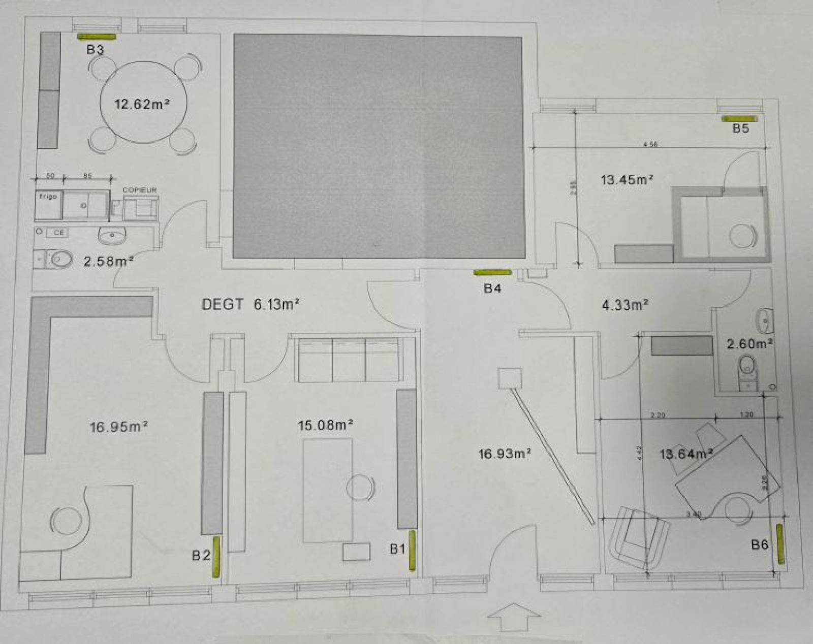
Venez découvrir ce local commercial idéalement situé, proche de toutes les commodités aux multiples possibilités avec ses 2 entrées et ses 2 parties pouvant être fermées indépendamment.
L’accueil de 17m² dessert :
- A droite : un hall, 2 bureaux de plus de 13m² chacun dont un avec un petit studio d’enregistrement et 1 WC avec lave-mains ;
- A gauche : un hall donne accès à un premier bureau de 15m², un bureau de 17m² avec son entrée indépendante et de nombreux placards, une kitchenette de 12.50m² (ou autre bureau) et un WC avec lave-mains.
Places de stationnement compris
Tout électrique avec ballon d'eau chaude récent
Contactez-moi pour plus d’informations
Au plaisir
Sandra et son assistante Maya
Les informations sur les risques auxquels ce bien est exposé sont disponibles sur le site Géorisques : www.georisques.gouv.fr
Localisation Du bien
- 
            Commerces et santé
            
- 
            Loisirs
            
- 
            Ecoles
            
- 
            Transports
            
- 
            Pratique
            
Les infos Energetiques
 
                                    La base légale du traitement repose sur l’intérêt légitime de l'Agence / du Réseau.
Elles sont conservées jusqu'à demande de suppression et sont destinées à  l'Agence / au Réseau.
Conformément à la loi « informatique et libertés », vous pouvez exercer votre droit d'accès aux données vous concernant et les faire rectifier en contactant l'Agence / le Réseau.
Si vous estimez, après avoir contacté l'Agence / le Réseau, que vos droits « Informatique et Libertés » ne sont pas respectés, vous pouvez adresser une réclamation à la CNIL.
Nous vous informons de l’existence de la liste d'opposition au démarchage téléphonique « Bloctel », sur laquelle vous pouvez vous inscrire ici : https://www.bloctel.gouv.frÂ
Dans le cadre de la protection des Données personnelles, nous vous invitons à ne pas inscrire de Données sensibles dans le champ de saisie libre
Ce site est protégé par reCAPTCHA, les Politiques de Confidentialité et les Conditions d'Utilisation de Google s'appliquent.

 
             
                                                     
                                                     
                                                     
                                                     
                                                     
                                                     
                                                     
                                                     
                                                     
                                                     
                                                     
                                                     
                                                     
                                                     
                                                     
                                                     
                                                    