Les infos Essentielles
OPPORTUNITÉ INVESTISSEUR – T3 REFAIT A NEUF – RENTABILITÉ IMMÉDIATEÂ
Vous cherchez un investissement clé en main, sans travaux et déjà loué ? Ne cherchez plus.
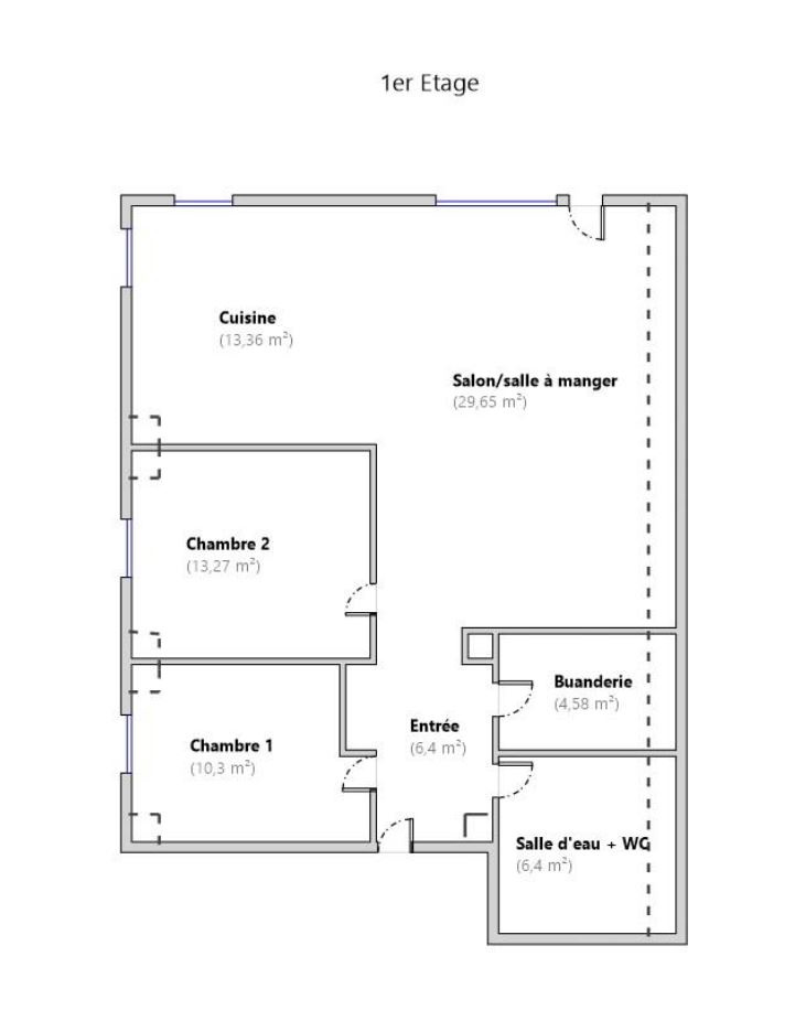
Découvrez ce superbe T3 entièrement rénové de 83,96 m², situé dans un environnement calme et recherché, au sein d’un petit immeuble de 4 logements seulement.
Ses atouts majeurs :
-
Espace de vie exceptionnel de +43 m² avec accès terrasse
-
Appartement lumineux, moderne et parfaitement agencé
-
2 chambres confortables
-
Buanderie pratique
-
2 places de parking privatives
Confort & performance :
-
Chauffage pompe à chaleur (économique et écologique)
-
Aucun travaux à prévoir
Rentabilité immédiate :
-
Appartement loué depuis décembre 2024 (bail 3 ans)
-
Loyer : 830 € hors charges
-
Locataire en place = revenus sécurisés dès l’acquisition
Un bien idéal pour :
-
Investisseur souhaitant un placement sûr
-
Se constituer un patrimoine sans contrainte
-
Profiter d’un bien rénové avec forte attractivité locative
Les informations sur les risques auxquels ce bien est exposé sont disponibles sur le site Géorisques : www.georisques.gouv.fr
Annonce proposée par un agent commercial
Localisation Du bien
-
Commerces et santé
-
Loisirs
-
Ecoles
-
Transports
-
Pratique
Les infos Energetiques
10.6 au sol
13.72 au sol
5.38 au sol
7.4 au sol
32.5 au sol
13.56 au sol
Ce site est protégé par reCAPTCHA, les Politiques de Confidentialité et les Conditions d'Utilisation de Google s'appliquent.
Détails des diagnostics énergétiques
Montant estimé des dépenses annuelles d'énergie pour un usage standard est compris entre 710 € et 1 000 € . Prix moyens des énergies indexés sur les années 2021, 2022 et 2023 (abonnements compris).
OPPORTUNITÉ INVESTISSEUR – T3 REFAIT A NEUF – RENTABILITÉ IMMÉDIATE
