Les infos Essentielles
Exceptionnel, sur la commune de Millau, avec une vue imprenable sur le Viaduc, venez découvrir cette maison type 8 de 251,12 m² habitables achevée en 2025 sur son terrain de 2319 m², offrant des prestations rares sur le secteur.
Â
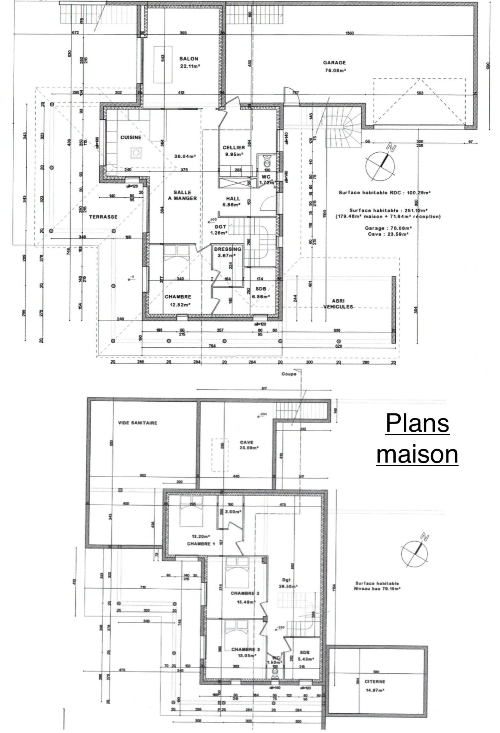
La maison principale, de type F5 et d’une superficie de 179,48 m², se compose d’un bel espace cuisine-salle à manger de 36,04 m² ouvrant sur une terrasse avec vue panoramique. La cuisine communique avec un salon de 22,11 m² bénéficiant également d’un accès direct à la terrasse.
L’espace parental comprend une chambre, un dressing et une salle d’eau privative.
S’ajoutent sur ce niveau un bureau de 9,95 m², un WC séparé et un cellier situé entre l’habitation et le garage de 76,08 m².Â
À l’étage inférieur, le coin nuit est composé de trois chambres de 13,05 m², 13,20 m² et 13,48 m², d’une salle d’eau et d’un second WC indépendant. Une pièce de 29,50 m² complète ce niveau, idéale pour un coin télé ou une salle de jeux pour les enfants.
Vous disposerez également d’une cave de 23,59 m², d’une dalle béton sous la terrasse, et d’un vaste espace de stockage ou atelier.
Â
Un logement indépendant de type F3, d’une surface de 71,64 m², complète cet ensemble. Actuellement exploité en location courte durée, il génère un revenu annuel d’environ 18 000 eu pour seulement 120 nuits par an.
Cet appartement dispose d’une grande pièce à vivre de 43,17 m², de deux chambres, d’une salle d’eau, d’un WC séparé, ainsi que d’une belle terrasse de 25,57 m² avec superbe vue dégagée sur le Viaduc de Millau.
Â
Les prestations sont de grande qualité : sols en travertin, finitions soignées, pompe à chaleur air/eau avec chauffage au sol, cuve de récupération d’eau de pluie de 10 m³ alimentant WC, lave-linge et robinets extérieurs, panneaux photovoltaïques de 3 kW en autoconsommation, ballon thermodynamique.
La construction est récente, achevée en mars 2025.
Â
Une opportunité rare de vivre dans un cadre privilégié, aux portes de Millau, tout en profitant d’un revenu locatif attractif et d’un confort de vie exceptionnel !
Annonce proposée par un agent commercial
Localisation Du bien
-
Commerces et santé
-
Loisirs
-
Ecoles
-
Transports
-
Pratique
Les infos Energetiques
Ce site est protégé par reCAPTCHA, les Politiques de Confidentialité et les Conditions d'Utilisation de Google s'appliquent.
Détails des diagnostics énergétiques
Montant estimé des dépenses annuelles d'énergie pour un usage standard est compris entre 1 300 € et 1 810 € . Prix moyens des énergies indexés sur les années 2021, 2022 et 2023 (abonnements compris).
