Les infos Essentielles
Maison familiale au calme – fond d’impasse, belle luminosité et potentiel évolutifÂ
Â
Située au fond d’une impasse, dans un environnement paisible et recherché, cette maison des années 70 vous séduira par son emplacement privilégié et ses nombreuses possibilités d’aménagement.
Â
Édifiée sur une parcelle d’environ 519 m², elle bénéficie d’une exposition sud-est idéale, offrant une belle luminosité tout au long de la journée.
Â
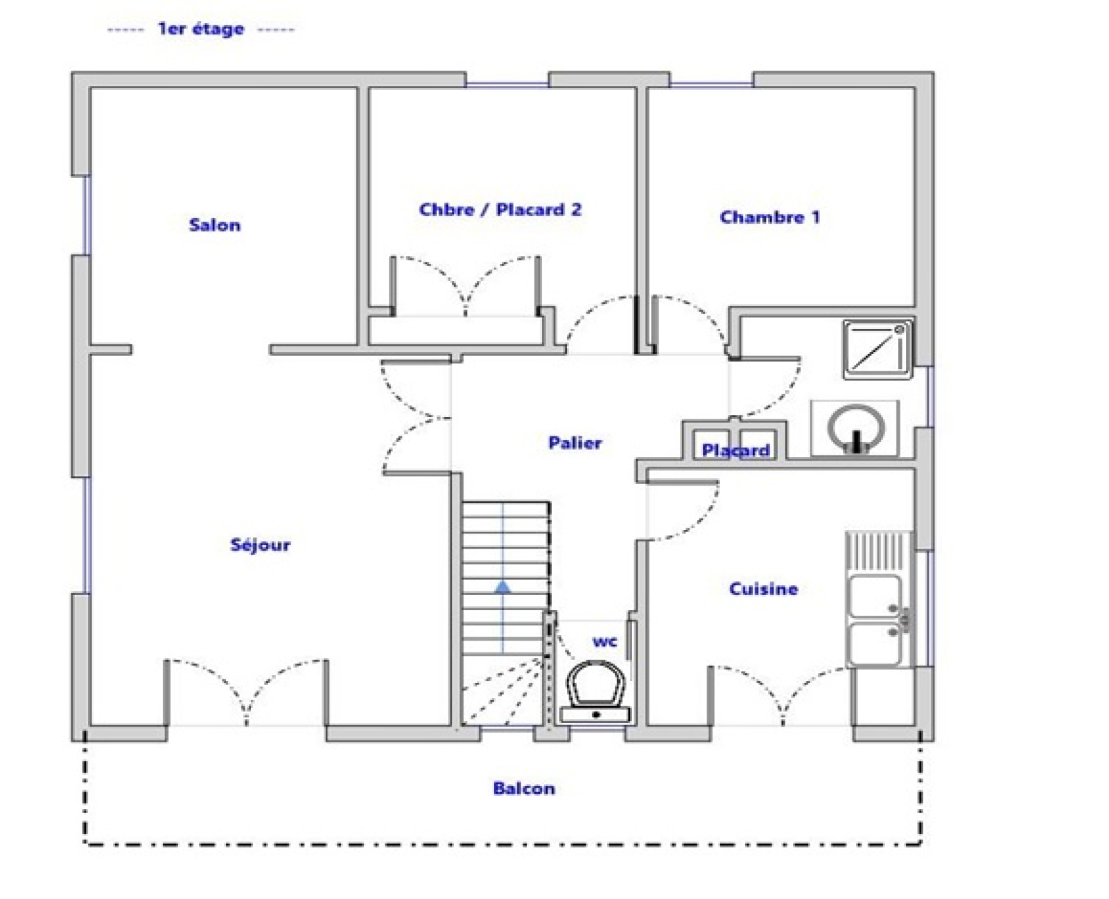
D’une surface d’environ 106 m², la maison se compose :
En rez-de-chaussée :
Une entrée avec dégagement desservant une grande chambre de 17,8 m², un WC sous escalier, une buanderie/chaufferie avec accès extérieur, ainsi qu’un garage de 19,7 m² prolongé par une pièce supplémentaire idéale pour un bureau, un atelier ou une réserve.Â
À l’étage :
Un espace de vie lumineux avec un séjour de 29 m², séparée par la cage d'escalier : une cuisine indépendante de 10,2 m² ouvrant sur un balcon (également accessible depuis le séjour), deux chambres avec placards (environ 9,5 m² chacune) et une salle d’eau avec douche à l’italienne.
Caractéristiques techniques :
-
Isolation extérieure réalisée en 2019
-
Combles isolés - plafond garage isolé
-
Toiture en bon état
-
Dalle béton permettant l’aménagement éventuel des combles (accès WC actuellement)
-
Chauffage au gaz de ville (chaudière Buderus de 2012) + radiateurs fonte
-
DPE : C
-
Menuiseries : simple vitrage en rez-de-chaussée, survitrage à l’étage + volets roulants
-
Possibilité de garer plusieurs véhicules dans la cour.
Â
À proximité d'une école, des arrêts de bus et du centre ville, tout en profitant du calme d’une impasse.
 Â
 Une maison saine, lumineuse et pleine de potentiel, idéale pour une famille.
Â
N’attendez plus pour venir la découvrir !
Annonce proposée par un agent commercial
Localisation Du bien
-
Commerces et santé
-
Loisirs
-
Ecoles
-
Transports
-
Pratique
Les infos Energetiques
Ce site est protégé par reCAPTCHA, les Politiques de Confidentialité et les Conditions d'Utilisation de Google s'appliquent.
Détails des diagnostics énergétiques
Montant estimé des dépenses annuelles d'énergie pour un usage standard est compris entre 1 390 € et 1 930 € . Prix moyens des énergies indexés sur les années 2021, 2022 et 2023 (abonnements compris).
