Les infos Essentielles
Située dans l’un des secteurs les plus appréciés de Millau, à l'entrée d’une impasse, cette maison des années 60 bénéficie d’un emplacement idéal : à deux pas d’une école et à seulement 10 minutes à pied du centre-ville.
Implantée sur une parcelle de 332 m², elle offre un cadre de vie agréable, au calme, tout en restant proche de toutes les commodités.
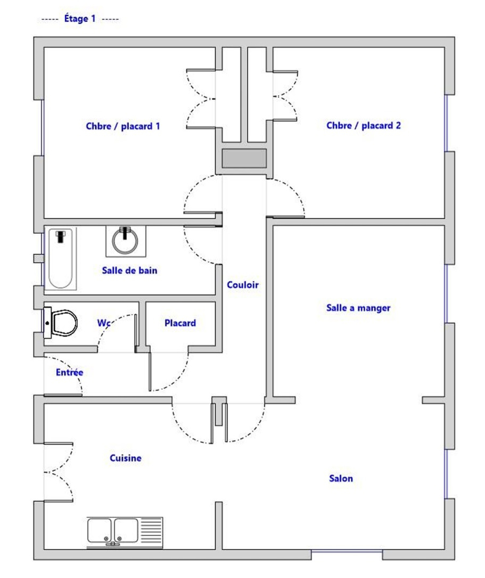
Le premier étage, d’environ 72,5 m² habitables, propose un espace de vie lumineux composé d’un séjour de 24,8 m² ouvert sur une cuisine de 11,6 m² équipée d’un store électrique. Vous y trouverez également deux chambres confortables de 11,4 m² et 10,1 m², une salle de bain ainsi qu’un WC indépendant et un cagibi.
Le niveau inférieur, accessible uniquement par l’extérieur, offre la même superficie et de nombreuses possibilités d’aménagement : un garage de 19 m², un atelier de 7,6 m², une chaufferie, une grande pièce de 24 m² avec accès direct à l’extérieur, ainsi qu’une chambre de 11,3 m² et une salle d’eau de 5,5 m² complètent l'ensemble.
Côté technique, la maison classée F, nécessitera des travaux de rénovations,
— Climatisation réversible installée en 2025 dans le séjour et chaudière gaz qui a 15/20ans
— Isolation des combles par laine soufflée réalisée en 2019
— Double vitrage ancien
— Toiture d’origine avec charpente traditionnelle en bon état.
— Electricité à revoir
Â
Une opportunité rare : créer un cocon familial, un premier achat ou un investissement dans un quartier recherché, à un prix attractif.
Un bien plein de potentiel qui n’attend que votre imagination pour révéler tout son charme.
Annonce proposée par un agent commercial
Localisation Du bien
-
Commerces et santé
-
Loisirs
-
Ecoles
-
Transports
-
Pratique
Les infos Energetiques
Ce site est protégé par reCAPTCHA, les Politiques de Confidentialité et les Conditions d'Utilisation de Google s'appliquent.
Détails des diagnostics énergétiques
Logement à consommation énergétique excessive : classe F
Montant estimé des dépenses annuelles d'énergie pour un usage standard est compris entre 2 830 € et 3 910 € . Prix moyens des énergies indexés sur les années 2021, 2022 et 2023 (abonnements compris).
