Les infos Essentielles
Au sein de la résidence de la Fraternité recherchée pour sa proximité centre ville / berges du Tarn et son parking privatif, venez découvrir cet appartement de type 3 de 48m² au 1er étage assurant un accès aisé:
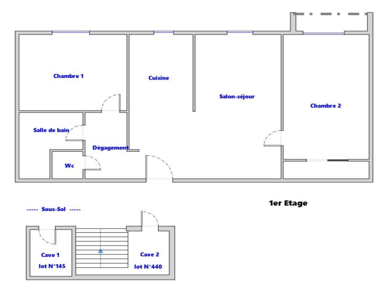
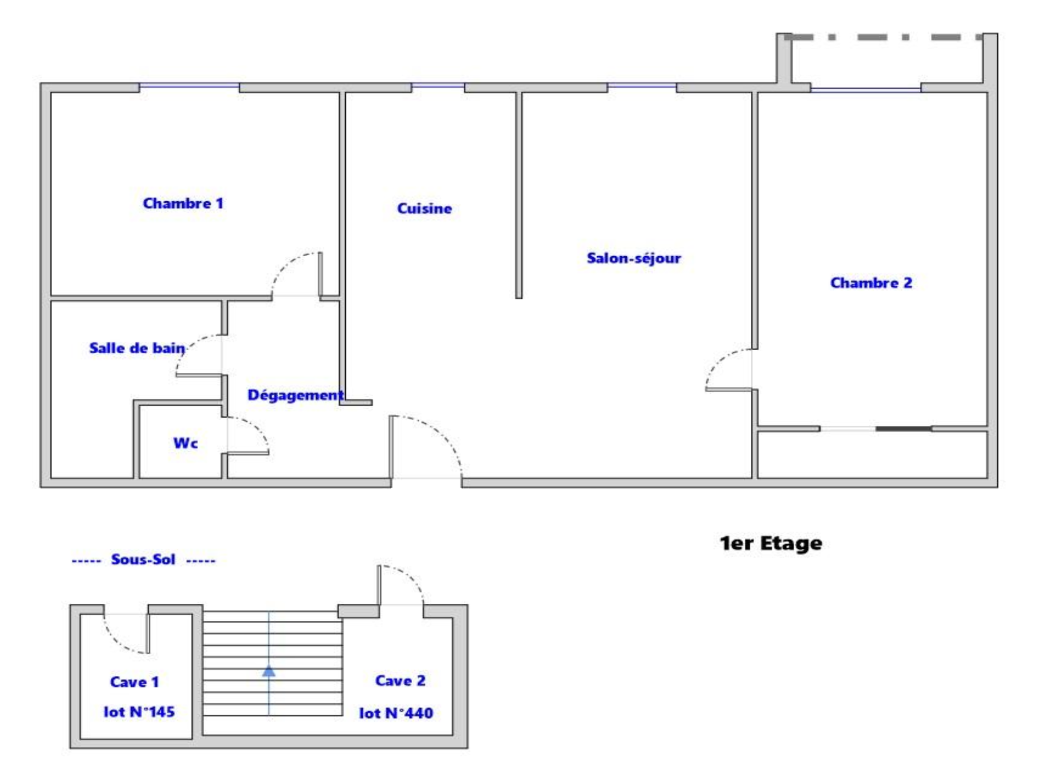
L’appartement se compose de :
- Séjour lumineux avec cuisine équipée ouverte,
- 2 chambres avec placards intégrés, dont une avec balcon,
- Salle d’eau moderne et WC séparés,
- 2 caves privatives + local vélo commun
Entièrement rénové, cet appartement est entièrement isolé derrière un doublage placo-pâtre, aucuns travaux à prévoir.
Confort, luminosité et proximité immédiate des commerces, écoles et transports, idéal premier achat ou investissement locatif, à saisir !
Annonce proposée par un agent commercial
Localisation Du bien
-
Commerces et santé
-
Loisirs
-
Ecoles
-
Transports
-
Pratique
Les infos Energetiques
Ce site est protégé par reCAPTCHA, les Politiques de Confidentialité et les Conditions d'Utilisation de Google s'appliquent.
Détails des diagnostics énergétiques
Montant estimé des dépenses annuelles d'énergie pour un usage standard est compris entre 660 € et 940 € . Prix moyens des énergies indexés sur les années 2021, 2022 et 2023 (abonnements compris).
