Les infos Essentielles
LA NORVILLE. A 10 minutes à pied de la gare de La Norville et 15 minutes à pied du centre-ville d'ARPAJON.
Venez découvrir ce magnifique terrain à bâtir de 263 m2, situé en fond d'une impasse verdoyante, à l'abris des regards.
Le Permis de Construire est déjà accordé par la Mairie de la commune.
Il vous permettra dès que vous le souhaitez de commencer votre construction pour édifier votre magnifique maison individuelle de type F5, d'environ 95 m2 habitables, avec une façade d'environ 8 mètres et aux normes RE 2020 !
Les travaux de voirie desservant le terrain sont en cours, Ã charge vendeur.
Elle pourra se composer de la façon suivante (modifiable aux grès de vos envies) :
Une entrée avec placards, un WC séparé et une pièce de vie lumineuse d'environ 36 m2 avec cuisine ouverte aménagée, et accès direct au jardin clos et plat, sans vis-à -vis.
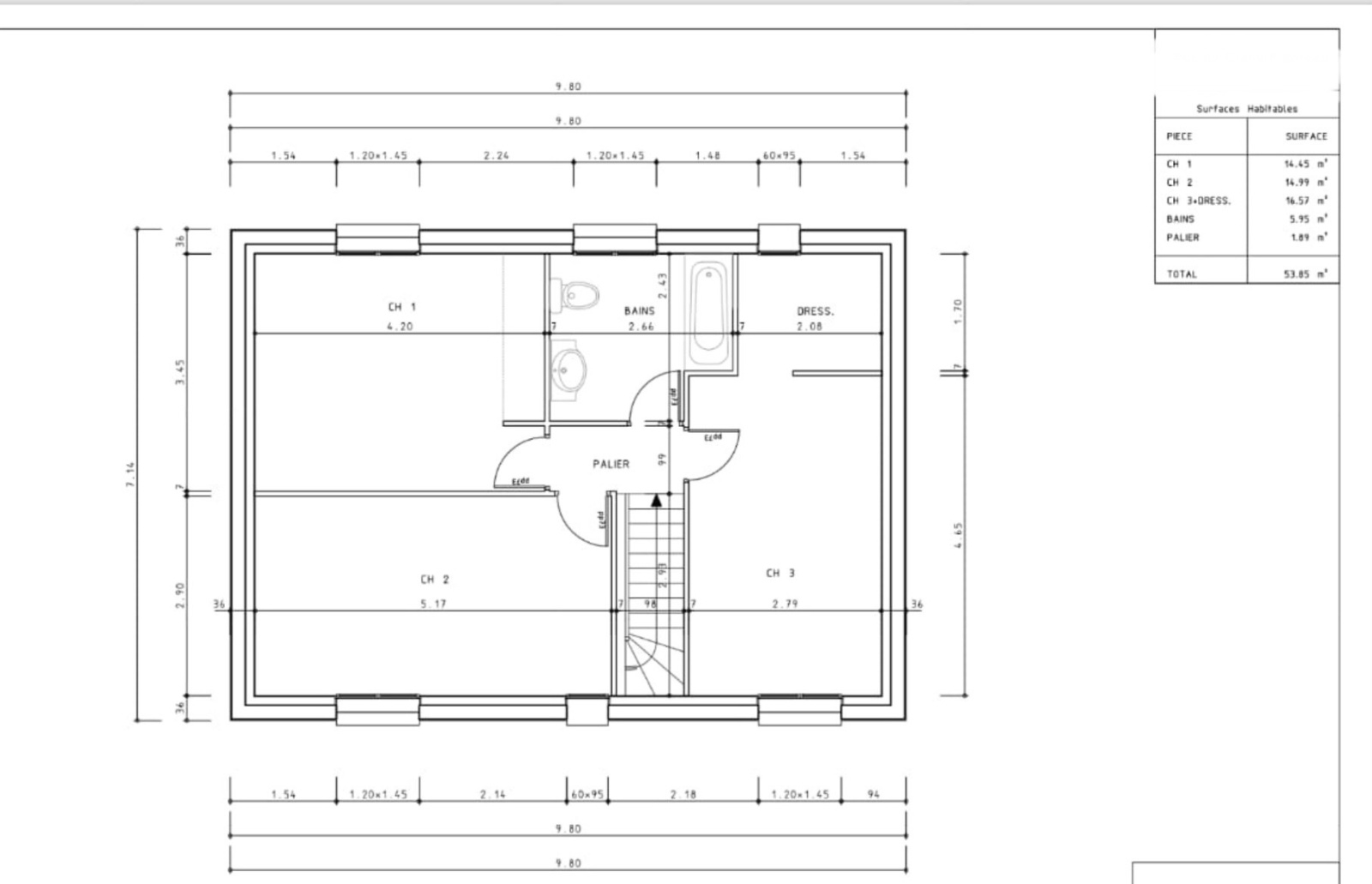
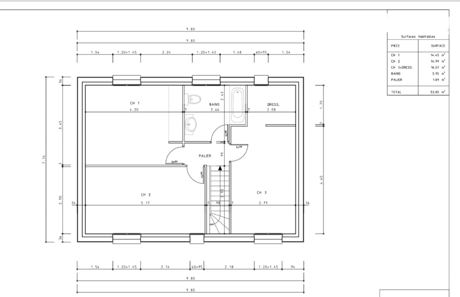
A l'étage vous trouverez un palier desservant trois belles chambres avec placards, et une salle de bains avec WC.
Stationnements aériens faciles devant votre maison, donnant accès à un garage attenant de 14 m2.
Informations financières de votre projet :
Terrain à bâtir affiché au prix de 162 000 € comprenant la viabilisation.
Budget total : Maison + Terrain + Viabilisation = Pour un budget d'environ 353 000 € hors frais de notaire. Opportunité en or pour bénéficier de la maison dont vous rêvez, aux normes RE 2020.
Constructeur déjà trouvé pour ce terrain, il connait l'environnement sur le bout des doigts et pourra vous permettre de trouver la meilleure construction, au meilleur prix.
Contactez-moi pour davantage d’informations et organiser une visite - EXPERTIMO - Mme Cléa NOBELEN - 07 83 50 04 14 - clea.nobelen@lacledelimmo.paris- www.reseau-expertimo.fr - Honoraires à charge vendeurs
Annonce proposée par un agent commercial
Localisation Du bien
-
Commerces et santé
-
Loisirs
-
Ecoles
-
Transports
-
Pratique
La base légale du traitement repose sur l’intérêt légitime de l'Agence / du Réseau.
Elles sont conservées jusqu'à demande de suppression et sont destinées à  l'Agence / au Réseau.
Conformément à la loi « informatique et libertés », vous pouvez exercer votre droit d'accès aux données vous concernant et les faire rectifier en contactant l'Agence / le Réseau.
Si vous estimez, après avoir contacté l'Agence / le Réseau, que vos droits « Informatique et Libertés » ne sont pas respectés, vous pouvez adresser une réclamation à la CNIL.
Nous vous informons de l’existence de la liste d'opposition au démarchage téléphonique « Bloctel », sur laquelle vous pouvez vous inscrire ici : https://www.bloctel.gouv.frÂ
Dans le cadre de la protection des Données personnelles, nous vous invitons à ne pas inscrire de Données sensibles dans le champ de saisie libre
Ce site est protégé par reCAPTCHA, les Politiques de Confidentialité et les Conditions d'Utilisation de Google s'appliquent.
Détails des diagnostics énergétiques
Terrain à bâtir de 528 m² - façade 17 m - plat - lot arrière
