Les infos Essentielles
Découvrez ce charmant T4 situé à Marcq en Baroeul dans le quartier Briqueterie. A proximité immédiate du Pont des Arts et du Boulevard Clémenceau.
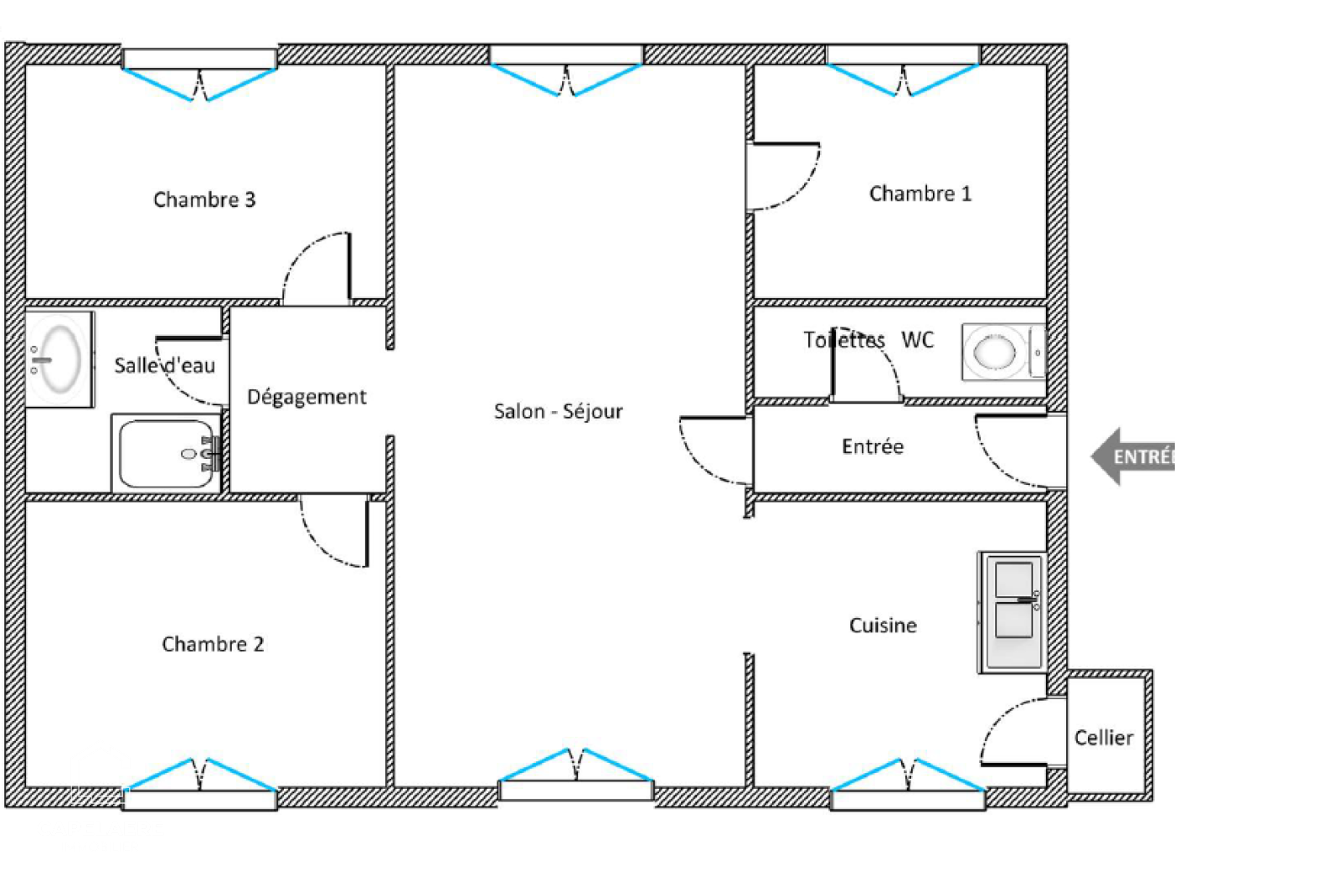
Avec une surface habitable d'environ 94 m², cet appartement traversant bénéficie d'une belle luminosité et offre un agréable cadre de vie pour une famille.
L'appartement se situe au 3e étage sans ascenseur et se compose :
- une spacieuse entrée
- un salon/séjour traversant d'environ 34 m²
- une cuisine ouverte sur le salon/séjour par un coin repas
- 3 chambres (14m2, 13m2 et 9,34m2)
- une salle de douche
- un WC indépendant et un espace buanderie.
Les plus ? l'appartement bénéficie d'un balcon, d'un box privé pour le stationnement (possibilié de se garer devant) et d'une cave.
Niveau technique : l'appartement est en bon état, DPE D, fenêtre en bois double vitrage et chaudière gaz.
Arrêt de bus Clémenceau : 5 mn à pied.
Charges de copro : 130 euros/mois.
La façade de la copropriété a été refaite en début d'année et la copropriété bénéficie d'un jardin commun.
Contactez-moi pour toute question.
Localisation Du bien
-
Commerces et santé
-
Loisirs
-
Ecoles
-
Transports
-
Pratique
Les infos Energetiques
Ce site est protégé par reCAPTCHA, les Politiques de Confidentialité et les Conditions d'Utilisation de Google s'appliquent.
