Les infos Essentielles
En exclusivité à Nantes, une maison spécial investisseurs en loueur meublé géré, amortissable
La résidence de l'Aubinière est récente (de 2006) elle est située dans un cadre verdoyant à quelques pas du Château de l'Aubinière et de son parc classé, limitrophe à Saint-Luce sur Loire. Tout en étant proche des commerces, restaurants, services et à proximité du parc des expositions, du parc floral.
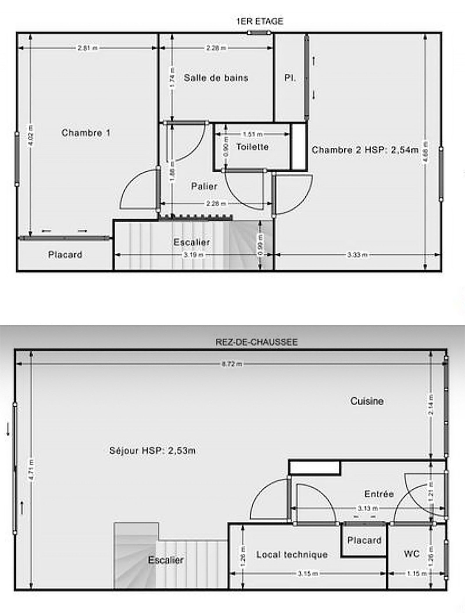
Au sein de cette résidence services 3 étoiles, nous proposons en exclusivité un investissement de choix en loueur meublé géré, une maison T3 de 70,40 m² en duplex, entièrement meublée, équipée et qui bénéficient de 2 places de parking.
Le rdc délivre son hall avec placard de près de 4 m², un wc, un cellier de 3 m² ; la pièce de vie avec salon / cuisine aménagée de 27 m² s’ouvre sur une terrasse de 11 m² et son jardin. A l’étage, 2 belles chambres avec placard de 14 et 11,55 m², une salle de bains avec baignoire de 4 m² et un wc séparé.
Les + de la résidence : les services para-hôteliers, une piscine extérieure ouverte en saison avec sa terrasse accueillante.
Elle est plébiscitée par ses occupants et récolte de très bon avis., idéal pour le gestionnaire, idéal pour l’investisseur !
Avec cet investissement locatif, vous bénéficierez du statut LMNP/LMP en résidence services et de sa fiscalité avantageuse, d'un loyer garanti de 6 408 € h.t par an, (revenus net d'impôts) et ce à long terme (de 15 à 20 ans). Autre avantage, vous ne serez pas redevable des prélèvements sociaux (17,2% :-)
Donc, une rentabilité décuplée via ce statut, et aucun souci de gestion, pas de recherche de locataires, pas de loyers impayés. Le gestionnaire Zénitude lié par bail commercial de 9 ans vous assure et vous verse vos loyers chaque mois.
Cette maison ne peut pas faire l’objet d'une acquisition pour y habiter, elle convient aux investisseurs soucieux de se constituer des revenus locatifs défiscalisés et un patrimoine immobilier de qualité.
Prix FAI : 105 000 €, dont mobilier compris.
Bail & loyers :
- Bail : jusqu’au 21/01/2027
- Loyers fixe : 6 408 €/an (revalorisation des loyers tous les ans suivant l'indice des loyers commerciaux)
- Charges par trimestre : 120 €
- Electricité, eau : pris en charge par le gestionnaire
Contactez-nous pour plus de précisions
> Expertimo
Mention obligatoire : Les informations sur les risques auxquels ce bien est exposé sont disponibles sur le site Géorisques https://www.georisques.gouv.fr
Annonce proposée par un agent commercial
Localisation Du bien
-
Commerces et santé
-
Loisirs
-
Ecoles
-
Transports
-
Pratique
Les infos Energetiques
Ce site est protégé par reCAPTCHA, les Politiques de Confidentialité et les Conditions d'Utilisation de Google s'appliquent.
Détails des diagnostics énergétiques
A saisir, maison T3 - 70 m2 en loueur meublé, résidence 3***
