Les infos Essentielles
Nantes, capital des Pays de la Loire est une ville très dynamique que l’on ne présente plus.
La résidence Zénitude *** est située dans le quartier de La Beaujoire limitrophe à Saint-Luce sur Loire, à quelques pas du Château de l'Aubinière, dans un cadre verdoyant, et au calme. Tout en étant proche des commerces, restaurants, services et à proximité du parc des expositions, du parc floral.
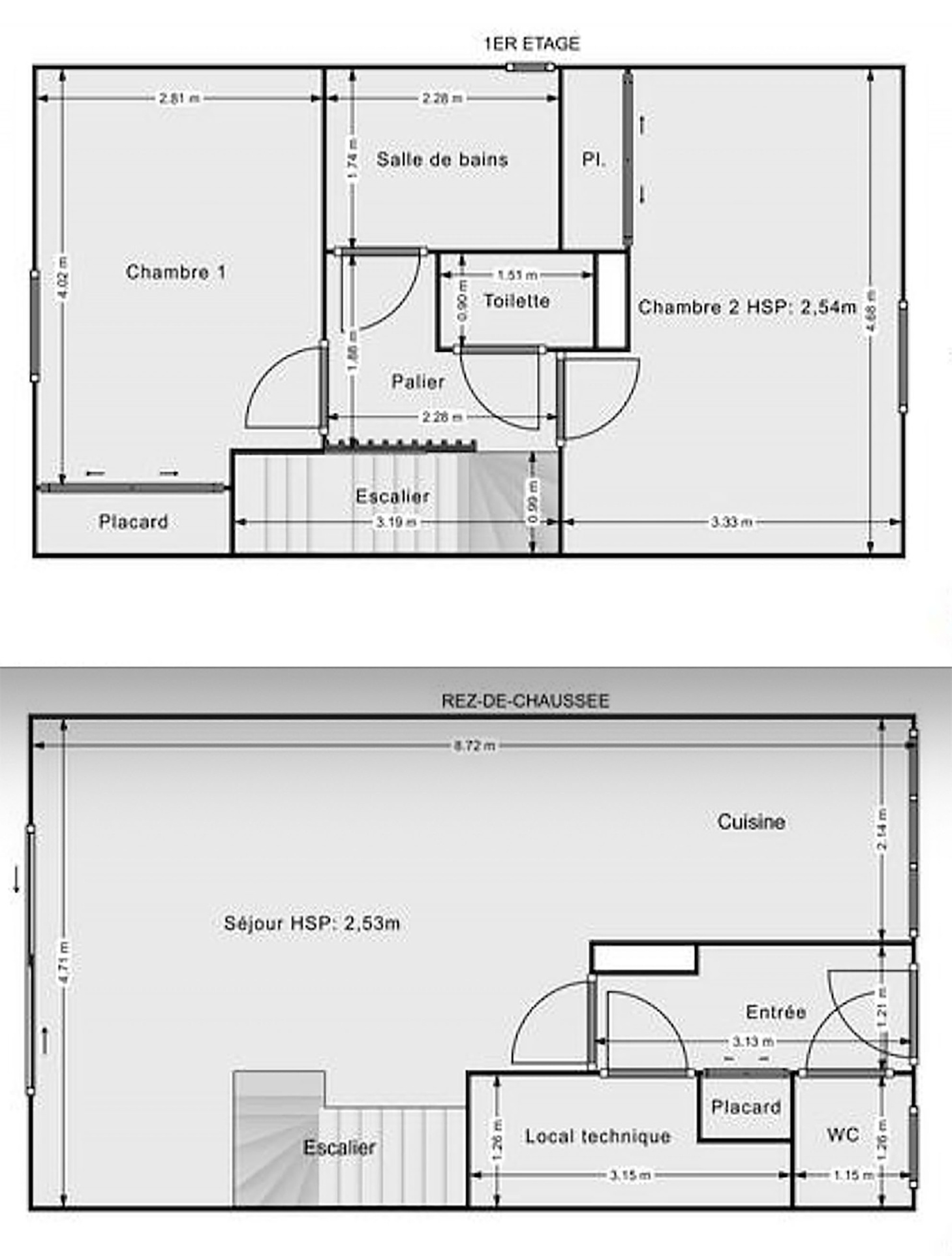
Au sein de cette résidence services 3 étoiles, nous proposons en exclusivité un investissement de choix en loueur meublé, une maison T3 de 69 m2 en duplex, entièrement meublée, équipée et bénéficie de 2 places de parking.
Le rdc délivre son hall avec placard de près de 4 m², un wc, un cellier de 3 m² ; la pièce de vie avec salon / cuisine aménagée de 27 m² s’ouvre sur une terrasse de 11 m² et son jardin. A l’étage, 2 belles chambres avec placard de 14 et 11,55 m², une salle de bains avec baignoire de 4 m² et un wc séparé.
Les + de la résidence : les services para-hôteliers, une piscine extérieure ouverte en saison avec sa terrasse accueillante.
Elle est plébiscitée par ses occupants et récolte de très bon avis., idéal pour le gestionnaire, idéal pour l’investisseur !
Ainsi, vous bénéficiez du statut LMNP en résidence services et de sa fiscalité avantageuse, d'un loyer garanti de 6 102 € par an (- les charges = revenus net d'impôt). Via ce statut cela permet d'amortir 85 % du prix immobilier, qui de ce fait, génère 0 € d’impôt sur vos revenus locatifs et ce à long terme (de 15 à 20 ans),
Aussi, comme le résultat comptable (fiscal) sera à 0, vous ne serez pas redevable des prélèvements sociaux (17,2%):-)
Zéro tracas, pas de recherche de locataire… Le gestionnaire, lié par bail commercial de 9 ans, vous assure et verse le loyer chaque mois.
Prix FAI : VENDU
Bail & loyers :
- Bail : jusqu’au 21/01/2027 (renouvelable)
- Loyers : 6 102 €/an - règlement des loyers mensuellement
- Charges par trimestre : 119 €
- Taxe foncière : 1 066 €
- Année de construction : 2006 - Dépense énergétique, DPE : catégorie C
- Electricité, eau : pris en charge par le gestionnaire
Contactez-nous pour plus de précisions
> Expertimo - Tél 07 56 92 05 06
Annonce proposée par un agent commercial
Localisation Du bien
-
Commerces et santé
-
Loisirs
-
Ecoles
-
Transports
-
Pratique
Les infos Energetiques
Ce site est protégé par reCAPTCHA, les Politiques de Confidentialité et les Conditions d'Utilisation de Google s'appliquent.
Détails des diagnostics énergétiques
A saisir, maison T3 - 70 m2 en loueur meublé, résidence 3***
