Les infos Essentielles
Christelle ESPOSITO vous propose en exclusivité la dernière opportunité au sein du lotissement Le Clos du Cousson : un Beau terrain entièrement viabilisé de 505 m², idéalement situé dans un environnement résidentiel calme et privilégié à Digne-les-Bains, préfecture des Alpes-de-Haute-Provence et ville thermale.
Implanté au pied du Cousson, ce terrain bénéficie d’une excellente exposition et offre une vue dégagée remarquable sur la montagne emblématique et la vallée de la Bléone. Un cadre naturel rare, alliant sérénité, ensoleillement et qualité de vie.
À seulement 5 minutes du centre-ville et de la zone commerciale Saint-Christophe, vous profitez de toutes les commodités tout en vivant en pleine nature. La situation est également idéale grâce à la proximité :
-
des stations de ski du Grand Puy, de Chabanon et de Saint-Jean Montclar (40 minutes),
-
de Manosque et Sisteron (40 minutes),
-
d’Aix-en-Provence (1 heure).
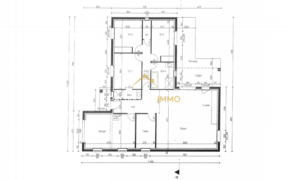
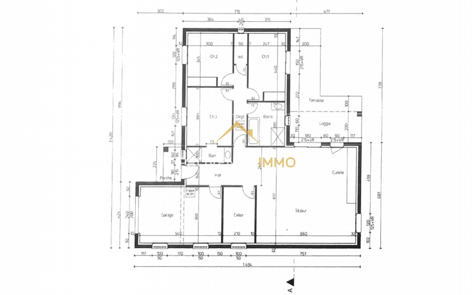
Un permis de construire déjà accordé permet de démarrer immédiatement un projet de villa de plain-pied de 110 m², comprenant trois chambres, une salle de bain, une vaste pièce de vie avec cuisine ouverte donnant sur terrasse, un cellier et un garage.
Le permis est modifiable, offrant une grande liberté de conception avec la possibilité de construire jusqu’à 200 m² au sol et 200 m² supplémentaires en R+1, selon vos envies.
Une étude de sol G1 a déjà été réalisée sur l’ensemble du lotissement.
Surface du terrain : 505 m²
DPE : Non soumis
Prix : 99 900 € honoraires d’agence inclus
Un bien rare, une vue exceptionnelle et la dernière opportunité dans ce lotissement prisé. À découvrir sans tarder.
Zone soumise à une obligation légale de débroussaillement.
Localisation Du bien
-
Commerces et santé
-
Loisirs
-
Ecoles
-
Transports
-
Pratique
Ce site est protégé par reCAPTCHA, les Politiques de Confidentialité et les Conditions d'Utilisation de Google s'appliquent.
