Les infos Essentielles
SPÉCIAL INVESTISSEUR : Ensemble Immobilier à Forte Rentabilité – Centre-Ville
Idéalement située à deux pas des commerces, des services et des complexes sportifs
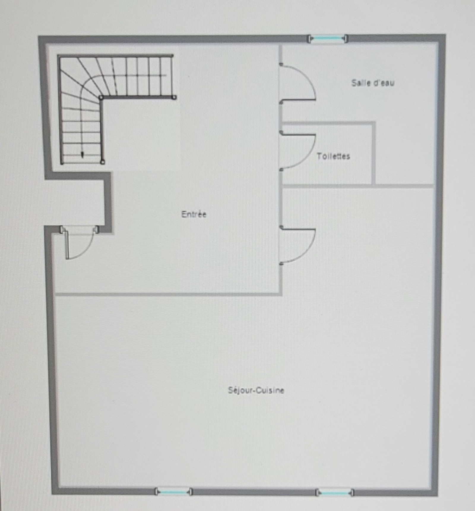
Rendement & Composition du Bien
L'ensemble développe une surface totale optimisée, répartie en deux lots des travaux de mise en conford sont à prévoir :
vmc,pompe à chaleur pour le grand appartement ,peinture,reparation placo,éléments de cuisine .
-
Appartement 1 (63 m²) : Spacieux et confortable, bénéficiant d'une excellente performance énergétique (Classe D ).
-
Loyer : 650 €/mois HC.
-
-
Appartement 2 (26 m²) : Type studio/T1 fonctionnel, idéal pour la demande locative locale. (DPE Classe F avant 1 er janvier 2026 )
-
Loyer : 330 €/mois HC.
-
Les points forts de cet investissement :
-
Revenu locatif total : 11 760 € / an.
-
Emplacement Premium : Tout se fait à pied pour les locataires (commerces et loisirs).
-
Le "Plus" Confort : Places de parking gratuites à proximité immédiate, un atout majeur en centre-bourg .
-
Potentiel : Possibilité d'optimisation énergétique sur le second lot pour valoriser davantage votre patrimoin
Annonce proposée par un agent commercial
Localisation Du bien
-
Commerces et santé
-
Loisirs
-
Ecoles
-
Transports
-
Pratique
Les infos Energetiques
Ce site est protégé par reCAPTCHA, les Politiques de Confidentialité et les Conditions d'Utilisation de Google s'appliquent.
Détails des diagnostics énergétiques
Pour les amoureux de la nature !
