Les infos Essentielles
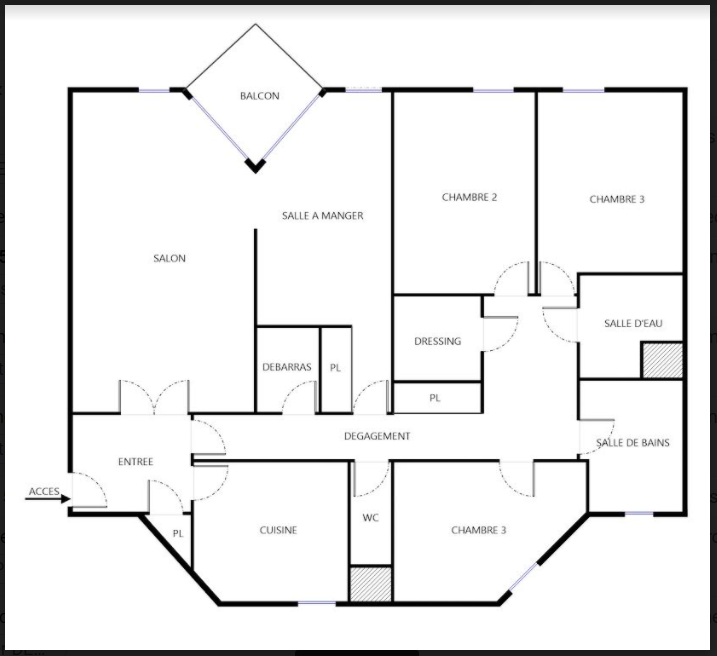
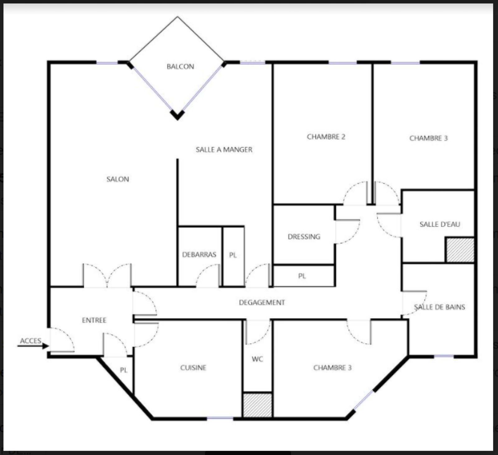
VANVES / Jean Bleuzen : à 5 mn du Métro, à proximité du 15ème arrondissement et de tous commerces.Au 3ème étage au calme, dans un immeuble récent très bien entretenu et résidentiel avec 2 ascenseurs, nous vous proposons un beau 5 pièces familial et très lumineux,d'environ 100 m² en bon état général.Très bon plan modulable.Il se compose d'un grand salon/ salle à manger (35 m² environ) avec balcon ,d'une belle cuisine équipée et séparée, de trois chambres (possibilité quatre) d'une salle de bains, d'une salle de douche et de 2 wc .Très nombreux placards, un grand dressing,double vitrage, porte blindée.Une cave et un emplacement de parking en sous-sol complètent ce bien.Gardienne, local à vélo, interphone.Métro Malakoff-Plateau de Vanves.Charges annuelles 3960€, 3 lots. (RSAC 352137756- Paris)
Annonce proposée par un agent commercial
Localisation Du bien
-
Commerces et santé
-
Loisirs
-
Ecoles
-
Transports
-
Pratique
Les infos Energetiques
Ce site est protégé par reCAPTCHA, les Politiques de Confidentialité et les Conditions d'Utilisation de Google s'appliquent.
