Les infos Essentielles
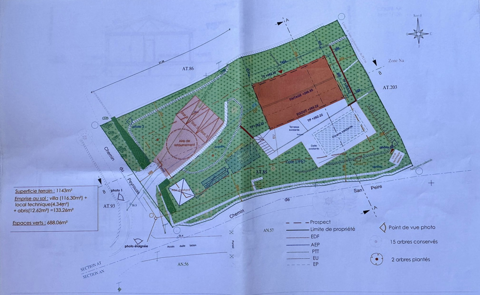
ST JEANNET / TERRAIN PLAT (avec permis accepté et purgé de tout recours) 1143m²
EXCLUSIVITE
Vue dégagée collines au calme absolu à 2 minutes du centre ville de st Jeannet, et à une vingtaine de minutes de Nice et son aéroport.
Magnifique terrain plat avec permis de construire validé pour une maison plain pied d'une surface de 116m² d'emprise au sol, avec conservation de la grande piscine actuelle.
Terrain viabilisé, Raccordement au tout à l'égout déjà existant.
Projet clés en main
Localisation Du bien
-
Commerces et santé
-
Loisirs
-
Ecoles
-
Transports
-
Pratique
La base légale du traitement repose sur l’intérêt légitime de l'Agence / du Réseau.
Elles sont conservées jusqu'à demande de suppression et sont destinées à  l'Agence / au Réseau.
Conformément à la loi « informatique et libertés », vous pouvez exercer votre droit d'accès aux données vous concernant et les faire rectifier en contactant l'Agence / le Réseau.
Si vous estimez, après avoir contacté l'Agence / le Réseau, que vos droits « Informatique et Libertés » ne sont pas respectés, vous pouvez adresser une réclamation à la CNIL.
Nous vous informons de l’existence de la liste d'opposition au démarchage téléphonique « Bloctel », sur laquelle vous pouvez vous inscrire ici : https://www.bloctel.gouv.frÂ
Dans le cadre de la protection des Données personnelles, nous vous invitons à ne pas inscrire de Données sensibles dans le champ de saisie libre
Ce site est protégé par reCAPTCHA, les Politiques de Confidentialité et les Conditions d'Utilisation de Google s'appliquent.
