Les infos Essentielles
Sommières, Sur les hauteurs de MAUVALAT,
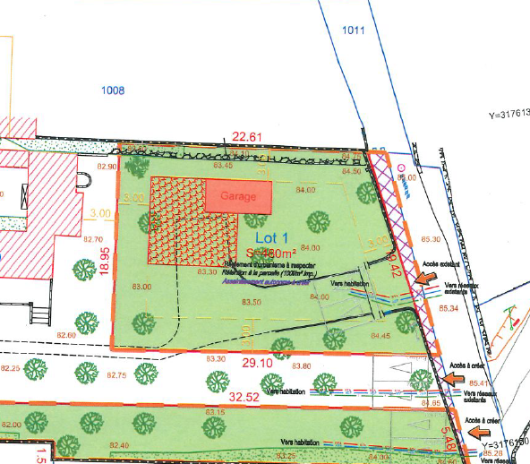
Issu d'une division parcelaire,
EN EXCLUSIVITE ,L'atelier de l'immo à la plaisir de vous proposer cette belle parcelle de 480 M2 idéalement sur le secteur recherché de MAUVALAT
Entrée independante, terrain plat, emprise au sol de 20% soit 96 M2
R+1 accepté , Viabilisation, G2, fosse septique à charge acheteur , clotures
PRIX 149 000 FAI
Pour toutes informations , me contacter pour toute visite
Stephanie & Lionel 06 14 78 11 91 & 06 87 61 43 08
Zone soumise à une obligation légale de débroussaillement.
Localisation Du bien
-
Commerces et santé
-
Loisirs
-
Ecoles
-
Transports
-
Pratique
La base légale du traitement repose sur l’intérêt légitime de l'Agence / du Réseau.
Elles sont conservées jusqu'à demande de suppression et sont destinées à  l'Agence / au Réseau.
Conformément à la loi « informatique et libertés », vous pouvez exercer votre droit d'accès aux données vous concernant et les faire rectifier en contactant l'Agence / le Réseau.
Si vous estimez, après avoir contacté l'Agence / le Réseau, que vos droits « Informatique et Libertés » ne sont pas respectés, vous pouvez adresser une réclamation à la CNIL.
Nous vous informons de l’existence de la liste d'opposition au démarchage téléphonique « Bloctel », sur laquelle vous pouvez vous inscrire ici : https://www.bloctel.gouv.frÂ
Dans le cadre de la protection des Données personnelles, nous vous invitons à ne pas inscrire de Données sensibles dans le champ de saisie libre
Ce site est protégé par reCAPTCHA, les Politiques de Confidentialité et les Conditions d'Utilisation de Google s'appliquent.
Détails des diagnostics énergétiques
SOMMIÈRES, MAUVALAT, Terrain à batir, calme, ensoleillé
