Les infos Essentielles
Sur une parcelle d'une contenance cadastrale totale de 1067 m², PROVENCE IMMO vous propose l'opportunité d'acquérir un bâtiment récent (construction 2020), clé en main, développant 520 m2 de plancher sur la charmante commune de Charleval.
Cette surface se compose de bureaux, d'un entrepôt et d'un spacieux appartement à l'étage. A usage mixte, le site bénéficie également d'un accès poids-lourds.
Entièrement clôturée avec portail automatique et siitué dans la Zone Arisanale des Rouompidou de Charleval, ce local d'activité bénéficie d'un parking d'une dizaine de places, ainsi que de places libres dans l'allée commune.
Caractéristiques principales :
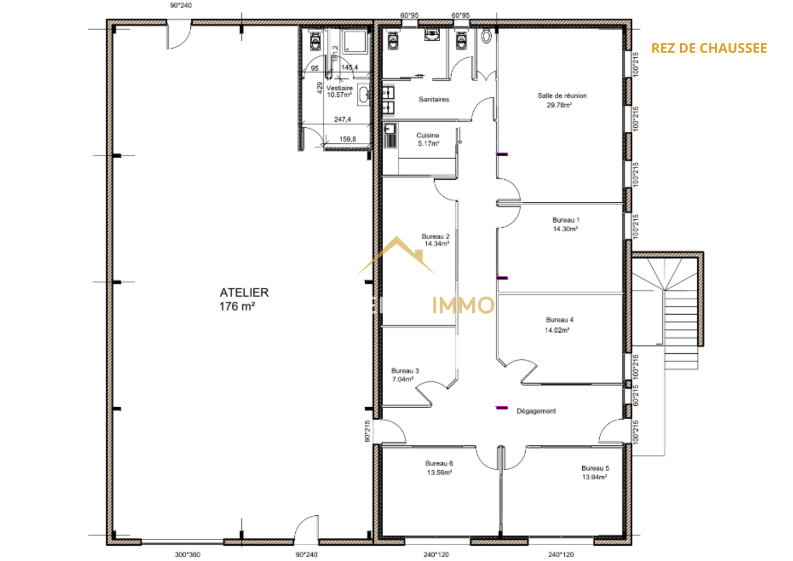
- Surface totale du local en rez de chaussée : 361 m²
- Partie brute d'environ 180m², avec porte de garage industrielle, traversant aux multiples ouvertures, équipé d'une partie mezzanine plancher bois, un vestiaire et salle de repos. Accès direct à la partie bureautique. Possibilité de créer un étage sur la superficie complète du local.
- Partie aménagée d'environ 180m²; entrée séparée par un grand hall et dégagement désservant les différentes pièces. Actuellement 4 spacieux et confortables bureaux équipés , une salle de réunion, une salle technique et les aménagements dédiés aux personnel ( salle de repos avec kitchenette équipée, sanitaites hommes + femme).
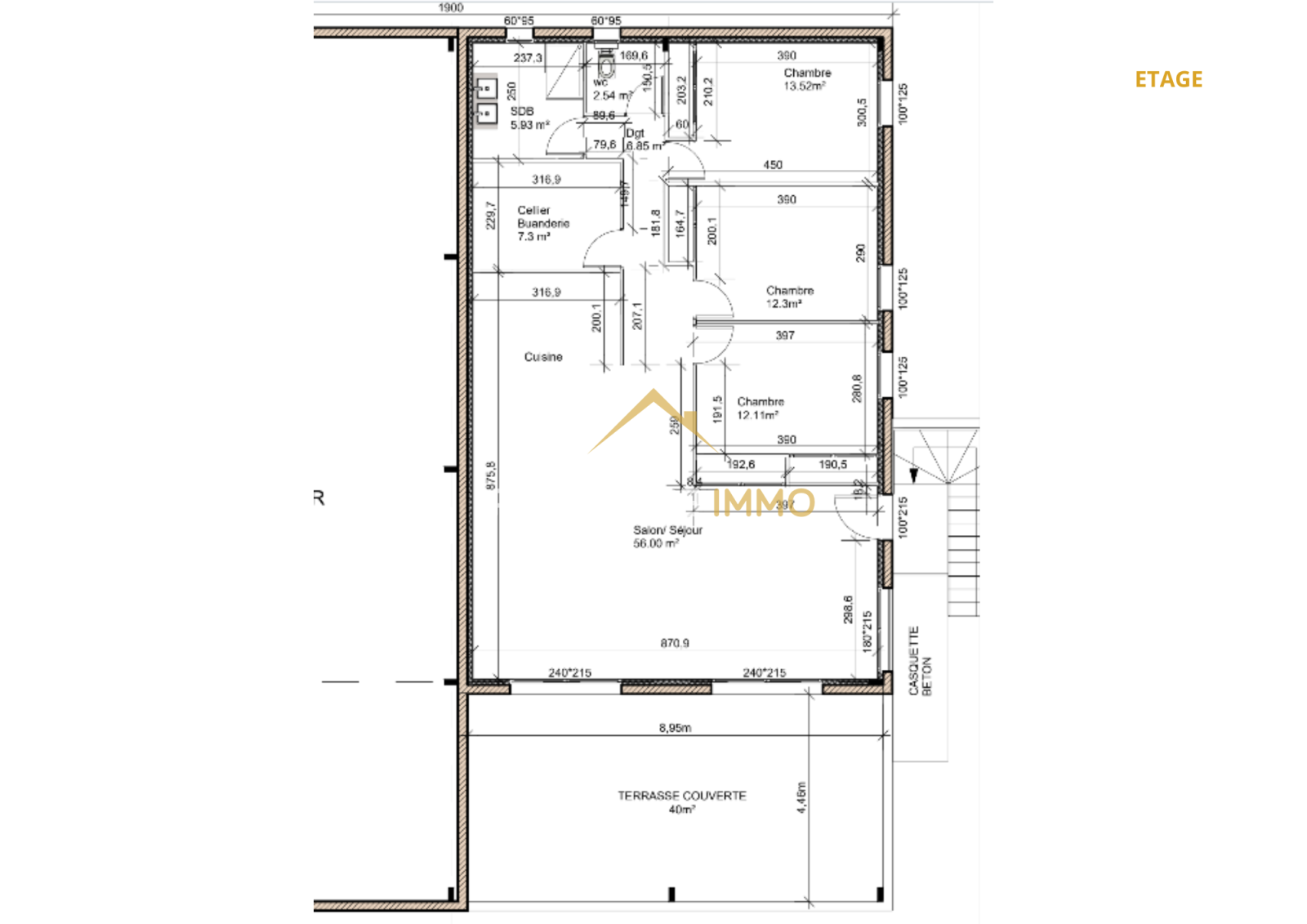
- Enfin, l'appartement de 116 m² avec accés indépendant par l'extérieur, et situé au dessus de la partie bureautique.
Cet appartement spacieux offre une pièce de vie lumieuse avec ses 3 grandes baies orientées Sud, accédant à la terrasse abritée de plus de 40m². Trois belles chambres, buanderie, WC indépendants et Salle de bain. Très agréable à vivre de part sa modernité et ses grans espaces, il pourra apporter une solution de vie ou une rentablilité supplémentaire.
Cet appartement fera aussi l'opportunité d'un aménagement en bureaux supplémentaires selon les besoins de l'activité implantée.
Pour plus d’informations ou organiser une visite, contactez-nous dès maintenant !
Prix de la cession : 750 000 euros, honoraires en sus 5%HT.
Les informations sur les risques auxquels ce bien est exposé sont disponibles sur le site Géorisques http://www.georisques.gouv.fr. N'ATTENDEZ PLUS, CONTACTEZ-NOUS POUR TOUTES INFORMATIONS COMPLÉMENTAIRES. Votre conseillère PROVENCE-IMMO PRO : Roxane Sournia EI.
Localisation Du bien
-
Commerces et santé
-
Loisirs
-
Ecoles
-
Transports
-
Pratique
Les infos Energetiques
La base légale du traitement repose sur l’intérêt légitime de l'Agence / du Réseau.
Elles sont conservées jusqu'à demande de suppression et sont destinées à  l'Agence / au Réseau.
Conformément à la loi « informatique et libertés », vous pouvez exercer votre droit d'accès aux données vous concernant et les faire rectifier en contactant l'Agence / le Réseau.
Si vous estimez, après avoir contacté l'Agence / le Réseau, que vos droits « Informatique et Libertés » ne sont pas respectés, vous pouvez adresser une réclamation à la CNIL.
Nous vous informons de l’existence de la liste d'opposition au démarchage téléphonique « Bloctel », sur laquelle vous pouvez vous inscrire ici : https://www.bloctel.gouv.frÂ
Dans le cadre de la protection des Données personnelles, nous vous invitons à ne pas inscrire de Données sensibles dans le champ de saisie libre
Ce site est protégé par reCAPTCHA, les Politiques de Confidentialité et les Conditions d'Utilisation de Google s'appliquent.
