Les infos Essentielles
 Expertimo a le plaisir de vous proposerce superbe terrain arboré de 407 m² idéalement situé sur un secteur résidentiel d'Aix en provence (St Mitre, roure d'Eguilles), proche du cente ville (7mn), bus, ecoles et commerces.
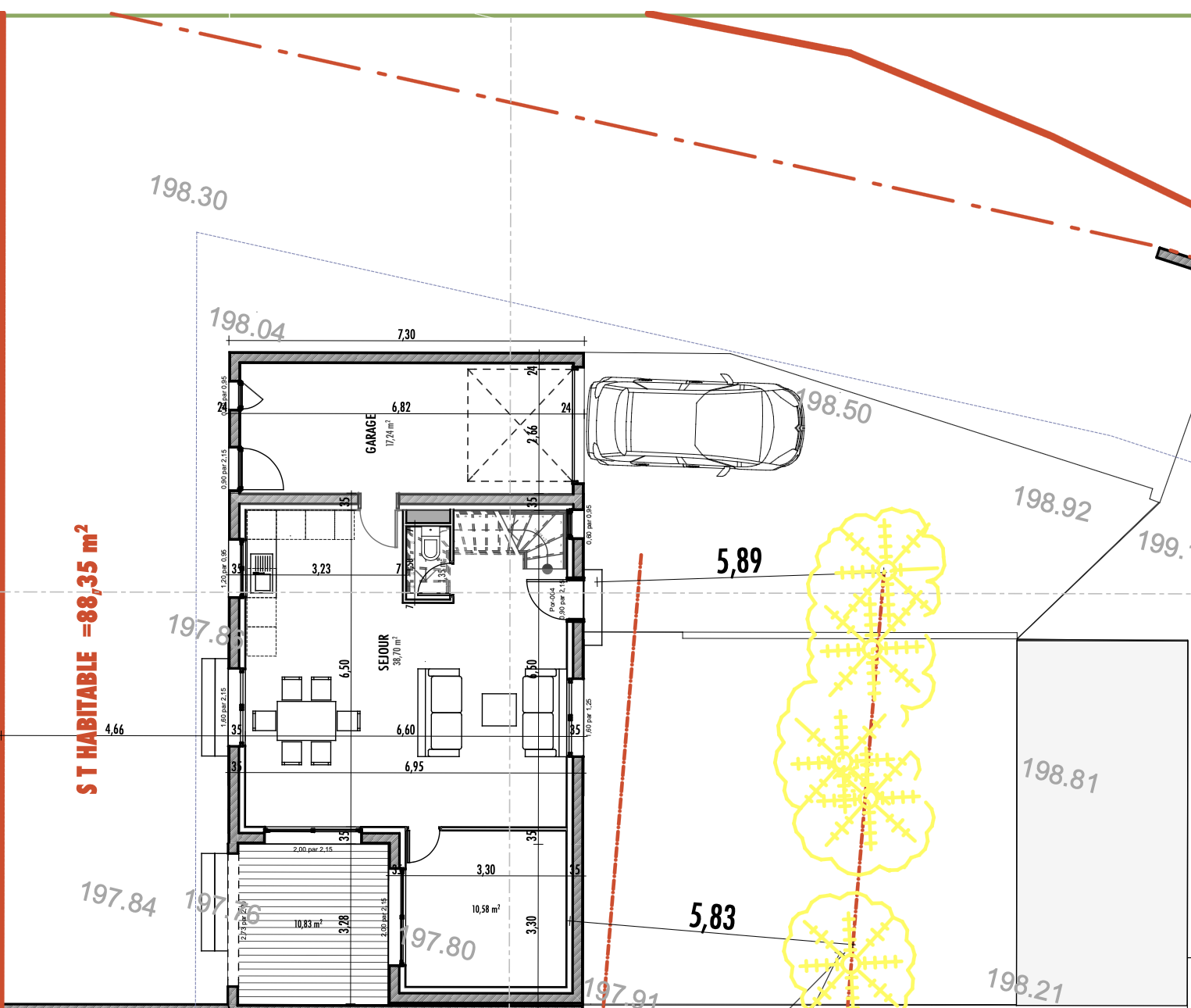
Un permis de construire a été obtenu pour ce projet captivant de villa contemporaine de 88 m² avec étage. Cette construction comprendra en rez-de-chaussée: Un beau séjour lumineux de 39 m², une chambre et une cuisine ouverte mettant en valeur de trés belles ouvertures sur une terrasse et le jardin.  Lalliance du Design moderne et de la fonctionnalité !
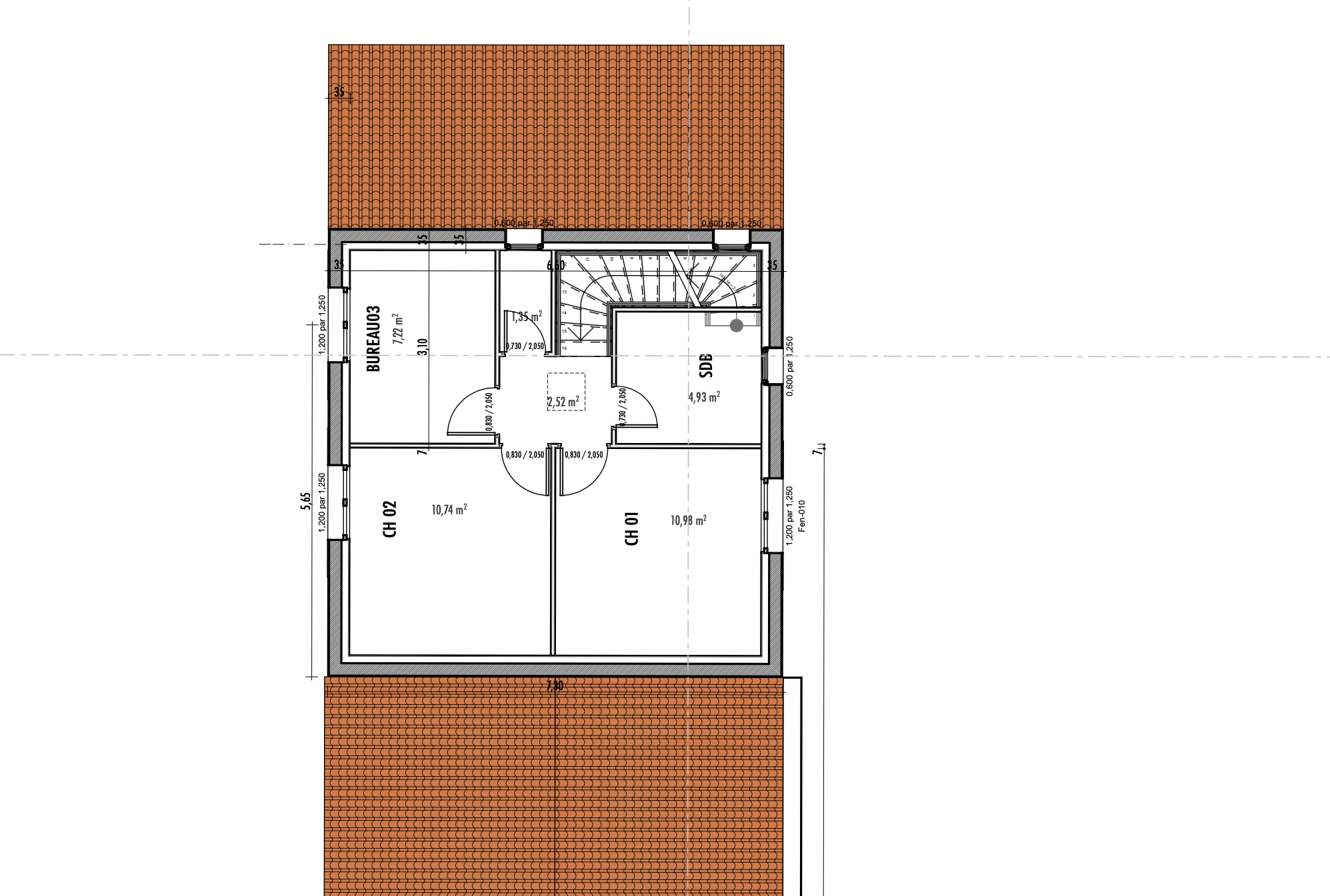
Vous trouverez à l'étage 2 chambres ainsi qu'un coin bureaux / Dressing, une salle de bain et un WC indépendant.
En annexe la maison possède un garage de 18m²
Nous sommes a votre disposition dés maintenantpour convenir d'un rendez-vous pour une visite et plus d'informations sur ce projet.
Votre Contact: Eric Mauvais 06 63 78 77 20
Annonce proposée par un agent commercial
Localisation Du bien
-
Commerces et santé
-
Loisirs
-
Ecoles
-
Transports
-
Pratique
Les infos Energetiques
La base légale du traitement repose sur l’intérêt légitime de l'Agence / du Réseau.
Elles sont conservées jusqu'à demande de suppression et sont destinées à  l'Agence / au Réseau.
Conformément à la loi « informatique et libertés », vous pouvez exercer votre droit d'accès aux données vous concernant et les faire rectifier en contactant l'Agence / le Réseau.
Si vous estimez, après avoir contacté l'Agence / le Réseau, que vos droits « Informatique et Libertés » ne sont pas respectés, vous pouvez adresser une réclamation à la CNIL.
Nous vous informons de l’existence de la liste d'opposition au démarchage téléphonique « Bloctel », sur laquelle vous pouvez vous inscrire ici : https://www.bloctel.gouv.frÂ
Dans le cadre de la protection des Données personnelles, nous vous invitons à ne pas inscrire de Données sensibles dans le champ de saisie libre
Ce site est protégé par reCAPTCHA, les Politiques de Confidentialité et les Conditions d'Utilisation de Google s'appliquent.
Détails des diagnostics énergétiques

Villa sur Marseille : Quartier du Vallon : La campagne à la ville...
