Les infos Essentielles
Lancement de la commercialisation du nouvel "Eco quartier" de 16 maisons individuelles et de 29 appartements au coeur de La Garnache, à proximité de toutes les commodités (écoles, supermarché, cabinet médical, commerces etc...), à 5 minutes de Challans, 20 minutes de la côte atlantique et 40 minutes de Nantes. Programme en VEFA pour une livraison au 31 12 2028 au plus tard.
- 16 maisons individuelles de 86m² à 96m² sur des terrains de 210m² à 600m² et de 259000€ à 330000€
- 29 logements en R+1 de 39,50m² à 67,21m² et de 157000€ à 268000€
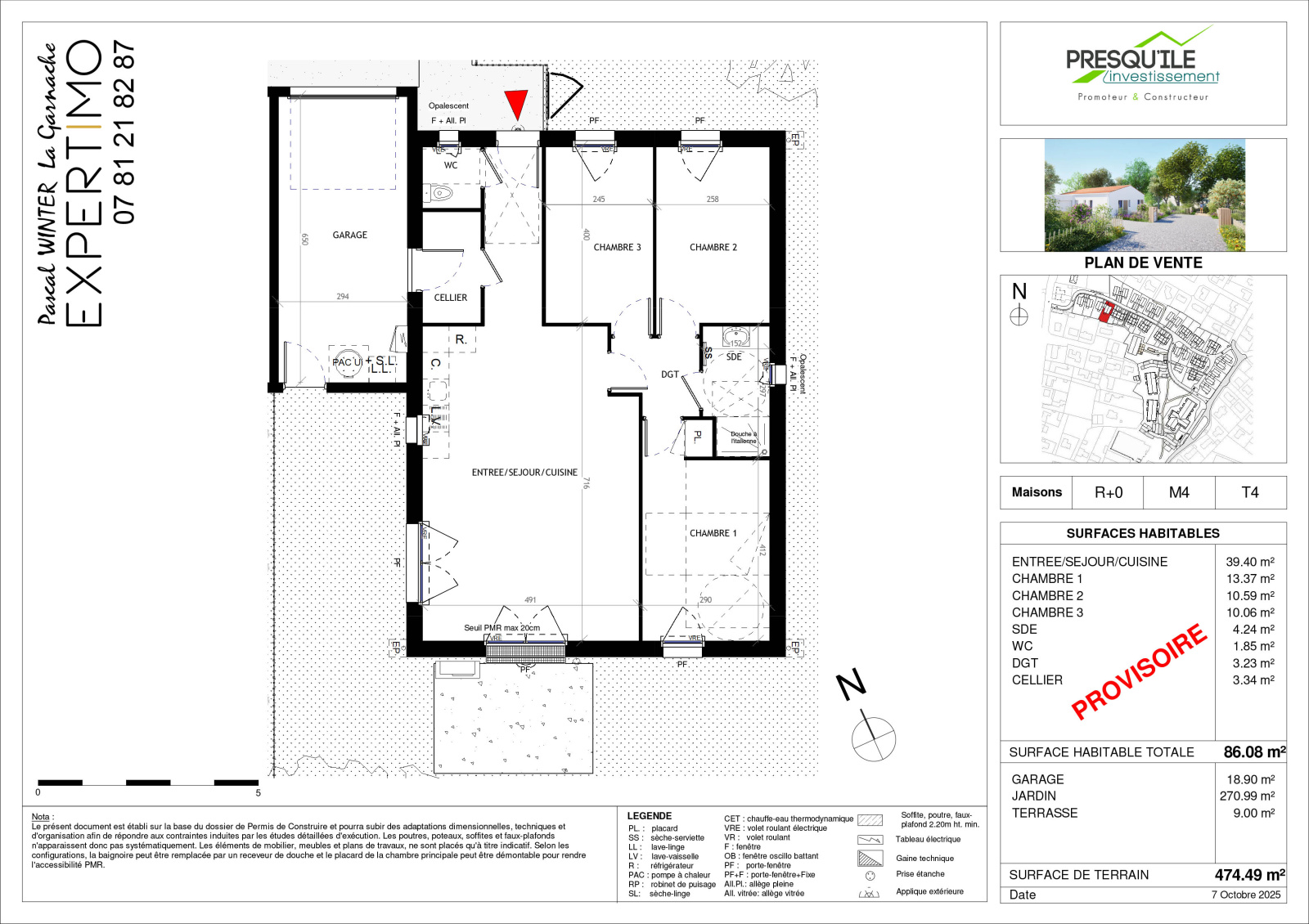
Exemple cette maison M4 sur les 2 premières photos de 86m², plain-pied, 3 chambres, 1 salle d'eau, 1 WC, 1 salon-séjour cuisine ouverte de 39,40m², 1 cellier, 1 garage de 18,90m², 1 terrasse sur un terrain clos de 474m² au prix de 294000€ TTC, honoraires inclus à la charge du vendeur.
Il est précisé que le prix ne comprend pas les frais ci-dessous indiqués et sont à la charge du Réservataire :
- les frais d'actes notariés de vente, y compris les frais de timbre et de publicité foncière;
- les frais et charges de prêts sollicités par le Réservataire;
- les frais de travaux supplémentaires par rapport aux prévisions de la réservation qui seraient demandés par le Réservataire;
- le montant de tous impôts et taxes, participations ou autres redevances à la charge de l'acquéreur, y compris ceux qui viendraient à être modifiés ou créés;
- les frais d’établissement du règlement et des statuts d’ASL;
- les frais de l’ASL à compter de la date à laquelle il aura été notifié au Réservataire que les locaux sont mis à sa disposition.
Diagnostics non obligatoires, construction aux normes RE 2020, assurance dommages-ouvrage comprise.
N'hésitez pas à contacter votre professionnel local de La Garnache Pascal Winter (EI) au 07 81 21 82 87 Email : pascal.winter.expertimo@gmail.com
Les informations sur les risques auxquels ce bien est exposé sont disponibles sur le site Géorisques : www.georisques.gouv.fr
Annonce rédigée et publiée par un agent mandataire.
Annonce proposée par un agent commercial
Localisation Du bien
-
Commerces et santé
-
Loisirs
-
Ecoles
-
Transports
-
Pratique
Les infos Energetiques
La base légale du traitement repose sur l’intérêt légitime de l'Agence / du Réseau.
Elles sont conservées jusqu'à demande de suppression et sont destinées à l'Agence / au Réseau.
Conformément à la loi « informatique et libertés », vous pouvez exercer votre droit d'accès aux données vous concernant et les faire rectifier en contactant l'Agence / le Réseau.
Si vous estimez, après avoir contacté l'Agence / le Réseau, que vos droits « Informatique et Libertés » ne sont pas respectés, vous pouvez adresser une réclamation à la CNIL.
Nous vous informons de l’existence de la liste d'opposition au démarchage téléphonique « Bloctel », sur laquelle vous pouvez vous inscrire ici : https://www.bloctel.gouv.fr
Dans le cadre de la protection des Données personnelles, nous vous invitons à ne pas inscrire de Données sensibles dans le champ de saisie libre
Ce site est protégé par reCAPTCHA, les Politiques de Confidentialité et les Conditions d'Utilisation de Google s'appliquent.
