Les infos Essentielles
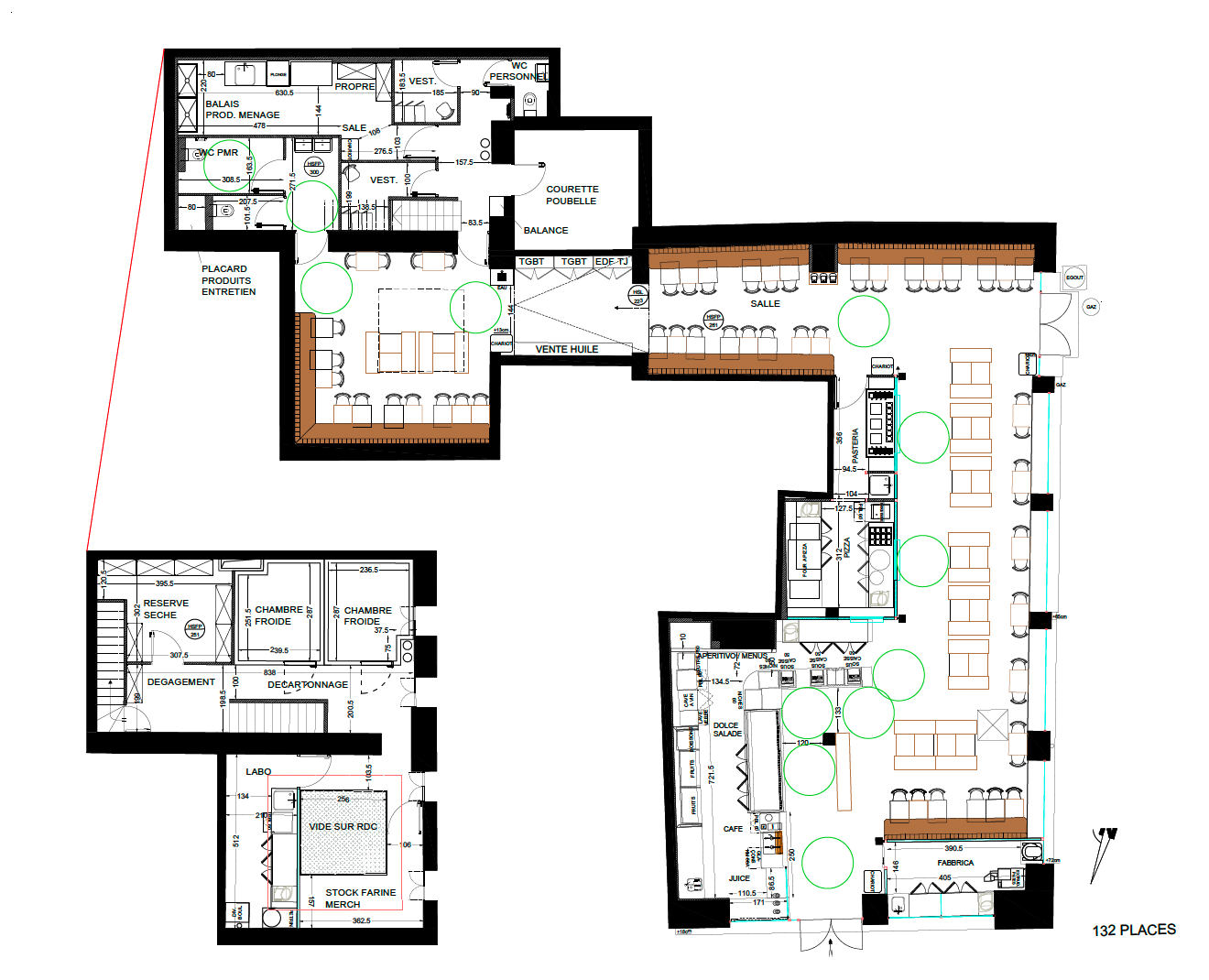
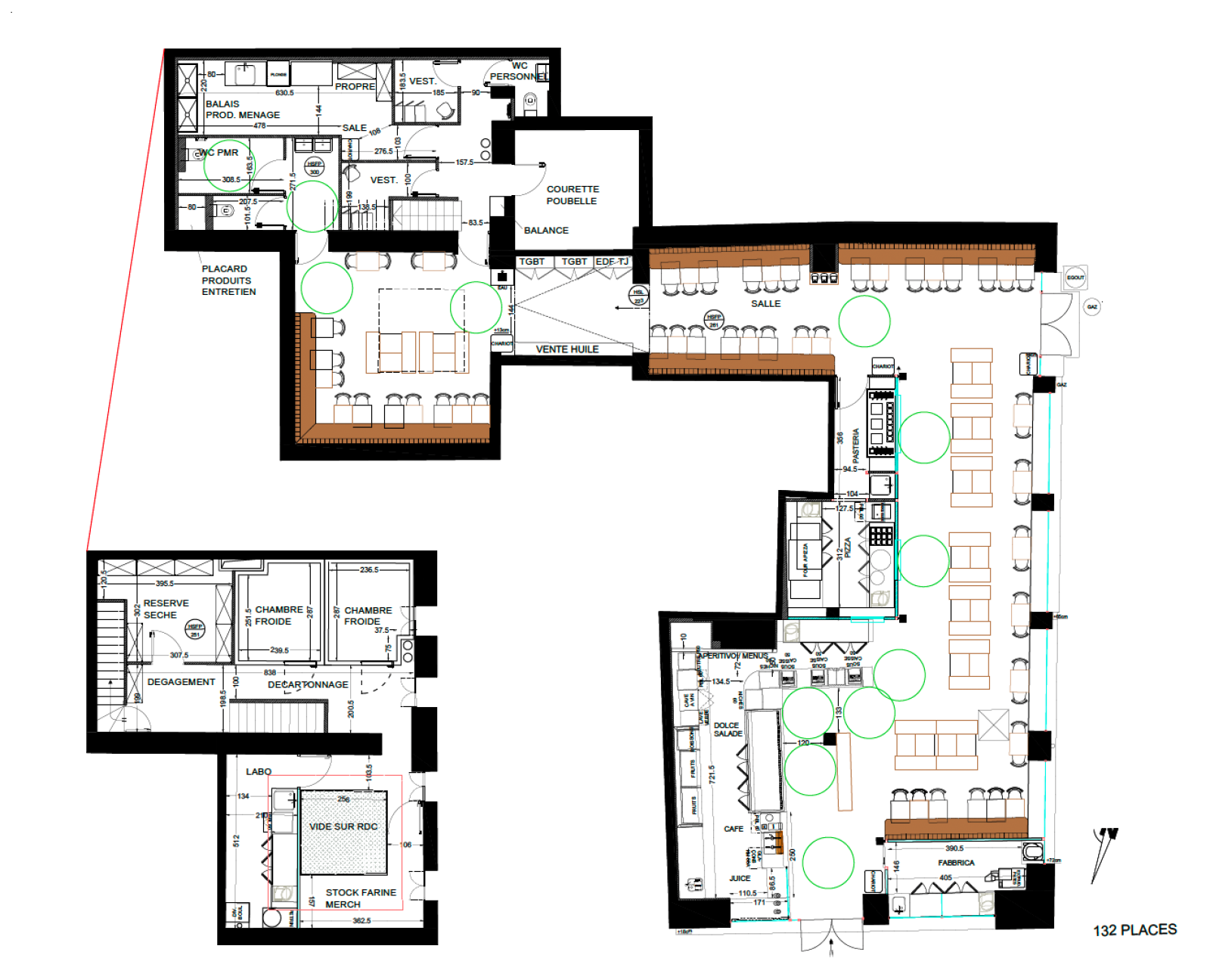
Nous vous proposons à la location un local commercial exceptionnel de 326 m², situé à l’angle de la rue Pythèas et Glandeves sur le Vieux-Port de Marseille, bénéficiant d’un emplacement premium et d’une exposition privilégiée offrant une visibilité optimale. Ce local rare sur le marché dispose également d’une terrasse privative, idéale pour renforcer l’attractivité de l’activité. Sa configuration et sa surface généreuse permettent d’accueillir de nombreux concepts : restauration, enseigne haut de gamme, commerce spécialisé ou activité de services (sous réserve d’autorisations). Un bien rare, idéal pour toute enseigne souhaitant bénéficier d’une adresse emblématique et d’une excellente vitrine commerciale.
Atouts majeurs : Adresse prestigieuse, au cœur du Vieux-Port, angle de rue avec visibilité maximale, surface de 326 m² exploitable, terrasse privative, environnement dynamique et touristique à forte fréquentation.
Annonce proposée par un agent commercial
