Les infos Essentielles
À louer – Local professionnel refait à neuf – 103 m² (Bordeaux)
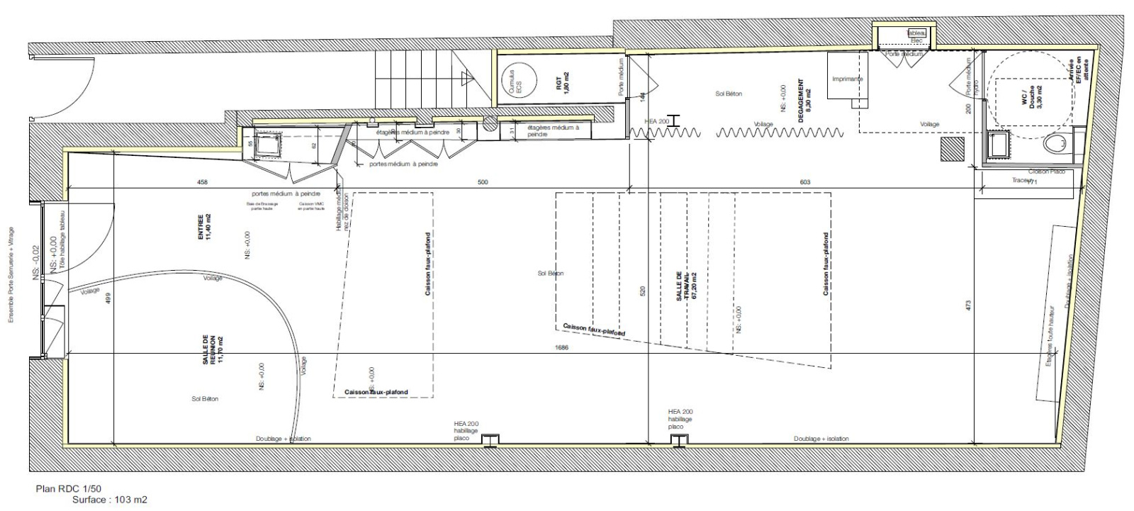
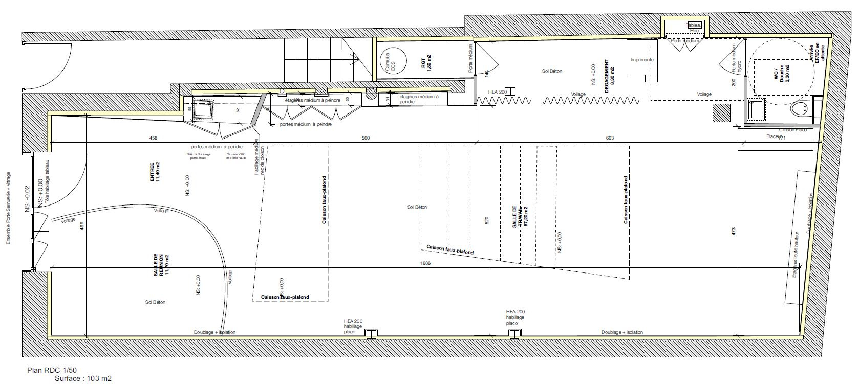
À louer, local professionnel en rez-de-chaussée d’une surface de 103 m², entièrement refait à neuf et bénéficiant d’une belle hauteur sous plafond de 3,5 m.
Idéalement situé à 3 minutes à pied du tram C et D et à seulement 300 mètres du Quai de la Monnaie, ce bien offre une localisation privilégiée, facile d’accès et proche du centre-ville.
Ce local conviendra parfaitement pour une activité de cabinet paramédical, kinésithérapeute, studio de yoga ou bureaux.
 La surface est modulable, offre de nombreuses possibilités d’aménagement selon votre projet.
- 
Loyer mensuel : 2 130 € HT 
- 
Provisions sur charges : 60 € / mois 
- 
Dépôt de garantie : 2 mois de loyer HT, soit 4 260 € 
- 
Honoraires à la charge du locataire (forfaitaire) : 5 000 € HT 
Une visite virtuelle du local est disponible sur demande.
Le local est disponible à partir du 01 novembre 2025, je reste disponible pour tout renseignement complémentaire.Â
Annonce proposée par un agent commercial
* CC : Charges comprises
Localisation Du bien
- 
            Commerces et santé
            
- 
            Loisirs
            
- 
            Ecoles
            
- 
            Transports
            
- 
            Pratique
            
Les infos Energetiques
La base légale du traitement repose sur l’intérêt légitime de l'Agence / du Réseau.
Elles sont conservées jusqu'à demande de suppression et sont destinées à  l'Agence / au Réseau.
Conformément à la loi « informatique et libertés », vous pouvez exercer votre droit d'accès aux données vous concernant et les faire rectifier en contactant l'Agence / le Réseau.
Si vous estimez, après avoir contacté l'Agence / le Réseau, que vos droits « Informatique et Libertés » ne sont pas respectés, vous pouvez adresser une réclamation à la CNIL.
Nous vous informons de l’existence de la liste d'opposition au démarchage téléphonique « Bloctel », sur laquelle vous pouvez vous inscrire ici : https://www.bloctel.gouv.frÂ
Dans le cadre de la protection des Données personnelles, nous vous invitons à ne pas inscrire de Données sensibles dans le champ de saisie libre
Ce site est protégé par reCAPTCHA, les Politiques de Confidentialité et les Conditions d'Utilisation de Google s'appliquent.

 
             
                                                     
                                                     
                                                     
                                                    