Les infos Essentielles
SOUS OFFRE ACCEPTEE
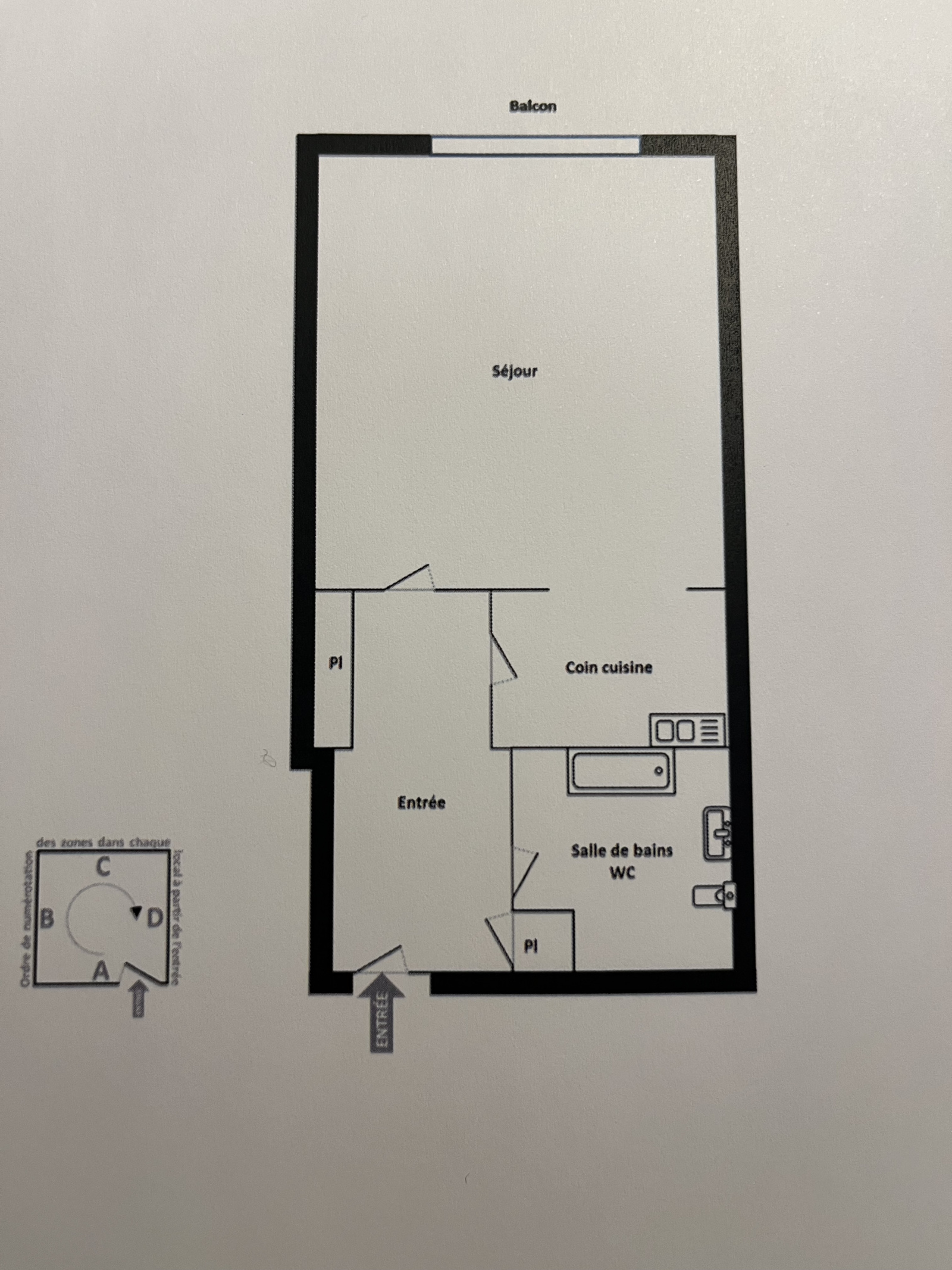
Très belle adresse sur Hôtel des Postes côté Galeries Lafayette MASSENA.
Appartement à rénover, idéal pied à terre mais aussi investissement locatif.
Possibilité de faire un deux pièces avec balcon orienté sud / sud-est dans l'hypercentre, commerces, sites touristiques et plage accessibles à pied !!
Lumineux, belle hauteur sous plafond, une fois un vrai coin nuit réalisé, ce bien peut devenir une résidence principale dans un bel immeuble bien tenu avec un emplacement privilégié au centre ville tout en étant au calme et avec un extérieur.
Vous réaliserez une plus value en capital en créant ce coin nuit, avec une sécuristaion de votre patrimoine compte tenu de la qualité de l'emplaceement et de l'immeuble.
Cave en ss-sol en sus au prix de 4000€
