Les infos Essentielles
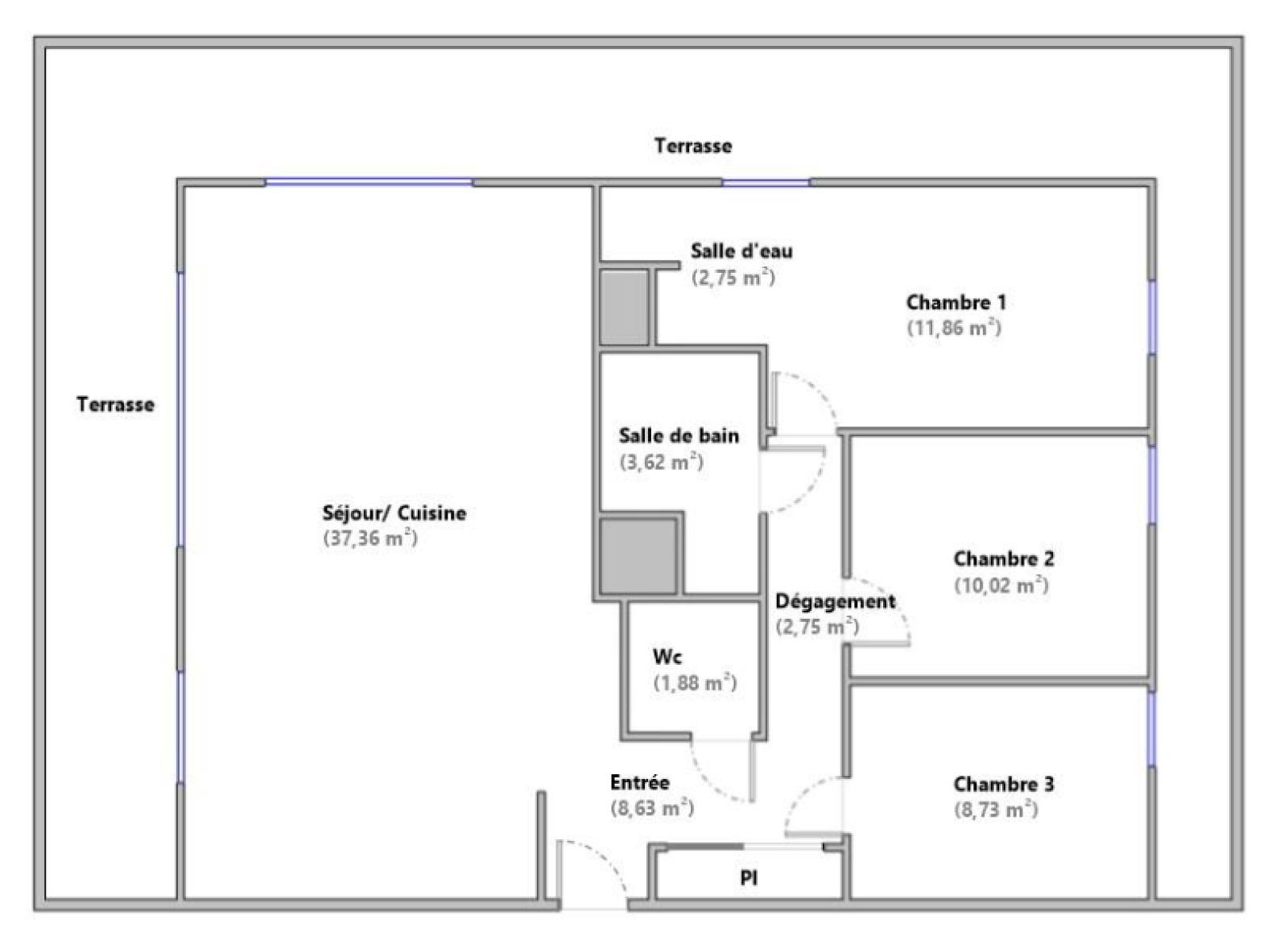
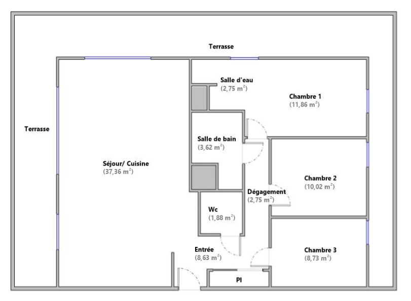
EXCLUSIVITE - PANTIN - QUATRE CHEMINS - Et si vous preniez votre café matinal sur votre terrasse à l’ombre d’une tonnelle et d’arbres fruitiers, en profitant d’une vue dégagée ? Venez visiter cet appartement familial de 88 m2 environ au 4ème et dernier étage d’une copropriété récente de 2014.
Situé dans une petite rue calme, avec peu de passage, lumineux et traversant, il est composé d’une grande pièce à vivre de 38 m2 environ avec une belle cuisine américaine équipée et un ilot central. Vous bénéficierez d'un accès à la terrasse sans vis à vis, dotée d'une triple exposition. La partie nuit se compose de 3 chambres dont une avec salle d’eau, une salle de bain et un WC indépendant. Toutes les chambres ont un accès direct vers la terrasse.
Espaces optimisés. Double vitrage. Fibre. Compteurs individuels consommation eau chaude et chauffage. Électricité aux normes. Un emplacement de parking en sous-sol complète ce bien. Copropriété sécurisée. Digicode. Visiophone. 2 appartements par palier. Ascenseur. Bon voisinage. Jardin partagé. Local vélos. DPE C.
Proche écoles publiques et privées (Sainte-Marthe), commerces et transports (nombreux bus : 152, 330, 170, 249, N42 ; métro ligne 7 - station Aubervilliers-Pantin Quatre Chemins à 8' à pied ; RER E - station Pantin à 15' à pied). Proximité Canal de l'Ourcq.
Bienvenue pour les visites !
Annonce proposée par un agent commercial
Localisation Du bien
-
Commerces et santé
-
Loisirs
-
Ecoles
-
Transports
-
Pratique
Les infos Energetiques
La base légale du traitement repose sur l’intérêt légitime de l'Agence / du Réseau.
Elles sont conservées jusqu'à demande de suppression et sont destinées à  l'Agence / au Réseau.
Conformément à la loi « informatique et libertés », vous pouvez exercer votre droit d'accès aux données vous concernant et les faire rectifier en contactant l'Agence / le Réseau.
Si vous estimez, après avoir contacté l'Agence / le Réseau, que vos droits « Informatique et Libertés » ne sont pas respectés, vous pouvez adresser une réclamation à la CNIL.
Nous vous informons de l’existence de la liste d'opposition au démarchage téléphonique « Bloctel », sur laquelle vous pouvez vous inscrire ici : https://www.bloctel.gouv.frÂ
Dans le cadre de la protection des Données personnelles, nous vous invitons à ne pas inscrire de Données sensibles dans le champ de saisie libre
Ce site est protégé par reCAPTCHA, les Politiques de Confidentialité et les Conditions d'Utilisation de Google s'appliquent.
