Les infos Essentielles
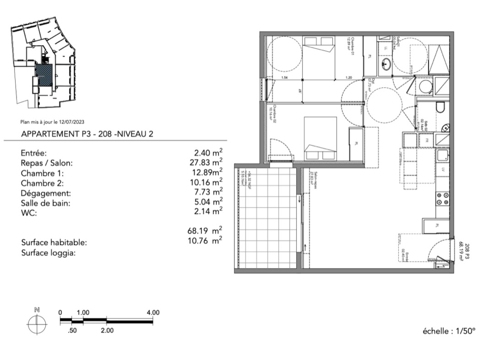
Venez découvrir ce 3 pièces de 68,19m2 avec terrasse à deux pas du centre de Nîmes. Situé dans une résidence sécurisée, l'appartement équipé de la climatisation réversible dispose de 2 chambres orientées Ouest, une salle d'eau ainsi que des toilettes séparés. La pièce à vivre ouvre sur une terrasse de 10,76 m2 orientée Ouest avec une vue dégagée sur la cour intérieure de l'immeuble. L'appartement dispose d'un parkings en sous-sol de la résidence. Véritable plus dans ce quartier.
Localisation Du bien
-
Commerces et santé
-
Loisirs
-
Ecoles
-
Transports
-
Pratique
Les infos Energetiques
Ce site est protégé par reCAPTCHA, les Politiques de Confidentialité et les Conditions d'Utilisation de Google s'appliquent.
