Les infos Essentielles
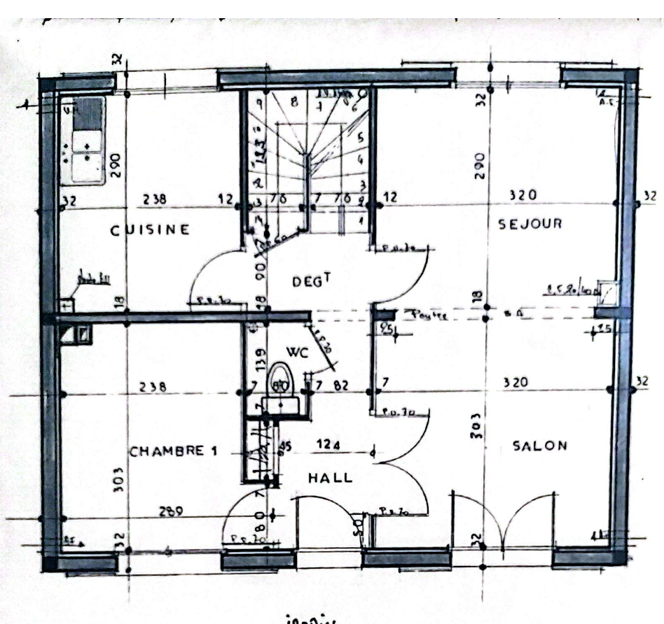
Maison de 5 pièces, comprenant au RDC : une entrée avec placard, une chambre / bureau, une cuisine indépendante aménagée et équipée, un espace séjour/salon traversant et donnant sur une grande véranda de 20 m2 environ et un wc indépendant avec lave-mains. A l'étage: 2 chambres, un wc indépendant, une salle de bain et un accès au grenier. Le tout sur un sous-sol total de 60m2 environ, comprenant : une salle de jeux/sport/détente, une cave, une buanderie et un espace garage/stockage et une pièce de rangement. Les plus : un garage indépendant, un jardin exposé Sud/Est, sans vis-à -vis et avec une vue dégagée sur un espace de verdure. Le bien est situé dans un environnement calme et verdoyant, dans une résidence, proche des écoles (2 mm à pied), à 2 km du centre ville et à 4 km de la gare d'Etampes ( RER C ). Idéal pour une famille, les enfants peuvent jouer, faire des activités en toute sécurité.
Les informations sur les risques auxquels ce bien est exposé sont disponibles sur le site Géorisques
Localisation Du bien
-
Commerces et santé
-
Loisirs
-
Ecoles
-
Transports
-
Pratique
Les infos Energetiques
Ce site est protégé par reCAPTCHA, les Politiques de Confidentialité et les Conditions d'Utilisation de Google s'appliquent.
Détails des diagnostics énergétiques
Montant estimé des dépenses annuelles d'énergie pour un usage standard est compris entre 1 600 € et 2 190 € . Prix moyens des énergies indexés sur les années 2021, 2022 et 2023 (abonnements compris).
