Les infos Essentielles
EXCLUSIVITE ! * Disponibilité et visites 7/7 * A seulement 12 min à pied du métro Mairie de Montrouge, rue de la Vanne, découvrez ce bel appartement familial niché au sein d'une résidence récente (2015), sécurisée avec gardien, et donnant sur la coulée verte. Vous serez séduits par le standing de l'immeuble, ses espaces verts et son environnement particulièrement calme. Situé au 1er étage sur 3 avec ascenseur, cet appartement en double exposition, Sud et Est, offre une luminosité remarquable et des volumes généreux.
>
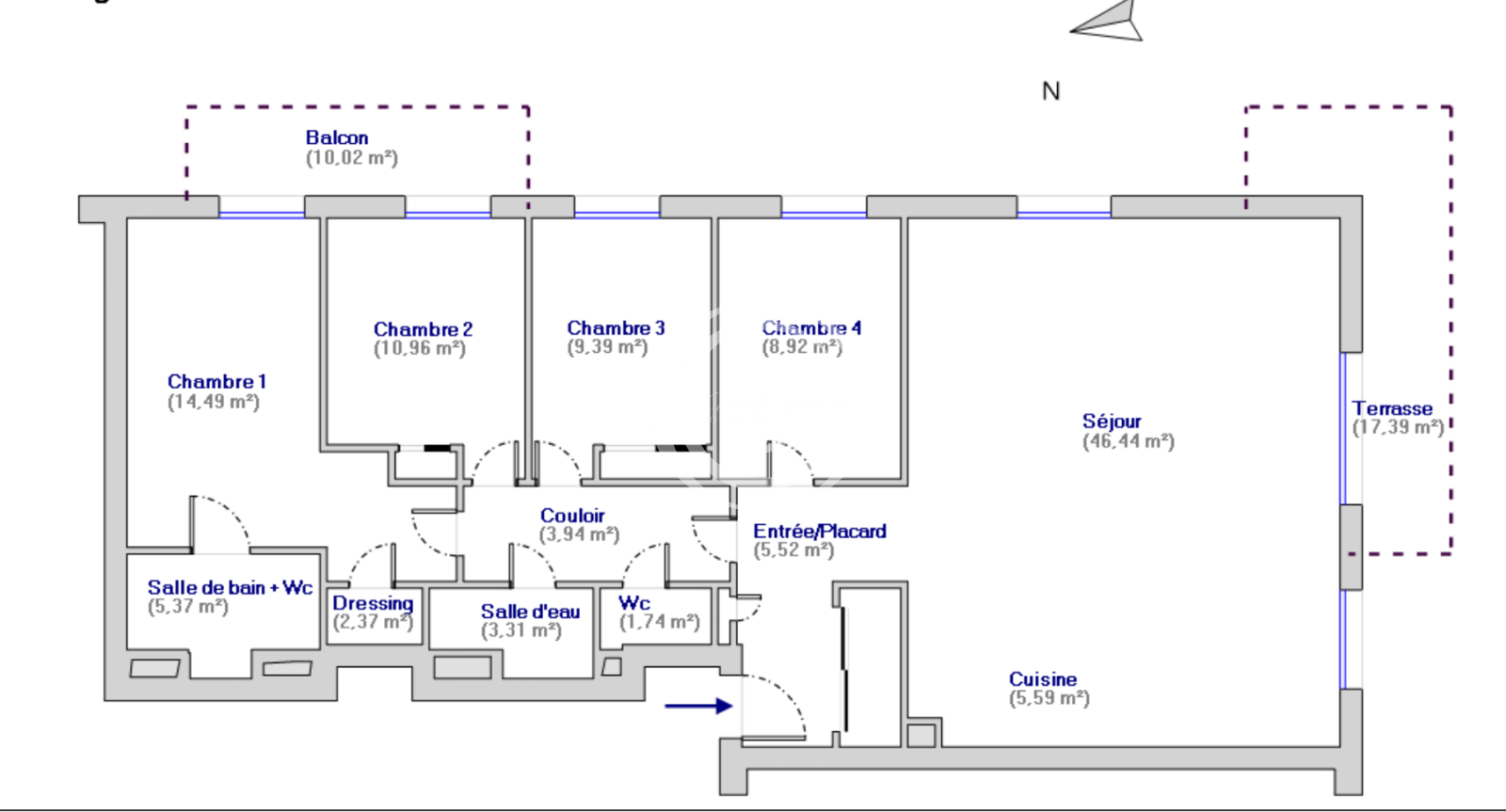
Coté réception : Grande pièce de vie avec cuisine ouverte de plus de 50m2 baignée de lumière grace à sa double exposition prolongée par une agréable terrasse de 17m2, donnant sur la coulée verte, à l'abri des nuisances. Coté nuit : Une suite principale avec dressing, salle de bains avec WC et accès à un large balcon de 10m2. Une deuxième chambre avec accès balcon. Deux autres chambres également au calme sur la coulée verte. Une salle d'eau indépendante. Des WC séparés. Un plan est diffusé pour une lecture claire des espaces. Une cave complète ce bien, ainsi qu'un double box et un emplacement de parking. Local vélos dans la copropriété.
>
Informations techniques & financières : Double vitrage, parquet en chêne, chauffage collectif au gaz. Les charges de copropriété incluant le chauffage, l'eau froide et l'eau chaude s'élèvent à 410€ par mois soit 4 920€ annuel. Information d’affichage énergétique : Classe ENERGIE B / Classe CLIMAT C. Copropriété de 138 lots d'habitation. 4 lots principaux concernés par la vente. Procédure en cours dans la copropriété.
>
Les honoraires d’agence sont inclus et à la charge du vendeur ce qui permet à l'acquéreur de préserver le montant de son apport vis-à -vis des banques et ainsi de faciliter l'obtention de son prêt. Plus d'informations sur le site carolegouix.com et n'hésitez pas à me suivre sur Facebook et Instagram pour découvrir les biens en "OFF market" et des conseils en immobilier ! @carolegouix.immo ; service noté par mes clients 5/5 (avis clients certifiés ET sur google).
Annonce proposée par un agent commercial
Localisation Du bien
-
Commerces et santé
-
Loisirs
-
Ecoles
-
Transports
-
Pratique
Les infos Energetiques
Ce site est protégé par reCAPTCHA, les Politiques de Confidentialité et les Conditions d'Utilisation de Google s'appliquent.
