Les infos Essentielles
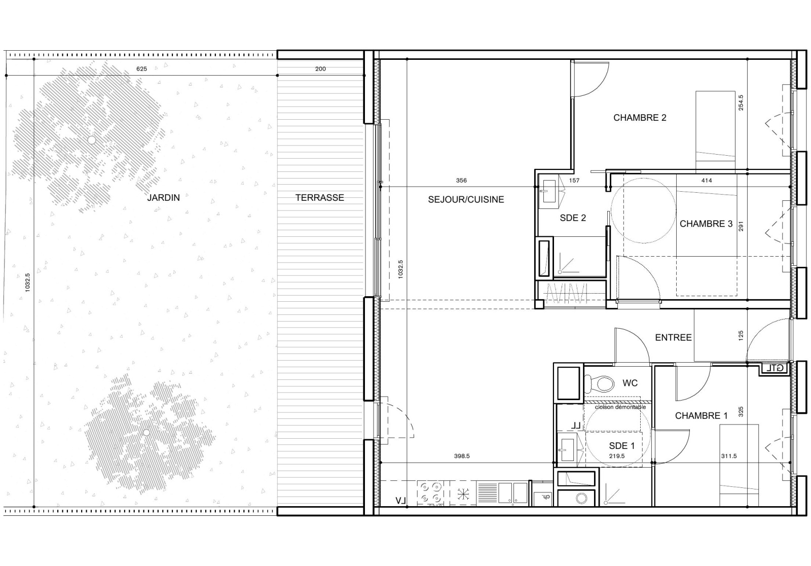
Dans une résidence récente (2023) de faible hauteur (1 étage) à LAGORD ( 17140) à 3kms du centre de LA ROCHELLE, découvrez ce T4 de 93 m² en rez-de-chaussée, en excellent état et prêt à vivre.
L’accès à la résidence, partiellement ceinturé comme un clos, renforce la sensation de sécurité et d’intimité dès l’arrivée.
L’architecture “maisons sur les toits” apporte une vraie originalité : une silhouette légère, qui se démarque des résidences classiques.
Cette conception, associée à l’enceinte façon murs de clôture, donne au lieu un esprit “entre maison et appartement”.
À l’intérieur : une entrée, une belle pièce de vie, 3 chambres, 2 salles d’eau et un WC, avec une décoration chaleureuse et soignée.
Le grand jardin, simple mais agréable à regarder, permet de profiter d’un extérieur sans contraintes.
Côté annexes, le trio garage + stationnement extérieur + cave rappelle le confort d’une maison… et reste rare à réunir.
Faibles charges et proximité immédiate des commerces et des écoles : un quotidien pratique, serein, et facile à vivre.
Annonce proposée par un agent commercial
Localisation Du bien
-
Commerces et santé
-
Loisirs
-
Ecoles
-
Transports
-
Pratique
Les infos Energetiques
VISIOPHONE
Parquet
Attenante à la ch1
Attenante à la CH2 et 3
placard
Espace cuisine : 18.29
Galetas
PARQUET
Parquet . Sert de dressing
Ce site est protégé par reCAPTCHA, les Politiques de Confidentialité et les Conditions d'Utilisation de Google s'appliquent.
Détails des diagnostics énergétiques
Montant estimé des dépenses annuelles d'énergie pour un usage standard est compris entre 820 € et 1 150 € . Prix moyens des énergies indexés sur les années 2021, 2022 et 2023 (abonnements compris).
