Les infos Essentielles
Les essentiels
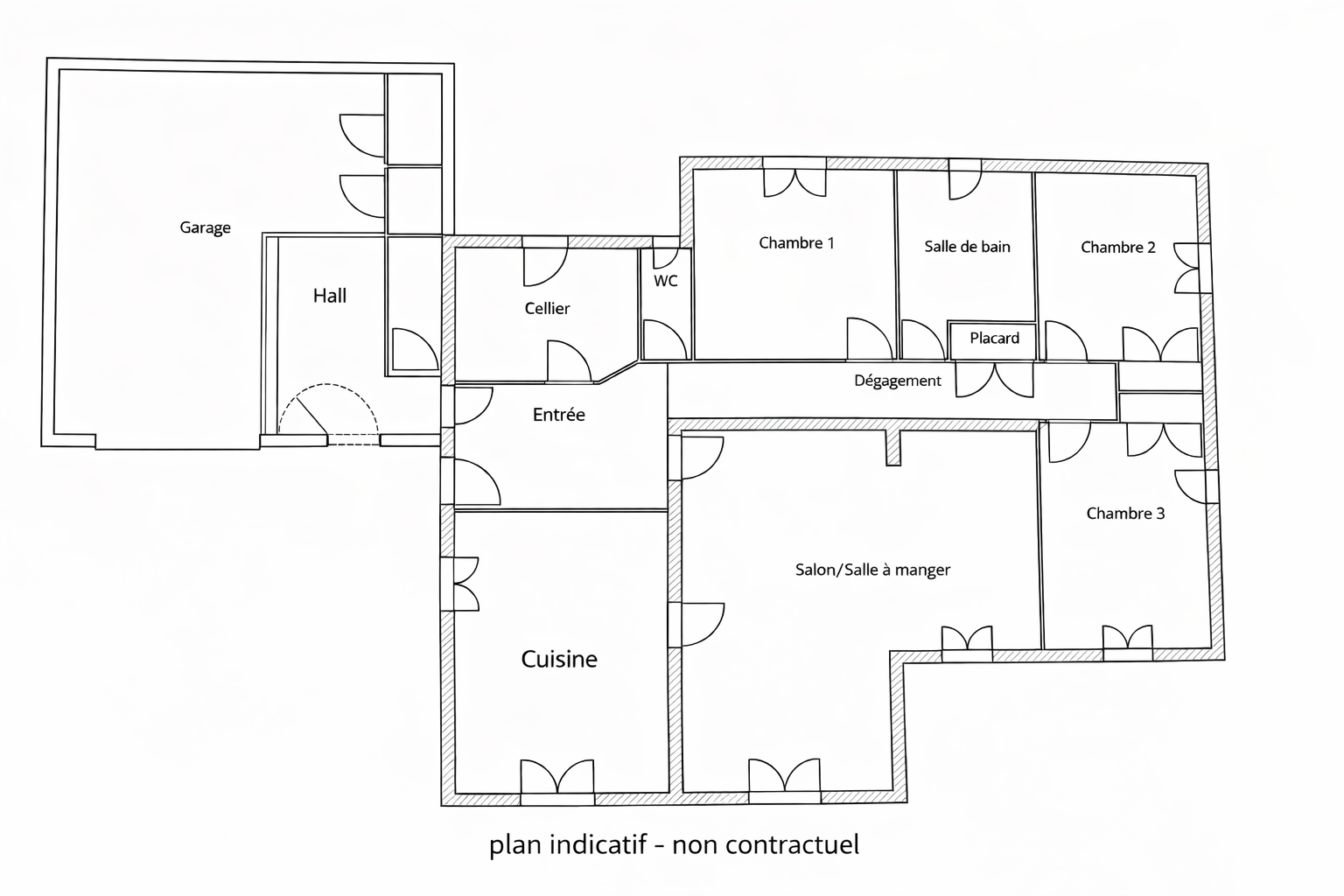
- Maison de plain-pied d'env. 140 m² (3 chambres), confortable et facile à vivre
- Volumes agréables et bien organisés, offrant une circulation fluide
- Cuisine indépendante donnant sur terrasse couverte
- Grand garage, répondant aux besoins de stationnement et de stockage + cave
- Jardin arboré et clôturé
- Environnement calme et résidentiel à 1,5 km des commerces de village (St Pierre de Vassols... un peu plus loin : Crillon Le Brave, Bédoin)
Un espace complémentaire appréciable
La maison dispose également d’un volume sous les toits, env. 40 m² avec une hauteur supérieure à 1,80 m (surface supérieure au plancher), qui constitue un atout supplémentaire (stockage, espace annexe…).
Une situation locative solide
Le bien est actuellement loué dans le cadre d’un bail professionnel, avec des locataires en place depuis de nombreuses années offrant stabilité locative et visibilité à moyen terme, le bail courant jusqu’en août 2027.
Un bien adapté à plusieurs projets
- Investisseur
- Acquéreur souhaitant anticiper un projet futur (résidence principale ou secondaire) tout en percevant, dans l'immdédiat, des loyers
- Profil patrimonial sensible au plain-pied, aux volumes et à la pérennité locative (forte demande)
Cette maison représente une belle opportunité : quartier très agréable dans un village apprécié pour sa qualité de vie et dans lequel il y a très peu de ventes. Performances énergétiques intéressantes (DPE C, GES C).
VISITES : un premier échange par téléphone est souhaitable afin de vous apporter toutes informations utiles et répondre à vos questions.
Annonce proposée par un agent commercial
