Les infos Essentielles
Beau T2 Neuf tout juste livré (le 29 janvier) dans un co pro à taille humaine de moins de 36 lots, co pro qui est équipée de panneaux solaires. Cet appartement dispose de plusieurs atouts.
1er atout : Il est NEUF sous garanties : Décennale, Biennale et GPA (garantie de parfait achèvement). Il est équipé de panneaux solaires individuel égaleme,nt en sus des panneaux solaires de la résidence.
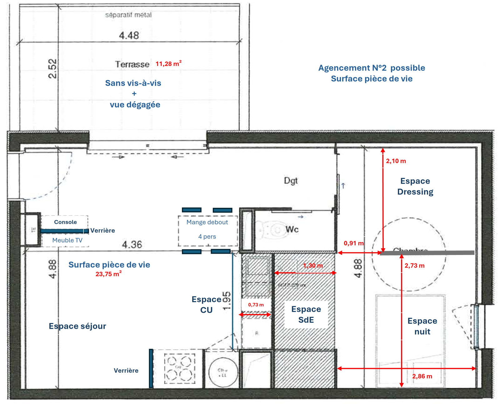
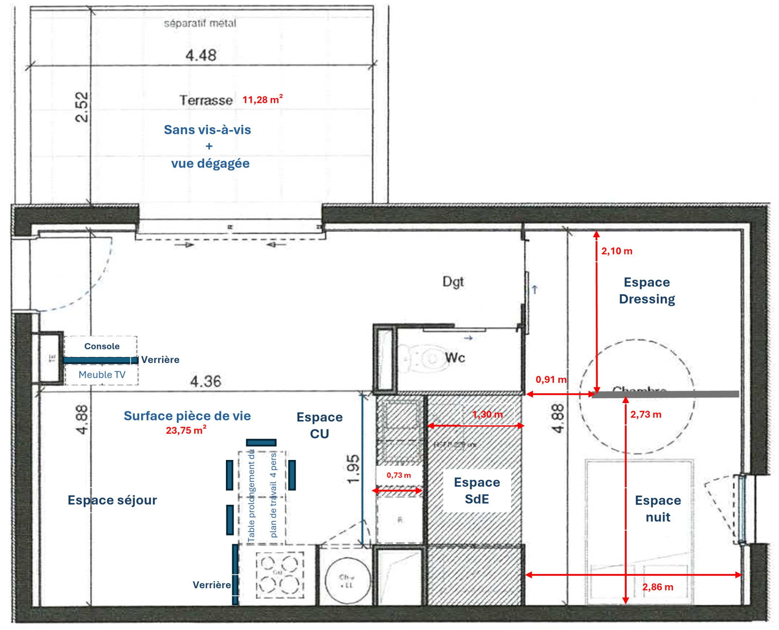
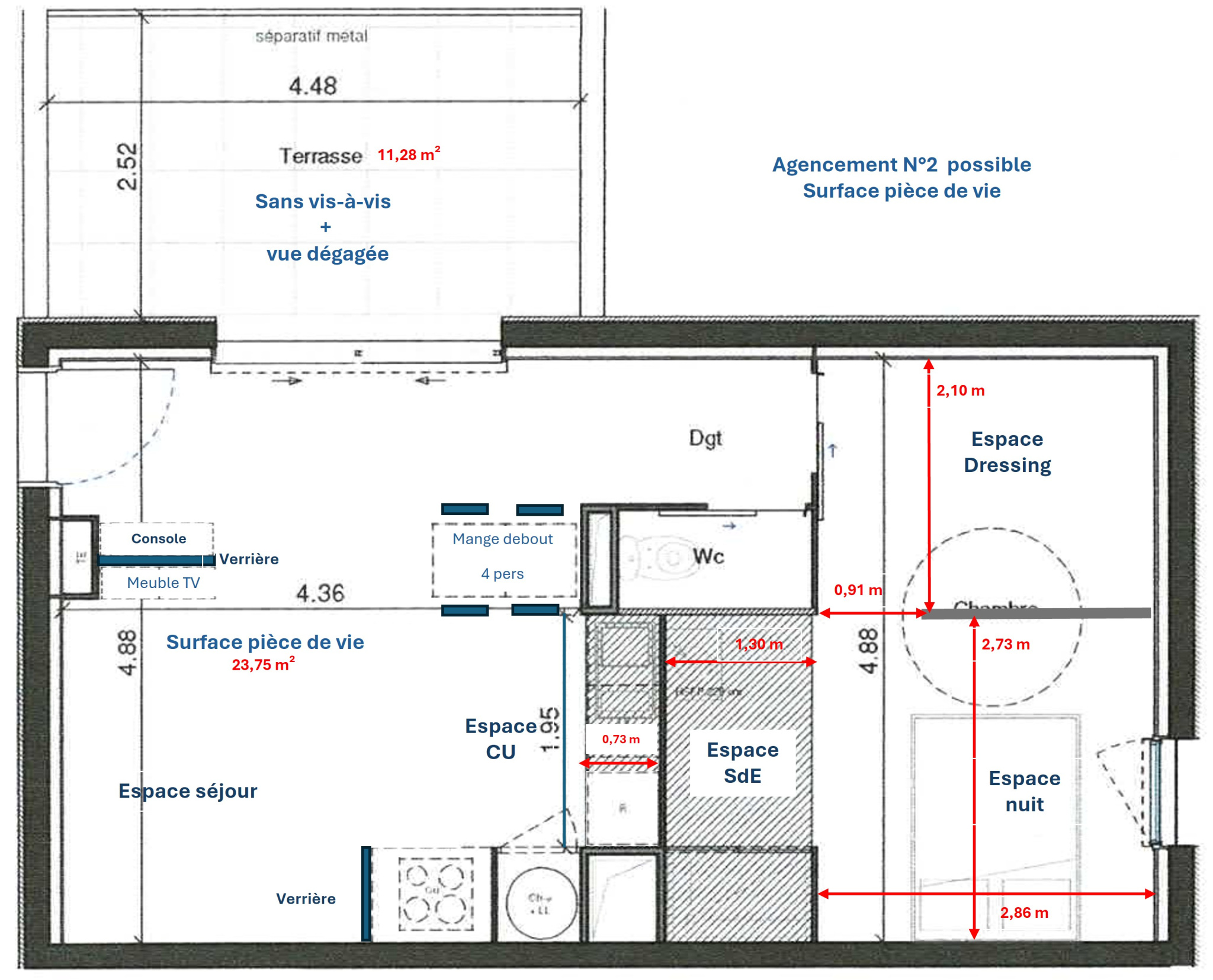
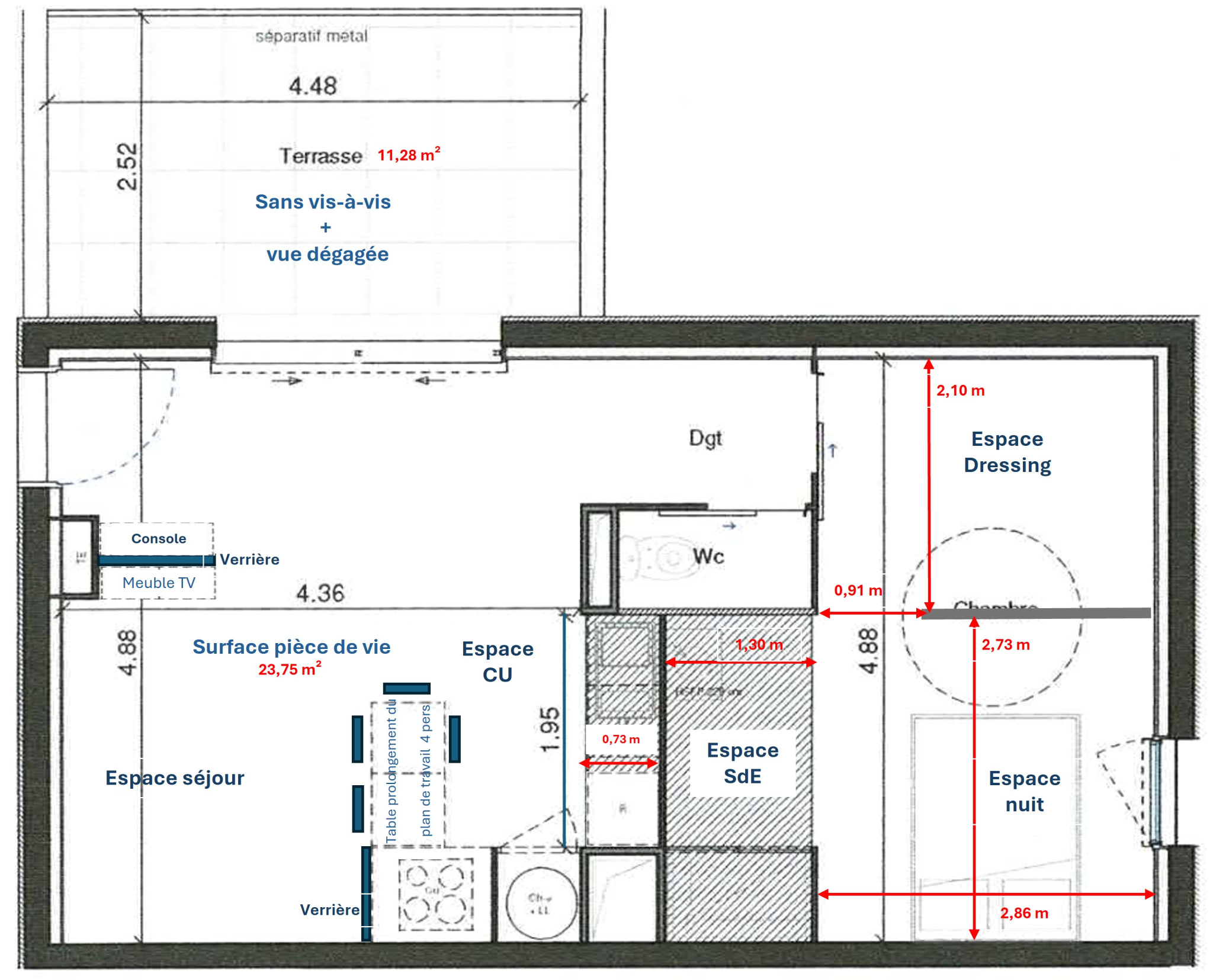
2nd atout : Sa pièce de vie est agencée comme un appartement à vivre en tant qu’habitation principale.
3ème atout : Il est agencé avec une suite parentale de prés de 17m² avec sa salle d’eau privative et un espace dressing possible.
4ème atout : Au seciond et étage avec ascenseur avec 1 seul voisin sur cet ilôt. et sa place de stationnement privative (Grande place PMR)
L’agencement de sa pièce de vie permet un espace cuisine ouvert et un espace séjour distinct, ce qui lui confère un agencement d’appartement à vivre. (Voir les 2 dernières photos). La pièce de vie représente 54% de la surface totale du logement.
Enfin la pièce de vie s’ouvre avec ses baies vitrées coulissantes sur une terrasse à ciel ouvert offrant une profondeur de plus de 2,20 mètres pour une longueur de près de 4,50 mètres. Ce qui permet un réel espace extérieur à vivre.
La terrasse offre une vue dégagée, un robinet de puisage, une prise Elec IP64 et un éclairage. SANS VIS A VIS.
La suite parentale de près de 17m² offre une salle d’eau avec douche italienne, un espace nuit et en sus la possibilité d’y créer un espace dressing sans renier sur les flux de circulation de l’espace nuit. Ici encore un agencemenbt pour un logement à vivre.
La 1ère réunion de co pro à lieu le 10 février prochain et donnera lieu à la réponse d’autorisation de fermeture en garage des places de stationnement. Pour la prochaine AG extraordinaire (Prévu pour le mois de Mai 2026, les propriétaires ont fait les demandes suivantes : Installation de la climatisation, installation d'une pergola et la fermeture de leur place spécifique avec lumiére et prise ELEC pour voiture electrique et ou hybride.
L’inter-agence est acceptée à compter du 9 mars 2026 en accord avec les vendeurs, spécificité inscrite dans le mandat de vente.
Découvrez cette belle opportunité en prenant contact avec notre agence (Tous les documents disponibles) Real Estate Hérault au O7 49 79 39 17.
Pour une meilleure réactivité n'hésitez pas à nous envoyer un texto. Nous vous rappelons dans l'heure.
Prix de vente Honoraires d’agence incluses charge vendeur : 199 000€
Co pro : Pas de procédure en cours. Charge de co pro estimative Trimestrielle 150€ soit 600€ par an.
Les informations sur les risques auxquels ce bien est exposé sont disponibles sur le site Géorisques : georisques.gouv.fr.
Localisation Du bien
-
Commerces et santé
-
Loisirs
-
Ecoles
-
Transports
-
Pratique
Les infos Energetiques
Pièce de vie comprenant séjour cuisine entrée carrelage au sol Baie vitré coulissante chauffage électrique programmable
Carrelage au sol
Carrelage au sol porte coulissante avec fermeture
Surface totale +/- 17 m² comprenant Coin nuit, salle d'eau et espace dressing Carrelage au sol et chauffage électrique programmable
Ce site est protégé par reCAPTCHA, les Politiques de Confidentialité et les Conditions d'Utilisation de Google s'appliquent.
Détails des diagnostics énergétiques
Montant estimé des dépenses annuelles d'énergie pour un usage standard est compris entre 333 € et 451 € . Prix moyens des énergies indexés sur les années 2021, 2022 et 2023 (abonnements compris).
