Les infos Essentielles
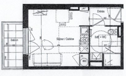
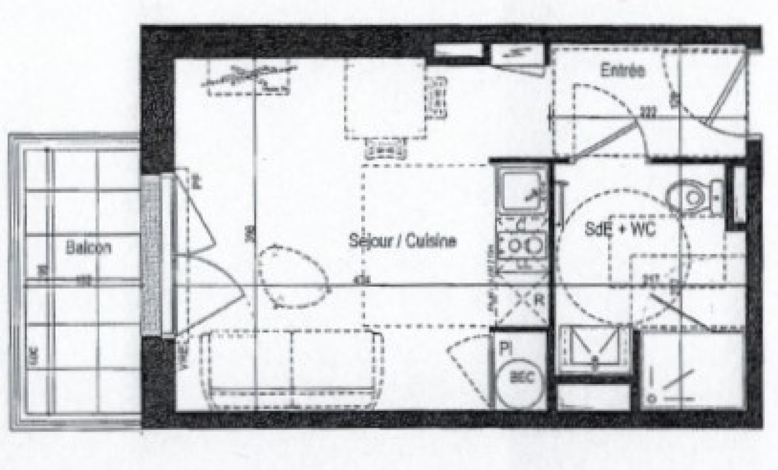
Situé dans le quartier Tasdon, à proximité des facultés et de la Gare de La Rochelle, ce studio de 25 m² se trouve au sein d’un immeuble récent de 2018 avec ascenseur.
L’appartement est lumineux, bénéficiant d’une exposition ouest, et dispose d’un grand balcon, idéal pour profiter des fins de journée au calme.
Quelques travaux de rafraîchissement sont à prévoir, offrant l’opportunité de personnaliser le bien à votre goût.
Idéal pour un premier achat, un pied-à -terre ou un investissement locatif.
À visiter sans tarder !
Consommation : entre 249 € et 405 € par/an Prix moyens des énergies indexés sur les années 2021-2022-2023 (abonnements compris)
Consommation primaire 91kWEP/m²/an (CLASSEMENT "B")
Émission de GES : 16 kg de CO2/m²/an (CLASSEMENT "C")
Les informations sur les risques auxquels ce bien est exposé sont disponibles sur le site Géorisques : www.georisques.gouv.fr
Information sur la copropriété (Pa s de procédure en cours) : Nombre total de lots : 77 lots
Nombre total de lots à usage d’habitation, de bureaux ou de commerces : 42 lots
Nombre de lots de stationnement : 35 lots
Localisation Du bien
-
Commerces et santé
-
Loisirs
-
Ecoles
-
Transports
-
Pratique
Les infos Energetiques
Ce site est protégé par reCAPTCHA, les Politiques de Confidentialité et les Conditions d'Utilisation de Google s'appliquent.
