Les infos Essentielles
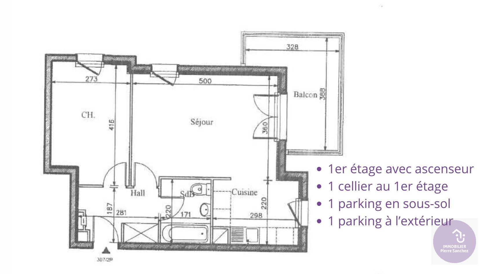
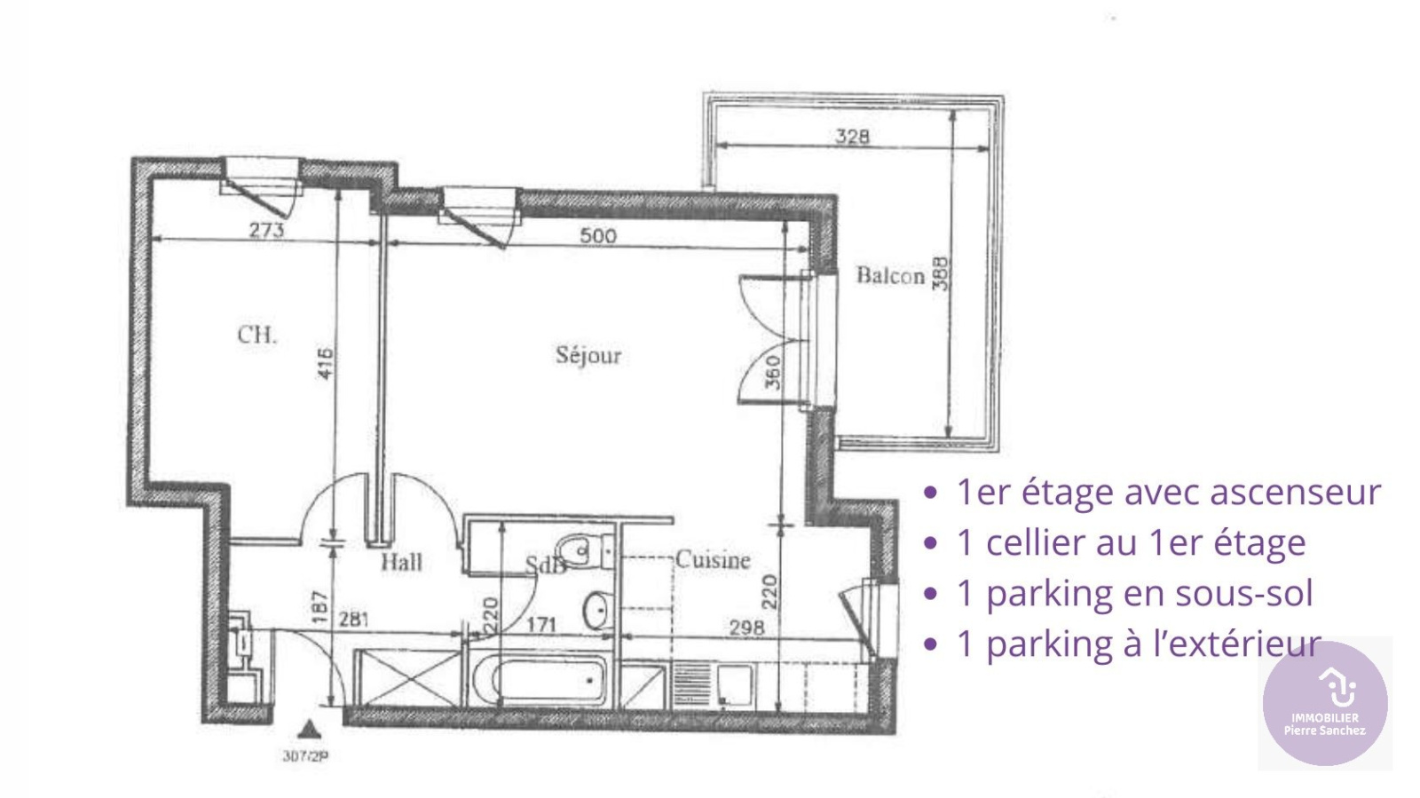
Au cœur de Souffelweyersheim, dans un immeuble achevé en 2008, bien entretenu et équipé d’un ascenseur, découvrez cet appartement 2 pièces de 43,60 m² habitables situé au 1er étage d’un bâtiment de 18 logements.
L’appartement comprend une entrée avec placard, une chambre de 10,71 m², une salle de bains avec toilettes ainsi qu’un séjour avec espace cuisine de 24,28 m². Un balcon couvert de 8,64 m², accessible depuis le séjour, permet de profiter d’un extérieur confortable.
En annexes, vous disposez :- d’un cellier privatif sur le même étage avec prise électrique et éclairage,- d’une place de parking couverte en sous-sol accessible par l’ascenseur,- d’une place de parking extérieure dans la cour.
Le bâtiment dispose d’un sas d’entrée et d’espaces vélos collectifs au sous-sol. Le ravalement de façade a été réalisé en 2025.
L’appartement nécessite une modernisation intérieure, notamment l’aménagement de la cuisine, la remise au goût du jour de la salle de bains et des sols. Il offre ainsi un réel potentiel de personnalisation.
Chauffage collectif au gaz avec chaudière à condensation et production d’eau chaude. Ventilation mécanique contrôlée. Volets roulants manuels.
Informations sur la copropriété :Copropriété composée de 3 bâtiments représentant 53 logements au total, soit 135 lots en incluant les parkings et celliers. Le bâtiment concerné comprend 18 logements.
Montant des charges pour la période du 01/07/2024 au 30/06/2025 : 3 373,04 euros, incluant notamment le chauffage, l’eau chaude et l’eau froide, l’entretien des parties communes et des extérieurs, l’ascenseur et les charges générales de copropriété.
Performance énergétique :DPE C 107 kWh/m²/anGES C 20 kg CO2/m²/an
Montant estimé des dépenses annuelles d’énergie pour un usage standard entre 410 euros et 600 euros par an. Prix moyens des énergies indexés sur les années 2021, 2022 et 2023, abonnements compris.
Taxe foncière 2025 : 641 euros, ordures ménagères incluses.
Un bien idéal pour un primo accédant souhaitant réaliser son premier achat ou pour un investisseur recherchant un appartement fonctionnel avec stationnements, dans une commune dynamique aux portes de Strasbourg.
Les informations sur les risques auxquels ce bien est exposé sont disponibles sur le site www.georisques.gouv.fr
Pour plus d’informations ou organiser une visite, contactez-moi.Annonce proposée par un agent commercial
Les informations sur les risques auxquels ce bien est exposé sont disponibles sur le site Géorisques
Localisation Du bien
-
Commerces et santé
-
Loisirs
-
Ecoles
-
Transports
-
Pratique
Les infos Energetiques
Ce site est protégé par reCAPTCHA, les Politiques de Confidentialité et les Conditions d'Utilisation de Google s'appliquent.
Détails des diagnostics énergétiques
Montant estimé des dépenses annuelles d'énergie pour un usage standard est compris entre 410 € et 600 € . Prix moyens des énergies indexés sur les années 2021, 2022 et 2023 (abonnements compris).
