Les infos Essentielles
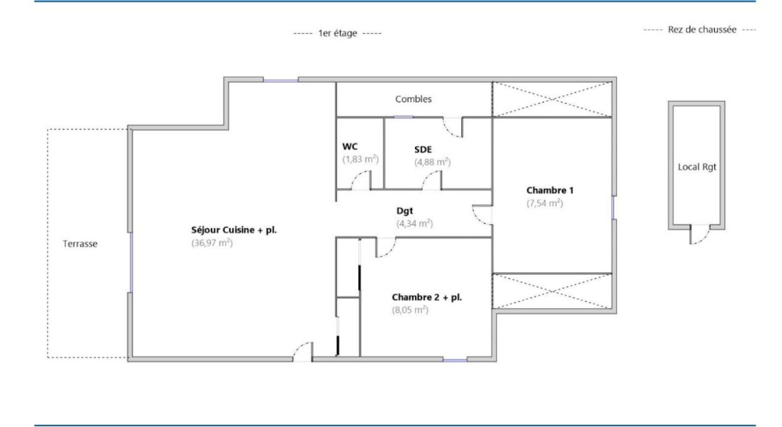
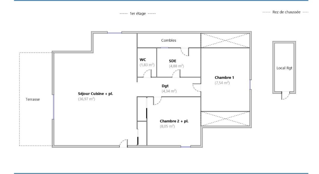
Guérande (La Madeleine bourg), commerces et commodités à pied pour cet appartement coup de coeur (64m² habitables et 93m² au sol) situé au premier étage d'une petite copropriété.
Vous profiterez d'une belle pièce de vie lumineuse avec sa cuisine ouverte, une terrasse de 16m², un dégagement desservant une salle d'eau, deux chambres et un wc indépendant. Nombreux placards et rangements.
Cet appartement fonctionnel dispose d'une cave (eau et électricité) et deux places de stationnements privatives. Il vous offrira un confort complet pour le quotidien, et le charme unique avec ses poutres apparentes.
Une belle opportunité pour y résider ou réaliser un investissement locatif. Faibles charges. A voir rapidement !
Plus d'informations : www.droulonimmobilier.com
Les informations sur les risques auxquels ce bien est exposé sont disponibles sur le site Géorisques
Localisation Du bien
-
Commerces et santé
-
Loisirs
-
Ecoles
-
Transports
-
Pratique
Les infos Energetiques
Ce site est protégé par reCAPTCHA, les Politiques de Confidentialité et les Conditions d'Utilisation de Google s'appliquent.
Détails des diagnostics énergétiques
Montant estimé des dépenses annuelles d'énergie pour un usage standard est compris entre 1 490 € et 2 060 € . Prix moyens des énergies indexés sur les années 2021, 2022 et 2023 (abonnements compris).
