Les infos Essentielles
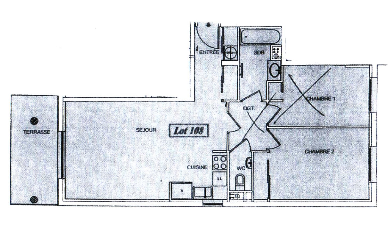
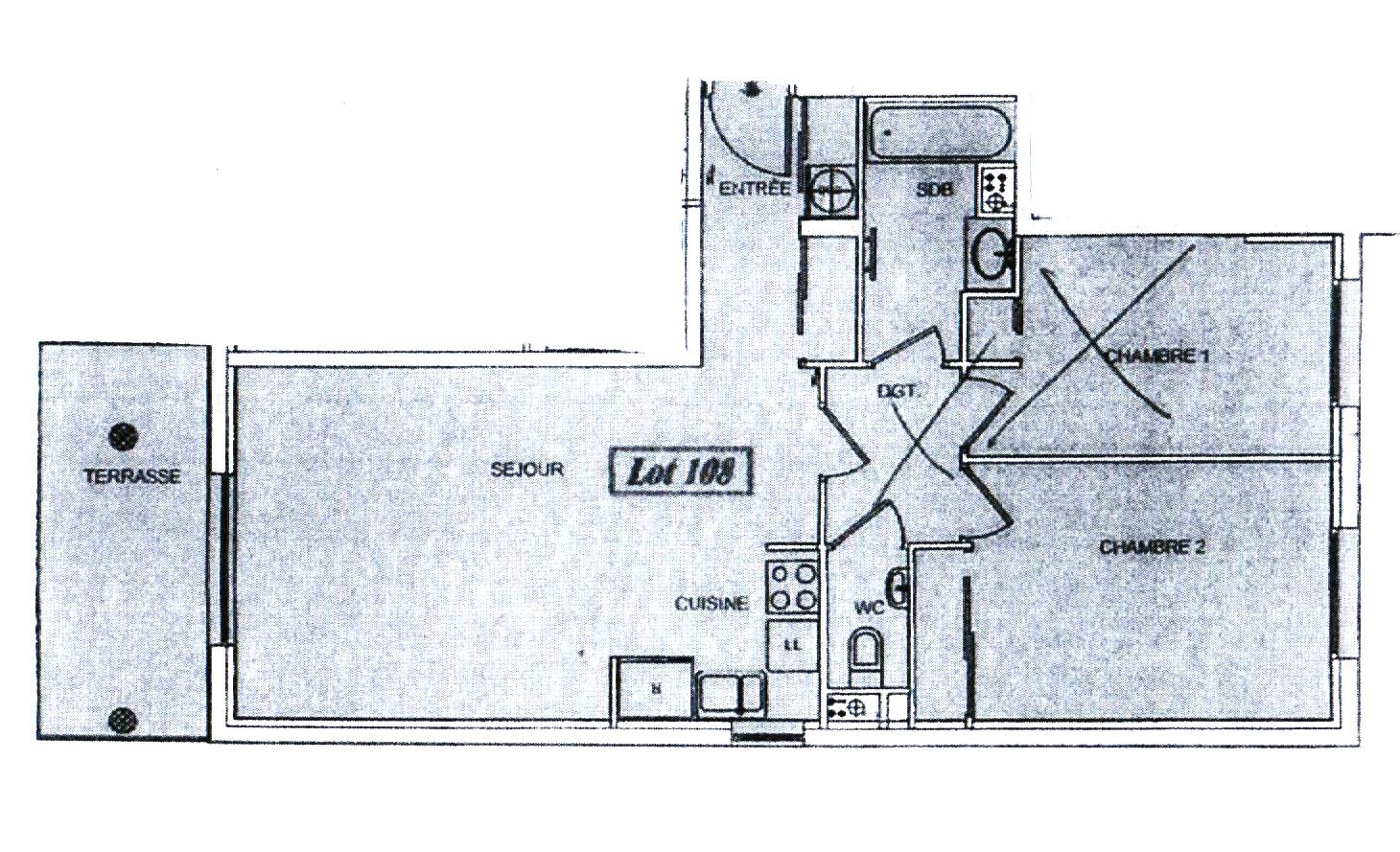
C'est un appartement de 3 pièces (2 chambres ) dans une résidence de 2011. L'appartement est traversant avec une vue sur l'Océan et sur la Marina de Deauville , terrasse et emplacement de parking .vous pouvez contacter Michel Sidlovski du Réseau Expertimo RC Paris 305653479 tél : 06 0757 1146
Annonce proposée par un agent commercial
Localisation Du bien
-
Commerces et santé
-
Loisirs
-
Ecoles
-
Transports
-
Pratique
Les infos Energetiques
Ce site est protégé par reCAPTCHA, les Politiques de Confidentialité et les Conditions d'Utilisation de Google s'appliquent.
