Les infos Essentielles
EXCLUSIVITE !
Idéal investisseur : à 2 minutes du FUTUROSCOPE, des accès routiers (RN10 et autoroute), gare TGV, proximité des commodités, je vous propose deux maisons indépendantes.
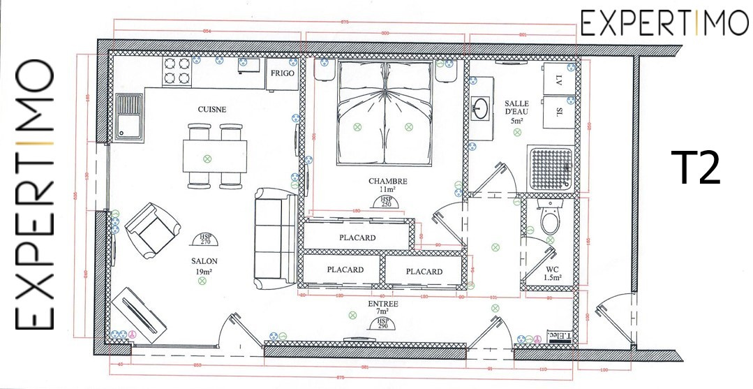
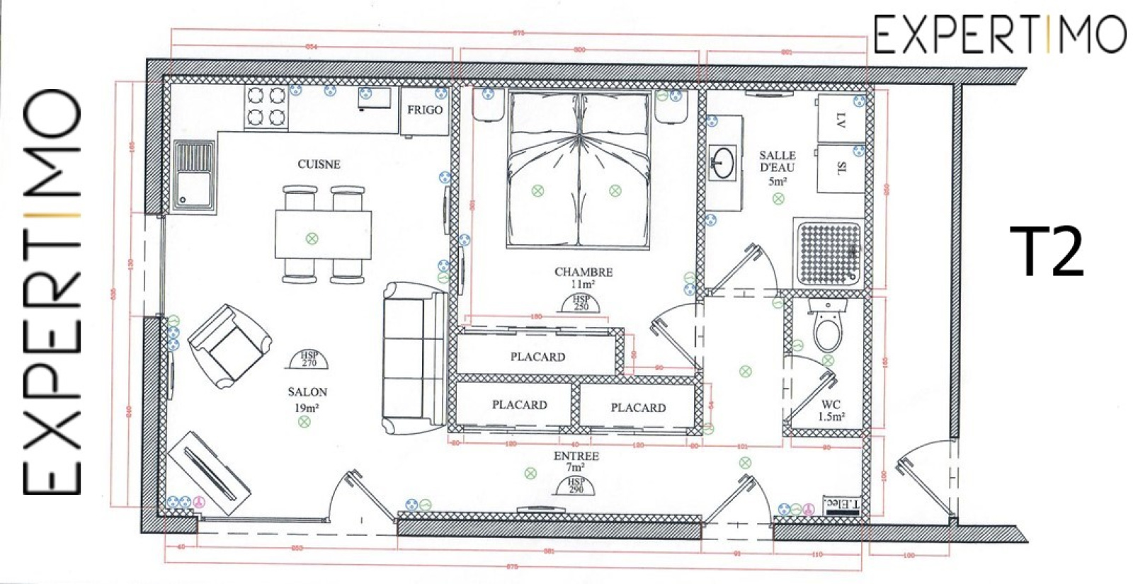
- Une maison de plain-pied de type T2 de 44,60 m² habitables, aménagée récemment en 2022 et actuellement louée : composée d'une entrée avec placards / dressing, un séjour lumineux avec cuisine ouverte aménagée et équipée, une chambre, wc séparés, une salle d'eau avec douche - meuble vasque - sèche serviettes. La maison bénéficie d'une terrasse et d'une climatisation réversible (chaud / froid).
- Une maison de type T3 de 90,45 m² habitables avec au rez de chaussée un séjour lumineux de plus de 26 m² avec cuisine ouverte aménagée et équipée, deux chambres à l'étage (15,50 m² et 22,20 m²), wc à chaque étage, une salle d'eau également. Un petit jardin sur le côté de la maison. Louée actuellement.
- Un garage de 30m² attenant au T2, équipé d'une arrivée et d'une évacuation d'eau, d'un wc. Possibilité d'aménager un troisième logement.
L'ensemble immobilier bénéficie d'un parking goudronné.
Je suis à votre écoute pour échanger et organiser une visite. A bientôt !
Annonce proposée par un agent commercial
Les informations sur les risques auxquels ce bien est exposé sont disponibles sur le site Géorisques
Localisation Du bien
-
Commerces et santé
-
Loisirs
-
Ecoles
-
Transports
-
Pratique
Les infos Energetiques
Ce site est protégé par reCAPTCHA, les Politiques de Confidentialité et les Conditions d'Utilisation de Google s'appliquent.
Détails des diagnostics énergétiques
Montant estimé des dépenses annuelles d'énergie de ce logement pour un usage standard est compris entre 520 € et 750 € . 2021 étant l'année de référence des prix de l'énergie utilisés pour établir cette estimation.
