Les infos Essentielles
NOUVEAUTE de l'agence! Nadiya PETRYCHUK (EI) vous propose dans le charmant village de ST Augustin (77515) cette jolie Maison de 115 m² environ, indépendante et entièrement refaite en 2026 sur un terrain de 520 m² .
Cette maison se compose au
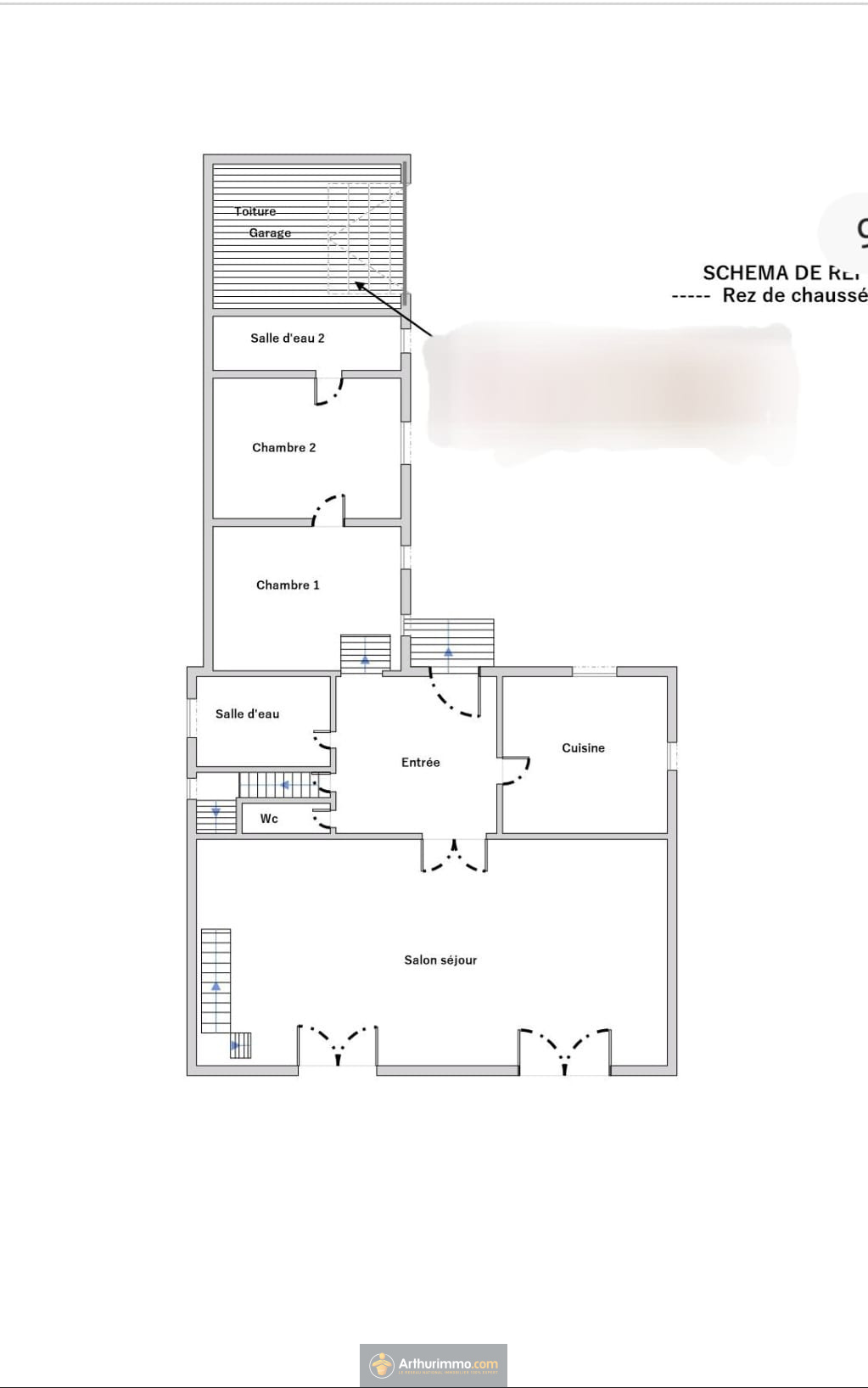
rdc: Entrée, Une spacieuse pièce de vie de 30 m² baignée de lumière, Cuisine séparée de 10 m², SDE moderne 6 m², Deux Chambres en enfilade de 11m² et 14 m² , SDE avec WC, WC indépendant.
A l'étage: Palier, belle Chambre, Buro, SDE avec WC.
Un sous sol de 31 m² (non accessible aux véhicules).
Extérieur, un garage, belle terrasse arrière de 42 m² environ vous fera profiter du calme et de l'exposition plein sud.
Pompe à chaleur neuve!
A visiter sans tarder !
(Nombreuses photos complémentaires disponibles directement sur le site de l'agence)
Les informations sur les risques auxquels ce bien est exposé sont disponibles sur le site Géorisques
Localisation Du bien
-
Commerces et santé
-
Loisirs
-
Ecoles
-
Transports
-
Pratique
Les infos Energetiques
Ce site est protégé par reCAPTCHA, les Politiques de Confidentialité et les Conditions d'Utilisation de Google s'appliquent.
Détails des diagnostics énergétiques
Montant estimé des dépenses annuelles d'énergie pour un usage standard est compris entre 1 560 € et 2 180 € . Prix moyens des énergies indexés sur les années 2021, 2022 et 2023 (abonnements compris).
PAVILLON T5 sous-sol total, jardin 611 m²
