Les infos Essentielles
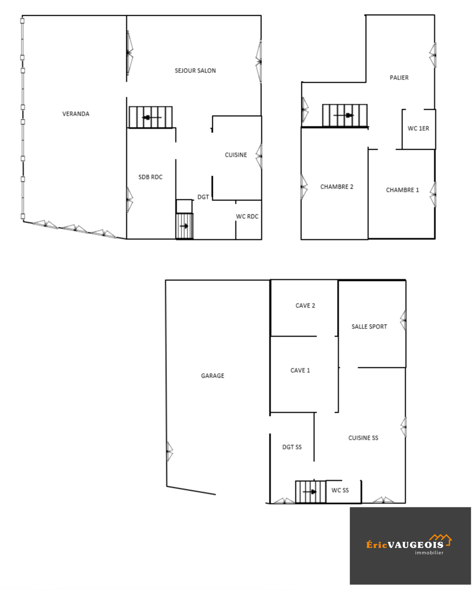
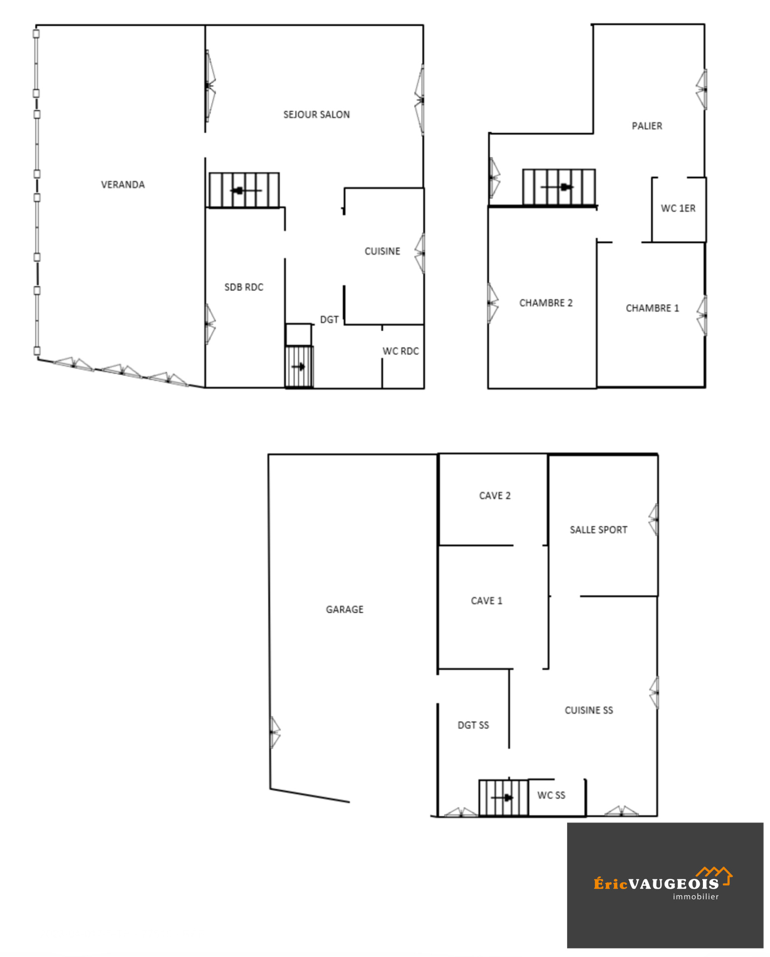
L'agence Eric VAUGEOIS immobilier à Coulommiers au milieu de la rue piétonne. Eric VAUGEOIS vous propose dans la ville de Rebais même cette grande maison de 185 m² environ en DPE : D comprenant : Entrée sur Grand Séjour lumineux - Énorme véranda - Cuisine aménagée et équipée - WC suspendu séparé avec lave-mains - Salle de bains avec douche et baignoire d'angle. Étage : Dégagement - Mezzanine - WC séparé avec lave-mains - 3 Chambres. En sous-sol : Grand garage avec porte motorisée pouvant acceuillir de nombreuses voitures et/ou idéal pour atelier d'artisan - Dégagement avec placards - Cuisine d'été aménagée - WC séparé - Pièce avec douche - Cellier - Cave. Équipements : Fenêtres PVC double vitrage. Chauffage central par chaudière gaz de ville avec production d'eau chaude. Raccordé au tout-à -l'égout conforme. Internet très haut débit par FIBRE (raccordable). Extérieur : Terrasse. Jardin. Terrain de 332 m² environ, clos, plat, au calme et sans vis-à -vis. Taxe foncière de 1155 E/an. A visiter sans tarder ! (Nombreuses autres photos complémentaires directement sur le site de l'agence Eric VAUGEOIS immobilier)
------------------------------ Envie de changer de vie professionelle, nous recrutons des agents débutants ou confirmés sur tout le secteur. Contactez nous directement pour saisir cette belle opportunité !
Les informations sur les risques auxquels ce bien est exposé sont disponibles sur le site Géorisques
Localisation Du bien
-
Commerces et santé
-
Loisirs
-
Ecoles
-
Transports
-
Pratique
Les infos Energetiques
Ce site est protégé par reCAPTCHA, les Politiques de Confidentialité et les Conditions d'Utilisation de Google s'appliquent.
Détails des diagnostics énergétiques
Montant estimé des dépenses annuelles d'énergie de ce logement pour un usage standard est compris entre 2 170 € et 2 990 € . 2021 étant l'année de référence des prix de l'énergie utilisés pour établir cette estimation.
Appart F4 - 103 m² en RDC. Jardin. Garage à Coulommiers
