Les infos Essentielles
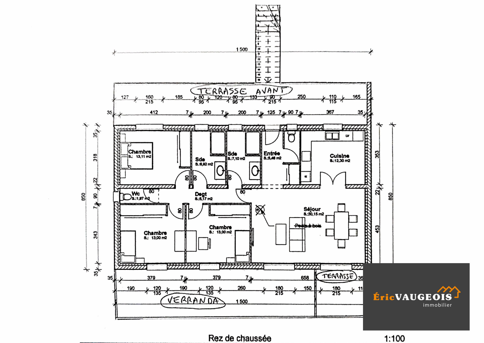
VENDUE par l'agence ! Éric VAUGEOIS vous propose sur le secteur de Rebais 77510 cette magnifique maison individuelle de plain-pied édiffiée en 2019 sur sous-sol total. Elle se compose : Entrée avec placard - Grand séjour lumineux - Grande Véranda - Cuisine ouverte aménagée et équipée - Dégagement - Salle d'eau avec meuble vasque - Salle de bain avec meuble vasque - 2 x WC séparé - 3 Belles Chambres. Sous-sol-total de plus de 100m². Équipements : Fenêtres et porte d'entré PVC double vitrage. Chauffage par convecteurs électriques éco. Ballon d'eau chaude électrique. Assainissement individuel conforme. Internet trés haut débit par FIBRE. Extérieur : Térrain plus de 1000 m² clos plat au calme et sans vis-à -vis avec 2 terrasses avant et arrière. BONUS : Seconde Maison comprenant : Cuisine aménagée et équipée - Suite parentale avec sa salle d'eau et WC. Fenêtres PVC double vitrage. Ballon d'eau chaude électrique. Convecteurs électriques éco. Taxe foncière de 1642 E/an. A visiter sans tarder !
Les informations sur les risques auxquels ce bien est exposé sont disponibles sur le site Géorisques
Localisation Du bien
-
Commerces et santé
-
Loisirs
-
Ecoles
-
Transports
-
Pratique
Les infos Energetiques
Détails des diagnostics énergétiques
Montant estimé des dépenses annuelles d'énergie pour un usage standard est compris entre 1 410 € et 1 970 € . Prix moyens des énergies indexés sur les années 2021, 2022 et 2023 (abonnements compris).
