Les infos Essentielles
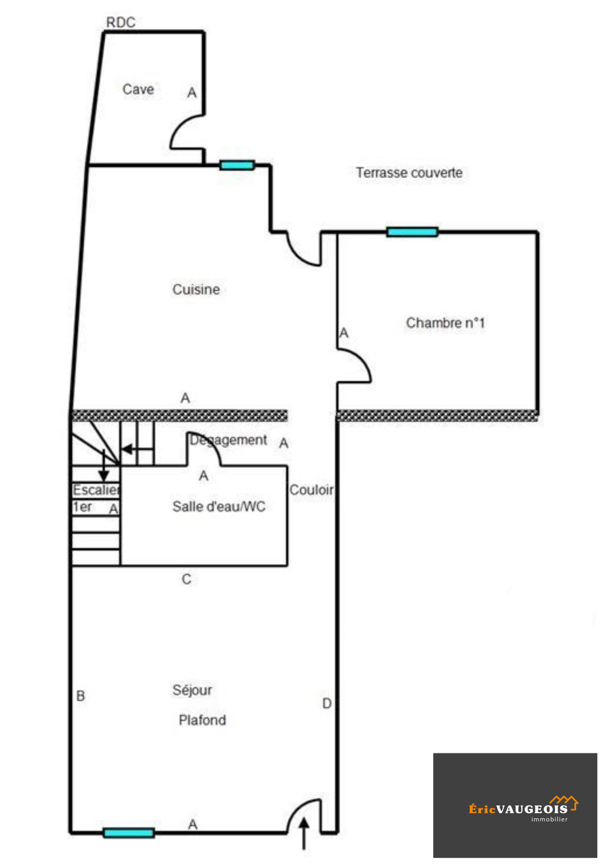
EXCLUSIVITÉ de l'agence Eric VAUGEOIS immobilier à Coulommiers au milieu de la rue piétonne. Denis DA SILVA (EI) vous propose dans un charmant village juste à coté de la Ferté-Gaucher (77320) cette maison de 52 m² environ dans un environnement calme à 5 minutes de la Ferté-Gaucher. Elle se compose au rez-de-chaussée : Entrée sur séjour - Cuisine - Salle d'eau avec WC - Bureau. Etage : Palier - 2 Chambres. Equipements : Ballon d'eau chaude électrique. DPE vierge car pas de point de chauffage dans la maison. Extérieur : Terrasse. Terrain de plus de 200 m² clos, au calme avec garage. Taxe foncière 150 E/an. Rafraîchissement total à prévoir. A visiter sans tarder ! (Nombreuses autres photos complémentaires disponible directement sur le site de l'agence Eric VAUGEOIS immobilier) -------------------------------------------------------------- Envie de changer de vie professionnelle, nous recrutons des agents débutants ou confirmés sur tout le secteur. Contactez-nous directement pour saisir cette belle opportunité !
Localisation Du bien
-
Commerces et santé
-
Loisirs
-
Ecoles
-
Transports
-
Pratique
