Les infos Essentielles
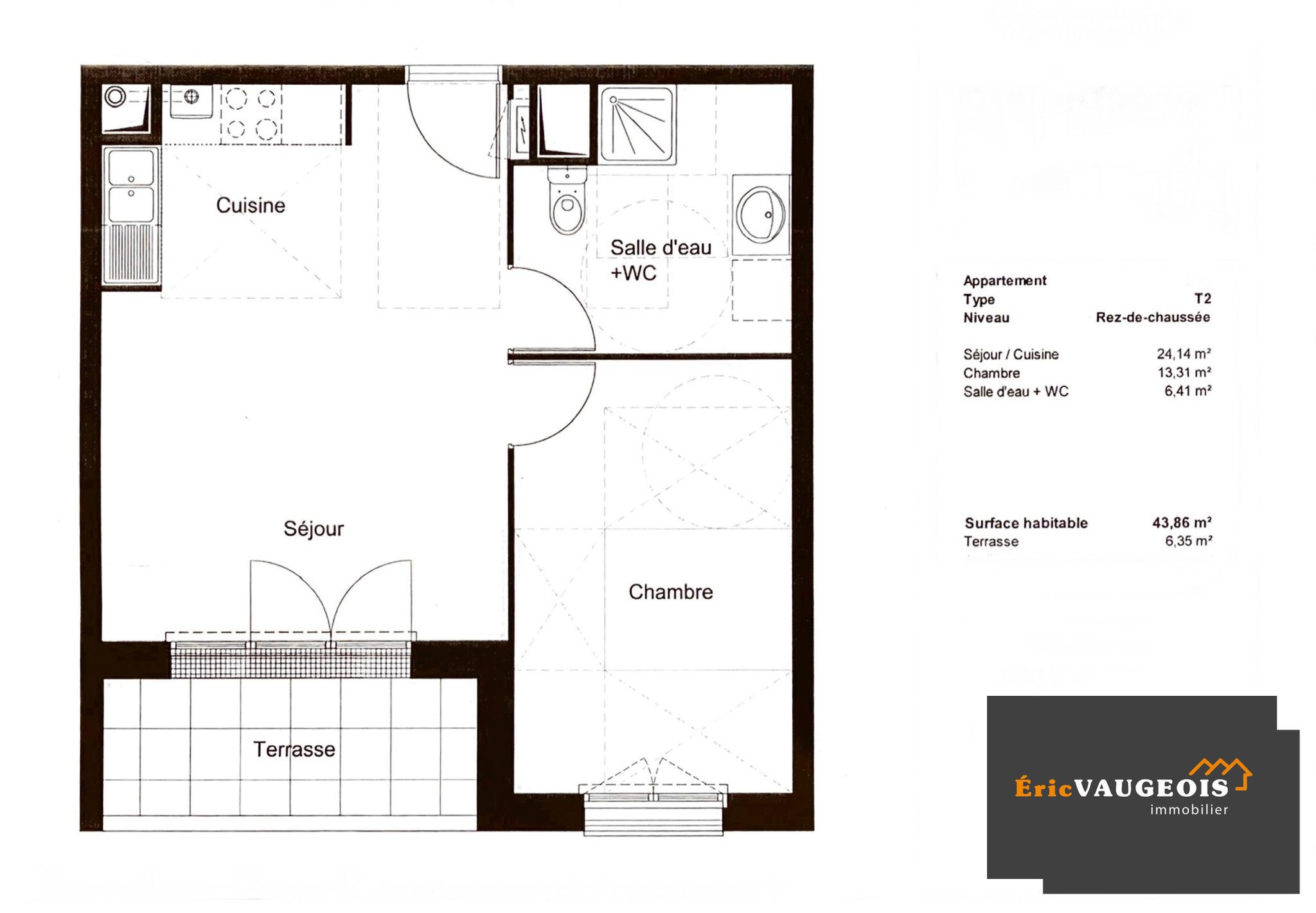
L'agence Eric VAUGEOIS immobilier à Coulommiers, au milieu de la rue piétonne. Eric VAUGEOIS vous propose à Coulommiers même tout proche de la gare ce très bel appartement lumineux de type F2 de 42 m² en RDC dans une résidence fermée de standing toute récente de 2020. Il comprend : Entrée sur grand Séjour lumineux donnant accès sur une terrasse de 6 m² - Belle Cuisine ouverte aménagée et toute équipée - Grande Salle d'eau avec meuble vasque et WC avec coin buanderie - Chambre spacieuse. 2 places de parking privé et sécurisé. Local à vélos. Fenêtres PVC double-vitrage. Chauffage et production d'eau par chaudière gaz de ville. Taxe foncière exonérée les deux premières années. Charges de co-pro de 180E/trimestre avec provision d'eau. Raccordé au tout-à -l'égout conforme. Internet très haut débit par fibre. A visiter sans tarder !
Localisation Du bien
-
Commerces et santé
-
Loisirs
-
Ecoles
-
Transports
-
Pratique
Les infos Energetiques
Détails des diagnostics énergétiques
Montant estimé des dépenses annuelles d'énergie de ce logement pour un usage standard est compris entre 510 € et 780 € . 2021 étant l'année de référence des prix de l'énergie utilisés pour établir cette estimation.
