Les infos Essentielles
Situé boulevard Rabelais, dans un secteur recherché, cet appartement T4 de 71 m² bénéficie d’un emplacement à proximité du tramway, de la gare Saint-Roch et du centre-ville.
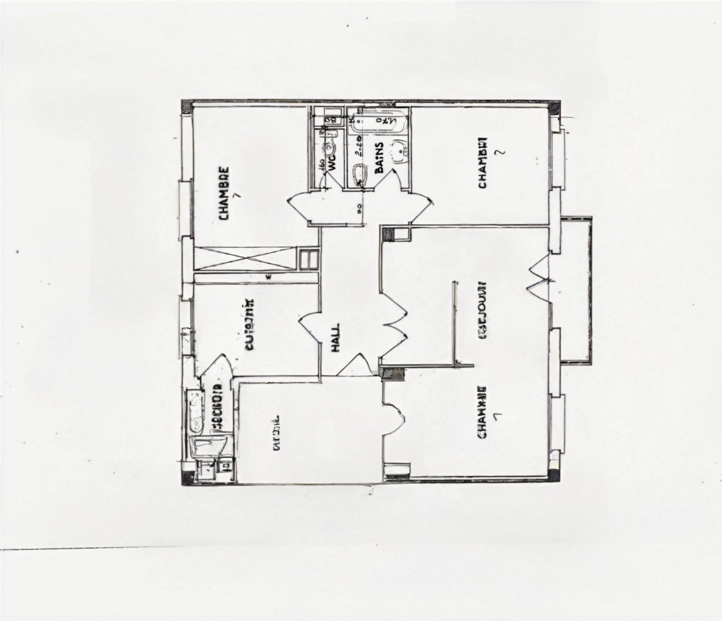
Il se trouve au 2ème étage d’une peliete copropriété de 4 lots à usages d’habitation, sans ascenseur. Traversant et doté d’une double exposition, il offre une bonne luminosité, avec une configuration séparant la cuisine d’un côté et le séjour de l’autre.
Le bien se compose d’un séjour, de trois chambres, d’une salle de bain, d’un WC indépendant, ainsi que d’un cellier de 6,81 m² accessible depuis le rez-de-chaussée pour les vélos par exemple ou du stokage.
Le chauffage et la production d’eau chaude sont assurés par une chaudière individuelle au gaz. L’appartement est équipé de double vitrage et de volets roulants électriques.
Ce bien peut convenir pour une résidence principale ou pour un investissement locatif, grâce à son emplacement et à ses volumes.
Certaines photos de cette annonce incluent des suggestions d'aménagement réalisées à l'aide de l'intelligence artificielle.
La taxe foncière est de 1450 euros environ par an. Charges de copropriété 1756 euros/ an environ.
Les informations sur les risques auxquels ce bien est exposé sont disponibles sur le site Géorisques : www.georisques.gouv.fr
Ce bien, est soumis au régime légal des copropriétés. Aucune procédure en cours menée sur le fondement des articles 29-1 A et 29-1 de la loi du 10 juillet 1965 et de l'article L.615-6 du CCH. 2 lots sont proposés dans une copropriété de 4 lots à usages d’habitation. Ce bien vous est présenté honoraires TTC inclus à la charge du vendeur. Barème consultable sur le site www.reseau-expertimo.fr Pascale Pelegri EI, agent commercial au numéro de RSAC n°432561793. Contact : 07 67 97 94 44.
Annonce proposée par un agent commercial
Localisation Du bien
-
Commerces et santé
-
Loisirs
-
Ecoles
-
Transports
-
Pratique
Les infos Energetiques
Ce site est protégé par reCAPTCHA, les Politiques de Confidentialité et les Conditions d'Utilisation de Google s'appliquent.
Détails des diagnostics énergétiques
Montant estimé des dépenses annuelles d'énergie de ce logement pour un usage standard est compris entre 730 € et 1 030 € . 2021 étant l'année de référence des prix de l'énergie utilisés pour établir cette estimation.
