Les infos Essentielles
Et si votre prochaine pièce de vie se trouvait… à ciel ouvert ?
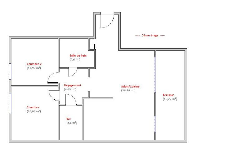
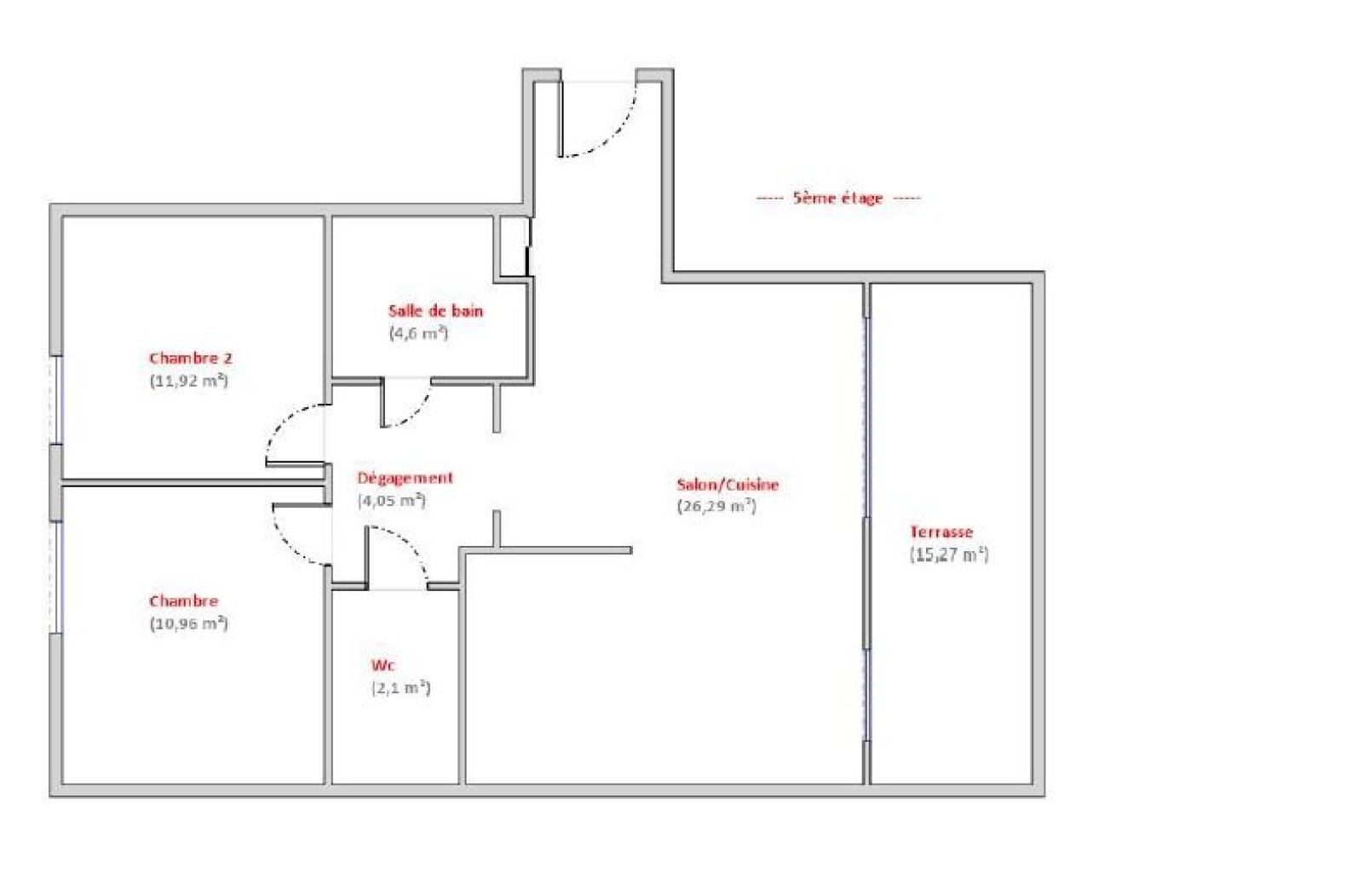
Situé à Montpellier, dans le secteur recherché Grand M / Ovalie à proximité immédiate de tous les commerces et commodités, cet appartement 3 pièces de 60 m² vous séduira par son emplacement pratique autant que par son atmosphère paisible.
Installé au dernier étage d’une résidence entièrement sécurisée, le logement bénéficie d’une très belle luminosité tout au long de la journée, renforcée par une vue dégagée et l’absence de voisin au-dessus.
Mais le véritable atout de ce bien reste incontestablement sa terrasse.
Avec ses 15 m², elle prolonge naturellement l’espace de vie et devient presque une pièce à part entière : petits-déjeuners au soleil, repas entre amis, coin lecture ou télétravail… Un espace extérieur rare, exploitable une grande partie de l’année et qui apporte ce supplément d’âme que recherchent les acquéreurs.
À l’intérieur, l’appartement offre une distribution confortable et fonctionnelle :
un séjour lumineux ouvert vers l’extérieur, une belle cuisine équipée, deux chambres agréables, le tout dans un environnement calme et résidentiel
Les informations sur les risques auxquels ce bien est exposé sont disponibles sur le site Géorisques
Localisation Du bien
-
Commerces et santé
-
Loisirs
-
Ecoles
-
Transports
-
Pratique
Les infos Energetiques
Ce site est protégé par reCAPTCHA, les Politiques de Confidentialité et les Conditions d'Utilisation de Google s'appliquent.
