Les infos Essentielles
Un bien rare qui ne se présente presque jamais
Certains appartements se visitent. D’autres se vivent.
Cet avant dernier étage, extrêmement rare sur le secteur, fait clairement partie de la seconde catégorie. Une opportunité unique pour celles et ceux qui recherchent un cadre de vie privilégié, lumineux et ouvert sur l’extérieur.
À seulement 800 mètres à pied du tramway ligne 3, rejoignez la gare Saint-Roch en 12 minutes, tout en profitant d’un environnement résidentiel recherché.
Situé au sein d’une résidence avec piscine, construite en 2001, parfaitement entretenue et très bien fréquentée, ce bien offre un équilibre idéal entre confort, calme et accessibilité.
Un appartement pensé pour la lumière, l’espace et la tranquillité
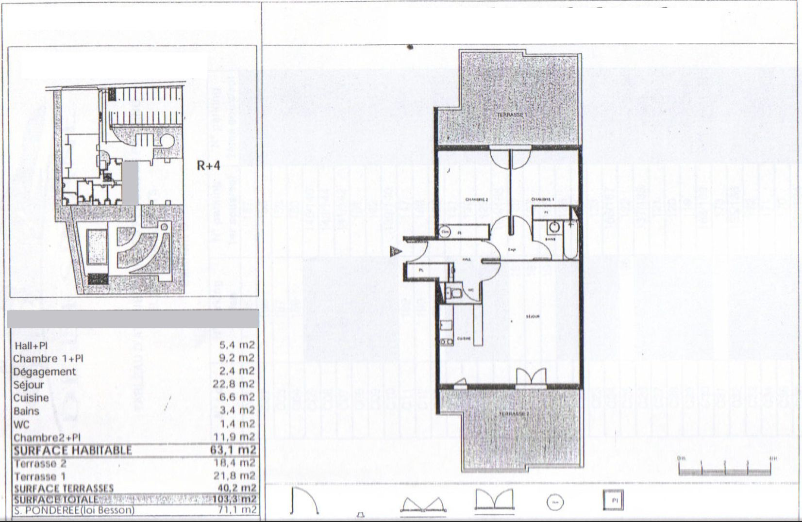
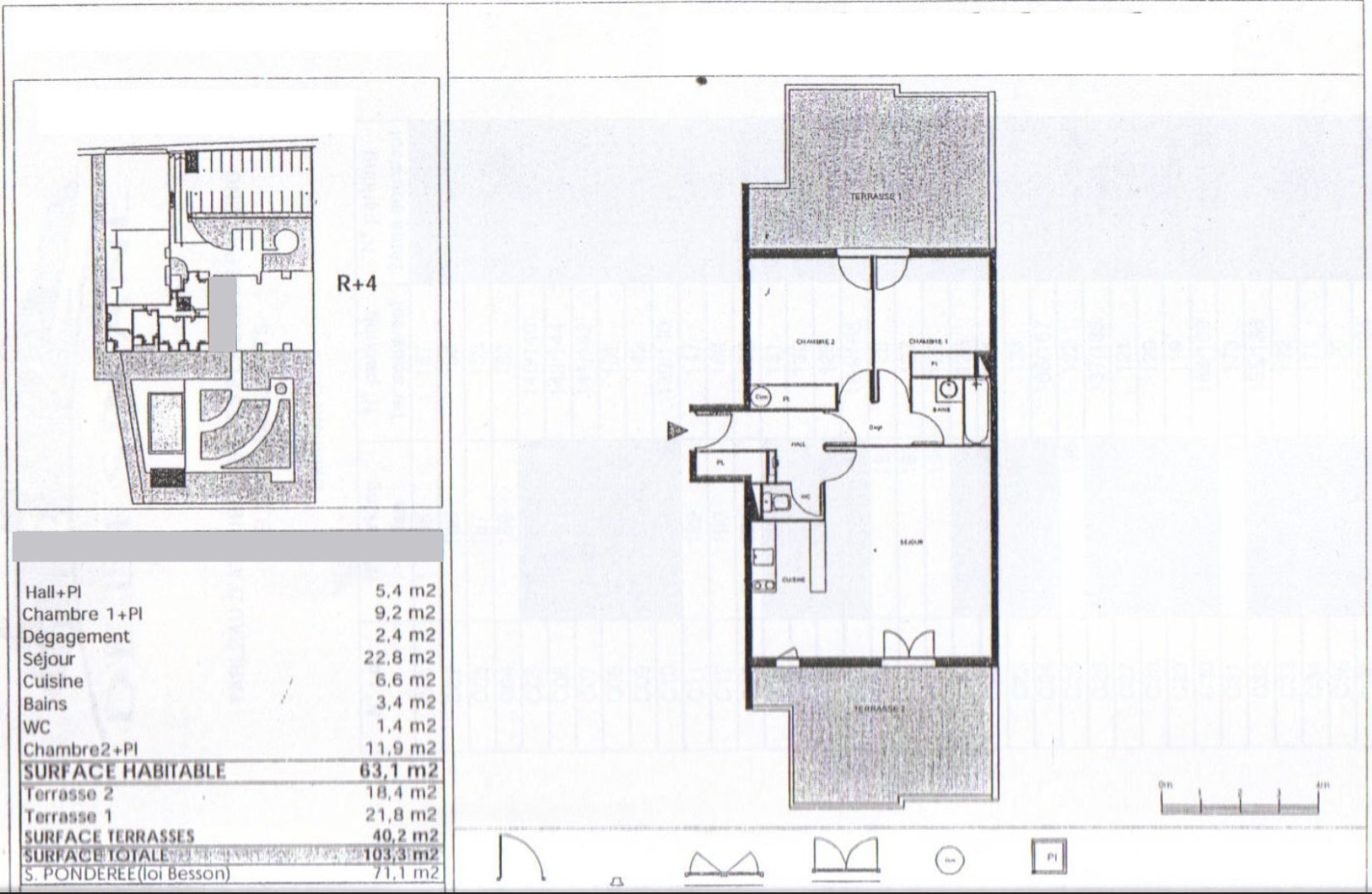
Installé au 3 ème et avant dernier étage avec ascenseur, cet appartement de type 3 développe 65 m² et se distingue par ses deux grandes terrasses :
-
21 m² côté séjour,
-
19 m² côté chambres,
Une configuration rare qui prolonge naturellement chaque espace de vie vers l’extérieur.
L’orientation Est / Ouest garantit une luminosité continue tout au long de la journée, avec une vue dégagée et un environnement calme.
L’intérieur a été entièrement remis au goût du jour :
-
peintures intégrales,
-
sol stratifié neuf,
-
cuisine neuve et équipée (plaque, hotte, emplacements lave-vaisselle et réfrigérateur/congélateur).
Les portes fentres en PVC sont en double vitrage avec volets roulants ce qui renforcent le confort au quotidien.
Le tableau électrique est aux normes.
Une distribution idéale pour le confort de chacun
-
Les deux chambres donnent sur la terrasse orientée OUEST,
-
La salle de bain est séparée du WC qui est sur le pallier
Chaque espace a été pensé pour offrir intimité, fonctionnalité et fluidité de circulation.
Des prestations complètes et un emplacement stratégique
Le bien dispose d’un stationnement privatif de 15 m² en sous-sol, sécurisé et fermé au sein de la résidence.
Le quartier est particulièrement apprécié pour sa praticité :
-
commerces de proximité accessibles à pied,
-
tramway à 800 m,
-
sortie d’autoroute à 15 minutes en voiture,
-
plages à 20 minutes.
Éléments financiers
-
Prix de vente : 229 900 € frais d’agence inclus,
-
Honoraires à la charge du vendeur,
-
DPE : D,
-
Taxe foncière : 1 379 € / an,
-
TOM : 353 €.
Ce appartement combine avant dernier étage, terrasses généreuses, résidence avec piscine et emplacement recherché, s’adresse à des acquéreurs en quête d’un bien différent, rare et durable
Localisation Du bien
-
Commerces et santé
-
Loisirs
-
Ecoles
-
Transports
-
Pratique
Les infos Energetiques
Ce site est protégé par reCAPTCHA, les Politiques de Confidentialité et les Conditions d'Utilisation de Google s'appliquent.
