Les infos Essentielles
Appartement vendu vide.
Idéal premier achat pour une résience principale, investissement locatif en courte ou longue durée et/ou résidence secondaire.
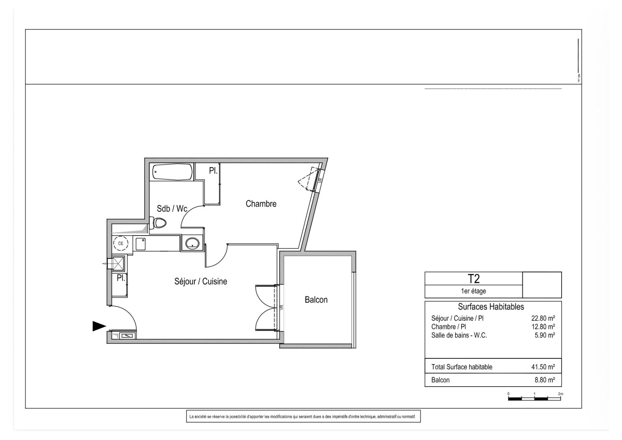
Dans une résidence de 2013, reconnue pour sa qualité d’entretien et son environnement agréable, découvrez ce T2 situé au 1er étage sur 5 avec ascenseur, à seulement 5 minutes à pied du tram ligne 5 situé - 1005 Rue de Bugarel à Montpellier.
Dès l’entrée, l’organisation des espaces offre une sensation de fluidité et de fonctionnalité. Avec ses 41,5 m² parfaitement agencés, complétés par une terrasse couverte de 9 m², cet appartement propose un cadre de vie calme et confortable, prêt à accueillir votre projet.
Le séjour s’ouvre sur l’extérieur grâce à de larges baies vitrées coulissantes en aluminium double vitrage avec volets roulants. La cuisine semi-équipée intègre plaque vitrocéramique, hotte et emplacements dédiés pour lave-vaisselle et réfrigérateur/congélateur.
La salle d’eau avec WC séduit par ses volumes et ses nombreux rangements. Un dressing est déjà présent à l’entrée, avec la possibilité d’en aménager un second plus spacieux dans la chambre.
Les équipements assurent un confort immédiat :
-
Tableau électrique aux normes
-
Radiateurs électriques radiant
-
Production d’eau chaude par cumulus
-
DPE D (108)
L’appartement est vendu libre de toute occupation et disponible immédiatement.
La résidence, parfaitement entretenue et bien fréquentée, ne prévoit aucun travaux.
L’environnement renforce encore l’attractivité du bien :
-
Tram ligne 5 – arrêt Yves du Manoir à 750 m
-
Accès autoroute à 5 minutes
-
Plages à 15 minutes
-
Halles Plaza à 800 m avec leurs commerces de proximité très appréciés
Ce bien réunit les qualités recherchées pour un projet pérenne et flexible.
Localisation Du bien
-
Commerces et santé
-
Loisirs
-
Ecoles
-
Transports
-
Pratique
Les infos Energetiques
Ce site est protégé par reCAPTCHA, les Politiques de Confidentialité et les Conditions d'Utilisation de Google s'appliquent.
