Les infos Essentielles
DUPLEX FAMILIAL — 3 CHAMBRES / 3 SDB — BALCON FILANT, BALCONS ET PROJET SUR MESURE
Idéalement situé au pied de l’Église Notre-Dame-de-Lorette, à quelques pas de la très prisée rue des Martyrs, de la Place Saint-Georges et d’établissements scolaires réputés (Bossuet, Rocroy Saint-Vincent-de-Paul), nous vous présentons ce duplex d’exception d’une superficie de 108 m² (104 m² Carrez) baigné de lumière et sans aucun vis-à -vis, aux 5e et 6e étages (derniers étages) avec ascenseur d’un très bel immeuble haussmannien.
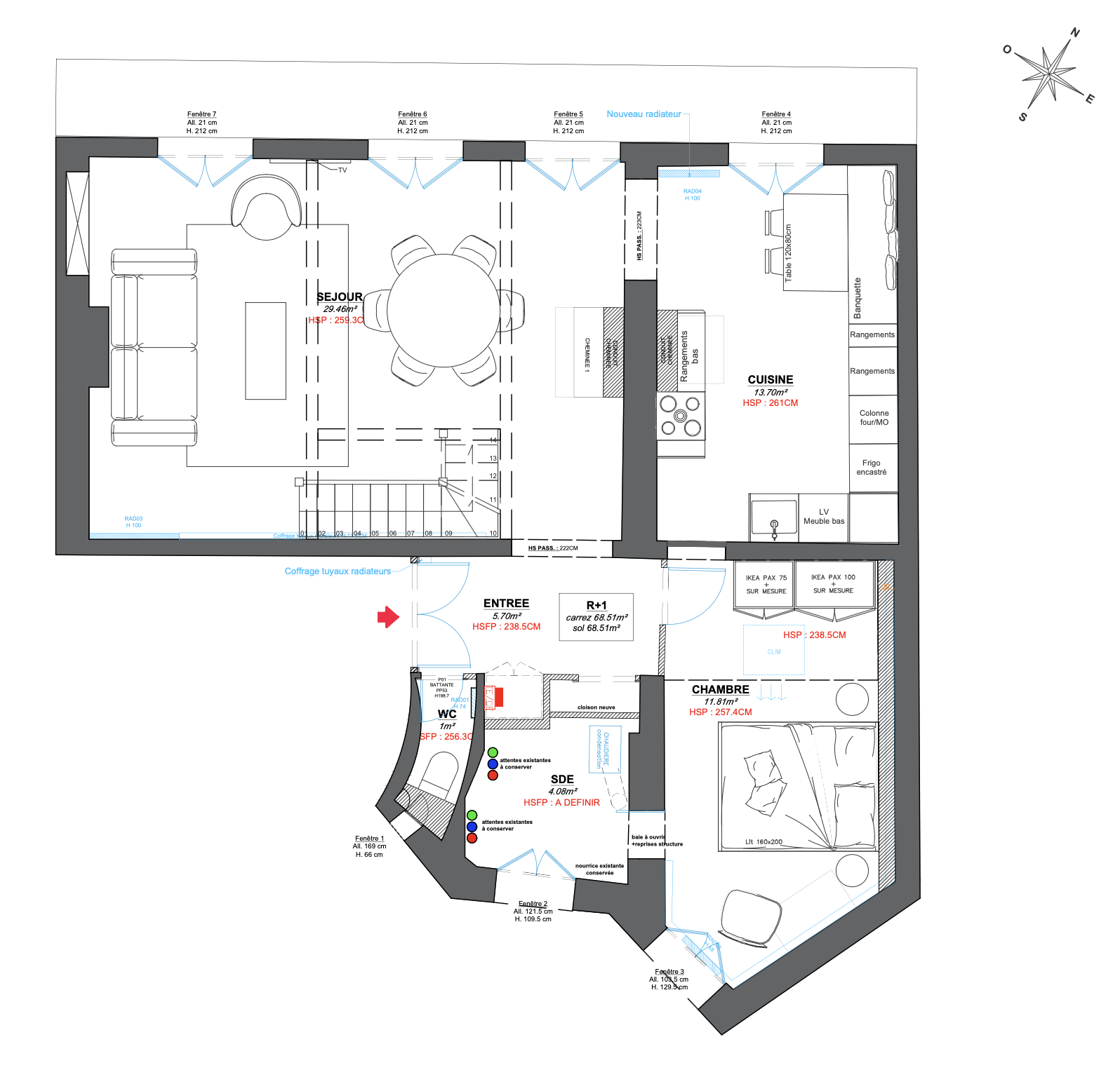
Au 5e étage, l’appartement s’ouvre sur une entrée desservant un très bel espace de réception de 31 m², avec parquet d’origine en point de Hongrie et cheminée fonctionnelle en marbre. Il bénéficie d’un accès direct à un balcon filant d’environ 10 m² exposé Ouest, offrant une vue dégagée sur les toits de Paris avec un aperçu sur la Tour Eiffel. Une grande cuisine équipée, attenante, d’une superficie de 14 m², permet d'accueillir un espace salle à manger. Enfin, une suite parentale composée d’une chambre avec sa salle de bains, ainsi que des toilettes indépendantes, complète ce niveau.
Le 6e et dernier étage comprend deux chambres disposant chacune d'un balcon et de sa propre salle de bains. Entre ces 2 chambres, se situe un bel espace également avec balcon, pouvant accueillir un salon secondaire, un bureau ou une salle de jeux. Toilettes à l’étage.
L’appartement a fait l’objet d’une rénovation structurelle complète réalisée par un architecte. Les finitions restent à réaliser, offrant une opportunité exceptionnelle de créer un intérieur sur mesure, en choisissant soi-même les matériaux, l'agencement et ses menuiseries. Plan d’agencement disponible.
Gardien dans l’immeuble – DPE D – Double vitrage – Climatisation réversible et chauffage individuel au gaz – Charges mensuelles : 273 €
Transports à proximité : Cadet, Saint-Georges, Trinité, Richelieu-Drouot, Chaussée d’Antin (Métro lignes 7, 8, 9, 12)
Localisation Du bien
-
Commerces et santé
-
Loisirs
-
Ecoles
-
Transports
-
Pratique
Les infos Energetiques
Ce site est protégé par reCAPTCHA, les Politiques de Confidentialité et les Conditions d'Utilisation de Google s'appliquent.
