Les infos Essentielles
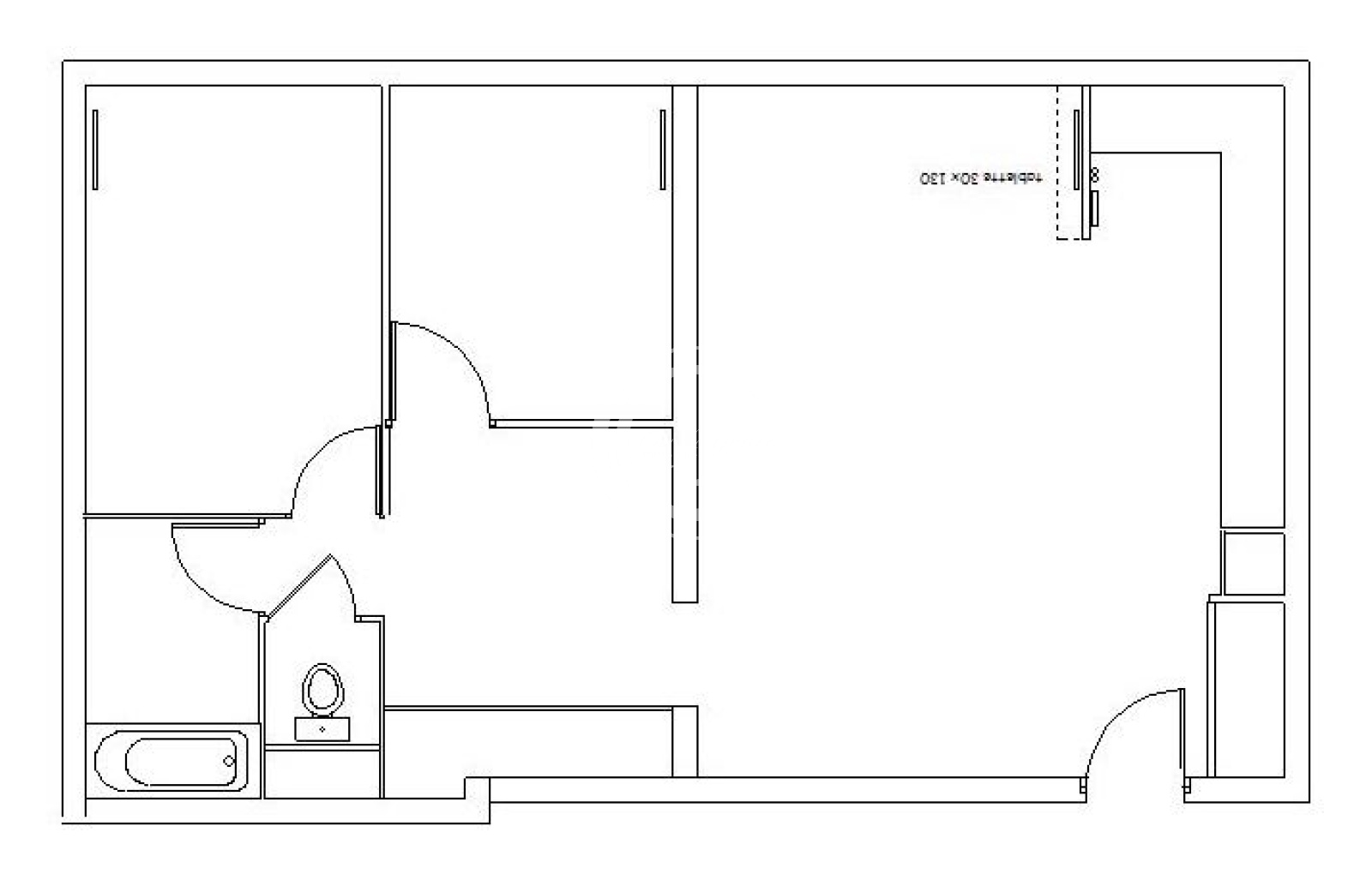
Métro Charonne, rue Emile Lepeu, cet appartement de 68m2 intégralement repensé par un architecte bénéficie d’un balcon de plus de 12m2 (soit 72m2 pondérés). Les aménagements sur mesure et les matériaux de qualité confèrent à cet appartement sans vis-à -vis un cachet indiscutable. Au 4ème étage par ascenseur dans une résidence des années 70 de standing, l’entrée équipée d’un dressing ouvre sur une pièce de vie de 34m2 bénéficiant d’une luminosité Sud Ouest. La partie nuit offre un espace dans l’air du temps avec 2 chambres, un espace bureau / verrière, un grand dressing, des WC séparés et une salle de bains. Cet appartement familial, au plan rationnel et optimisé, a fait l'objet d'une rénovation récente lui conférant un esprit résolument cosy et contemporain. L’appartement donne sur jardins, au calme, en retrait de la rue. Rare, les 3 baies vitrées de chaque pièce s’ouvrent intégralement... et toutes sur le balcon !
Coté technique : VMC dans les pièces d’eau, baies vitrées double vitrage en aluminium, volets électriques dans les 2 chambres, parquet en chêne massif dans les pièces de vie, parquet en teck dans salle de bain et WC, la fibre, l'électricité aux normes. Porte blindée 5 points, serrure à carte. Eau chaude et chauffage collectifs. Classe énergie D.
La copropriété : sécurisée, digicode et interphone, gardien, jardins, local à vélos. Chaudière au gaz changée récemment (2017).
Une cave de près de 5m2 complète ce bien. Possibilité d’un emplacement de parking en sus, dans l’immeuble.
Montant moyen annuel de la quote-part de charges : 175€ par mois soit 2 100€ annuel. Les honoraires d’agence sont inclus et à la charge du vendeur. Merci par avance de privilégier les mails pour votre premier contact. Plus d'informations sur le site carolegouix.com et n'hésitez pas à me suivre sur Facebook et Instagram pour découvrir les biens en "OFF market" et des conseils en immobilier ! @carolegouix.immo.
Annonce proposée par un agent commercial
Les informations sur les risques auxquels ce bien est exposé sont disponibles sur le site Géorisques
Localisation Du bien
-
Commerces et santé
-
Loisirs
-
Ecoles
-
Transports
-
Pratique
