Les infos Essentielles
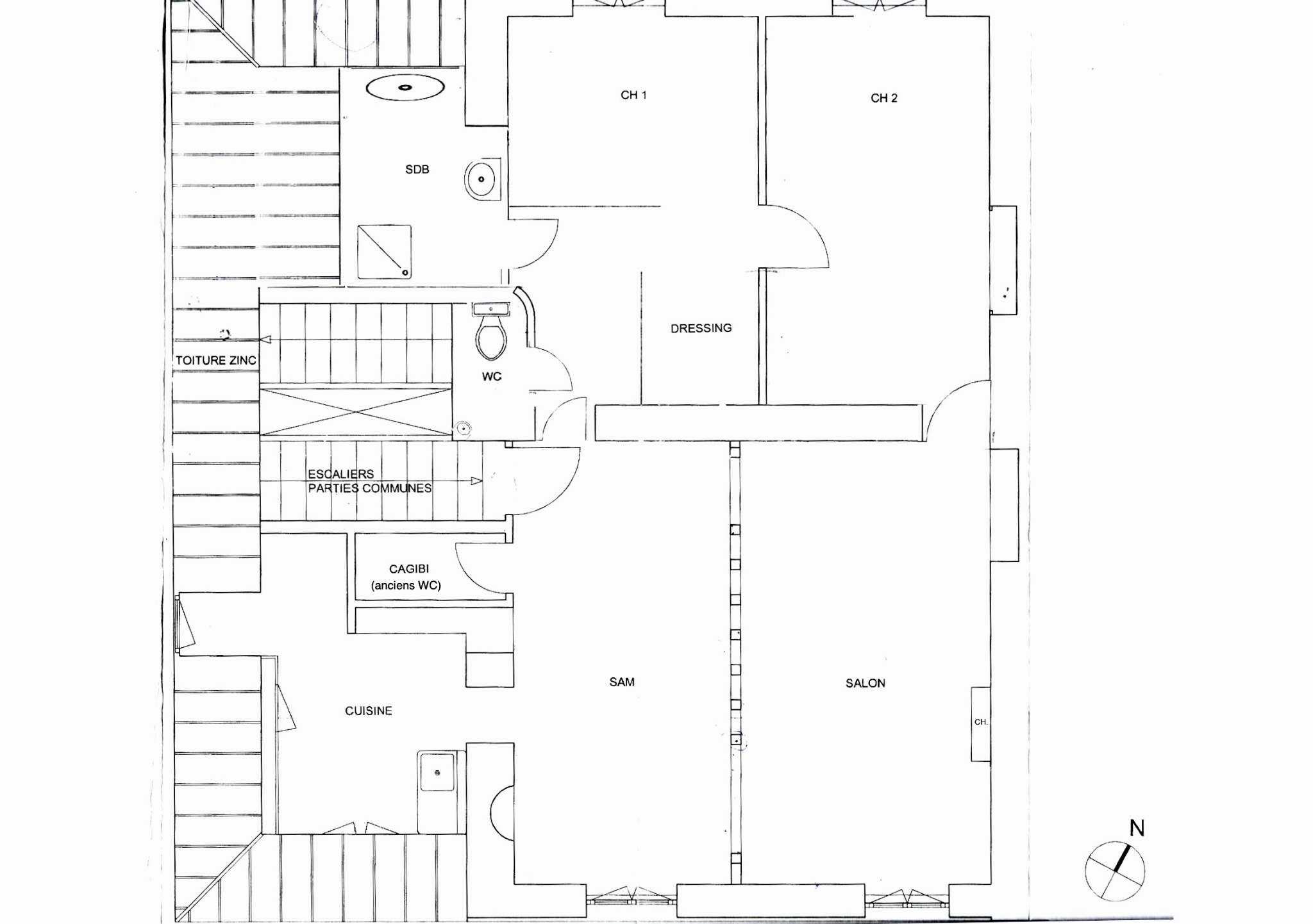
La rue de la Roquette reliant la place de la Bastille à celle de la place Voltaire compte parmi les adresses les plus prisées du 11ème arrondissement ( M° Bastille L 1, 5 et 8 à deux pas et M° Voltaire L 9). A proximité immédiate de toutes commodités (dcommerces, marché, restaurants, théâtre, cinéma et Opéra), au 2ème et dernier étage d'une belle copropriété organisée autour d'une cour pavée privée, cet appartement de caractère bénéficie d'une triple exposition — 3 fenêtres de toit et 5 fenêtres —, d'une lumière traversante et zénithale, et de l'absence totale de voisins au-dessus ou à côté (seul sur le palier !) : un privilège rare à Paris. Poutres apparentes, cheminée et parquet d'origine confèrent à l'ensemble une atmosphère authentique. 82,30 m2 au sol ; 68,60 m2 Loi Carrez, 75,45 m2 habitables pondérés. Les espaces de la grande pièce à vivre de 30 m² exposée Sud-Est, sont naturellement structurés par des poutres apparentes. Elle dessert une cuisine semi-séparée lumineuse, un dégagement donnant accès à deux chambres, une salle de bain (baignoire et douche à l'italienne), un dressing et un WC séparé. La configuration de la partie nuit peut être repensée (en replaçant les WC dans leur place d’origine) en créant une troisième chambre sans toucher de mur porteur (aucune autorisation). Les combles (16,4 m² au sol) sont rachetables à la copropriété afin d’amplifier encore les beaux volumes existants.
Annonce proposée par un agent commercial
Localisation Du bien
-
Commerces et santé
-
Loisirs
-
Ecoles
-
Transports
-
Pratique
Les infos Energetiques
Ce site est protégé par reCAPTCHA, les Politiques de Confidentialité et les Conditions d'Utilisation de Google s'appliquent.
