Les infos Essentielles
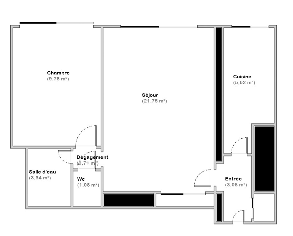
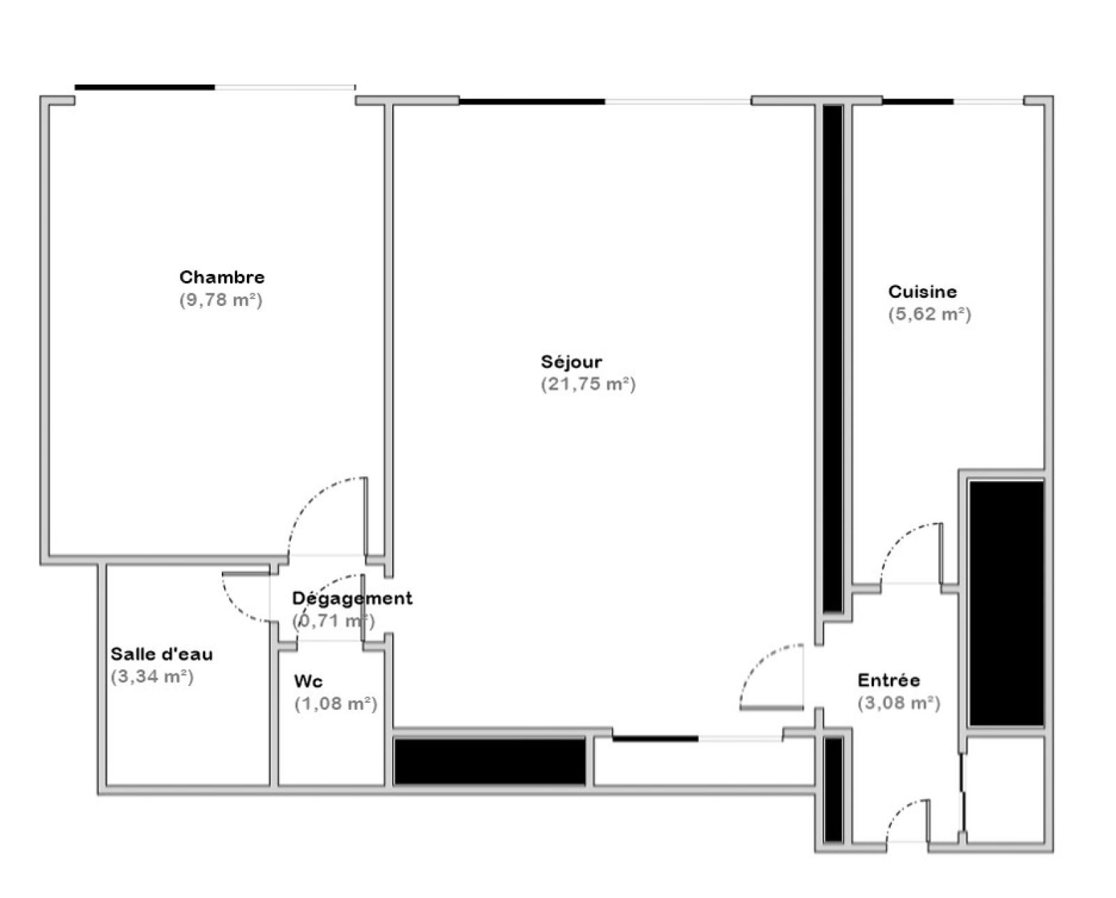
Paris XVIIIème : Rue Boucry, à proximité de la place Hébert, des commerces et des écoles, au calme, nous vous proposons un grand 2 pièces au 6ème étage avec ascenseur. Vous pourrez profiter de sa vue panoramique et totalement dégagée depuis le très lumineux balcon-terrasse orienté Est. Sa surface est d'environ 45 m² avec un plan sans perte de place.Il se compose d'un grand séjour (22 m2 environ) ,d'une chambre,d' une cuisine séparée donnant également sur un balcon, d'une salle de bains, d'un wc. Nombreux placards.Une grande place de parking et une cave complètent ce bien. Gardien, Interphone. Métro Marx Dormoy. Charges annuelles 4800 € (3 lots). Honoraires 4% charge acquéreur (RSAC 352137756- Paris)
Annonce proposée par un agent commercial
Localisation Du bien
-
Commerces et santé
-
Loisirs
-
Ecoles
-
Transports
-
Pratique
Les infos Energetiques
Ce site est protégé par reCAPTCHA, les Politiques de Confidentialité et les Conditions d'Utilisation de Google s'appliquent.
